天潼里售楼处电话-天潼里(上海天潼里)首页网站-天潼里最新房价-户型-容积率-小区配套-楼盘详情/价格/户型

嘉峪关楼市发布 2025-09-05 17:56:22
用手机看
扫描到手机,新闻随时看

扫一扫,用手机看文章
更加方便分享给朋友

天潼里售楼处电话:400-9975-759

天潼里售楼处电话:400-9975-759

天潼里营销中心热线:400-9975-759(官方预约看房热线)

「天潼198」

北外滩核心钻石地段

包含高层、多层、叠墅、合院别墅

建面约320-641㎡风貌大平层

总价约:5100万~1.3亿

约850-1200㎡风貌合院别墅(天潼里)

总价约1.5亿-2亿+(验资看房)

样板房提前一天预约

天潼里售楼处电话:400-9975-759

天潼里营销中心热线:400-9975-759(官方预约看房热线)

最新消息!虹口北外滩核芯段【天潼里】将推出平层、洋房、叠墅、合院产品,共计124户,预计2027年交付!作为外滩正核板块唯一在售新房——苏州河黄浦江原点,项目距外白渡桥约200米,步行约5分钟至外滩万国建筑群;与陆家嘴三件套隔江对望,坐享丰盈配套!据悉,项目推出约320-641㎡洋房大平层,总价约5400万起!另外还有约850-1200㎡风貌合院别墅,总价1.5亿起!项目目前正在认购中!样板间线上提前预约!

天潼里售楼处电话:400-9975-759

天潼里营销中心热线:400-9975-759(官方预约看房热线)

天潼里售楼处电话:400-9975-759

天潼里营销中心热线:400-9975-759(官方预约看房热线)

天潼198设计效果图

洋房面积段约230-400m²,物业费每月21-22元/m²

小高层面积段约200-570m²,物业费每月20元/m²

风貌里弄住宅面积约110-890m²,物业费每月26元/m²

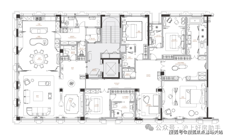
最新户型图独家首发:

建面408㎡大平层 南向面宽26.8米,得房率89%

天潼里售楼处电话:400-9975-759

天潼里营销中心热线:400-9975-759(官方预约看房热线)

天潼里售楼处电话:400-9975-759

天潼里营销中心热线:400-9975-759(官方预约看房热线)

奢阔尺度 · 四开间朝南

南北通透,四开间朝南,LDK一体厅连双南向阳台,采光视野俱佳。

尊贵私域 · 动静分区

双南向套房,主卧配衣帽间与双台盆卫浴。玄关宽境,家政独立,动线清晰。

双厨配置 · 中西皆宜

北向中西双厨,动线顺畅,备餐待客从容。

四室六卫 · 主客分明

四房六卫,双公卫设计,私密与接待兼顾。

两梯一户 · 尊崇归家

专梯入户,分刷卡系统,归家私密安全。

天潼里售楼处电话:400-9975-759

天潼里营销中心热线:400-9975-759(官方预约看房热线)

天潼里售楼处电话:400-9975-759

天潼里营销中心热线:400-9975-759(官方预约看房热线)

四房三厅 · 南北通透

全景开间,通风采光极佳;独立电梯入户,动线清晰,私密有序。

主卧套房 · 私享阳台

宽阔主卧配衣帽间、五件套卫浴及南向阳台,私域舒适。

横厅一体 · 极佳视野

东向横厅连西厨、餐厅、客厅,面宽大,视野开阔。

五房三厅 · 多代宜居

南北通透,五开间布局,三套房保障私密共处。

双电梯入户 · 安静私密

专梯直达,动线清晰,归家更尊崇。

主卧套房 · 生活办公兼顾

配书房、衣帽间与五件套卫浴,动静分明。

全景客厅 · 南北通透

大面宽+L型窗采光通风佳,北侧露台拓展生活。

中心庭院 · 光景入室

引自然光入内,日常更有温度。

独立家政 · 动线合理

收纳、清洁、备餐分区明确,高效实用。

天潼里售楼处电话:400-9975-759

天潼里营销中心热线:400-9975-759(官方预约看房热线)

奢阔五室 · 中轴对称

南北通透,五开间朝南,中轴格局,270°环幕采光尽揽风景。

双梯入户 · 私密尊崇

双梯分流,十字玄关,礼序归家。

三厅分区 · 动线清晰

客餐分厅连庭院,中西双厨+独立家政,生活有序。

主卧套房 · 功能齐全

带书房、衣帽间、五件套卫浴,独立静享。

双庭多卫 · 实用有度

南向客厅灵动分区,双采光庭院引光入室,多卫设计便捷舒适。

天潼里售楼处电话:400-9975-759

天潼里营销中心热线:400-9975-759(官方预约看房热线)

天潼里售楼处电话:400-9975-759

天潼里营销中心热线:400-9975-759(官方预约看房热线)

天潼里售楼处电话:400-9975-759

天潼里营销中心热线:400-9975-759(官方预约看房热线)

天潼里售楼处电话:400-9975-759

天潼里营销中心热线:400-9975-759(官方预约看房热线)

天潼里售楼处电话:400-9975-759

天潼里营销中心热线:400-9975-759(官方预约看房热线)

天潼里售楼处电话:400-9975-759

天潼里营销中心热线:400-9975-759(官方预约看房热线)

“white box”的理念框架中,重新审视比例、色系与质感,以“living essentials(生活的必需)”为基础,拓宽功能的多样性、美感的丰富性,让审美滋养生活。

天潼里售楼处电话:400-9975-759

天潼里营销中心热线:400-9975-759(官方预约看房热线)

玄关是空间过渡的前站,是外部世界与私人领域之间的节奏转换地。通过材质、肌理、色调的搭配组合,构建具有电影质感的归家场景。作为空间的重要组成部分,艺术品恰如其分地妆点其中,让主人的风雅志趣一眼可见。

天潼里售楼处电话:400-9975-759

天潼里营销中心热线:400-9975-759(官方预约看房热线)

天潼198(公寓)展示样板间实景图

玄关具有变化性与功能多重性,壁纸融合中西方色彩和纹样,除了更衣功能,更摆放了古董书写桌,以手写文字传递信息,传递慢节奏生活方式,丰富空间的装饰和功能,目光所及视角变得丰富。

天潼198(公寓)展示样板间实景图

硬装上以木饰面和米色石材做结合,物料原始肌理感,表达经历时间后的沧桑痕迹。大理石地面镶嵌精致金属条,保留材质的原始感,木饰面配柔和灯光,调和出安宁澄澈的归家氛围。

天潼里售楼处电话:400-9975-759

天潼里营销中心热线:400-9975-759(官方预约看房热线)

天潼198(公寓)展示样板间实景图

黄铜门锁系统,是门厅中无法掠过的视觉焦点,它极具质感,与空间的美学特征统一。Design333特别请了Von Morris创始人Eric Morris一同探讨样板间与整个项目所需要的门把手设计,经过了对饰面、手感、形制的多轮讨论与打样,研发出了一款天潼198项目限定的门把手。

天潼里售楼处电话:400-9975-759

天潼里营销中心热线:400-9975-759(官方预约看房热线)

天潼198(公寓)展示样板间实景图

悬挂的画作《Balancing Thoughts》来自艺术家Jean Kenna,丰富的色彩传递着空间的情绪,也奠定了整体基调。

天潼里售楼处电话:400-9975-759

天潼里营销中心热线:400-9975-759(官方预约看房热线)

天潼198(公寓)展示样板间实景图

画作两侧的艺术玻璃移门,是专业匠师手工雕刻多次的成果,随着光线角度、明暗的变化,绽放出迥异的美。

新湖天潼198(公寓)展示样板间实景图

常被忽略的踢脚线,在设计师的妙笔下绽放新生。石材+斜面的设计组合,赋予了踢脚线别样的建筑美感。

天潼里售楼处电话:400-9975-759

天潼里营销中心热线:400-9975-759(官方预约看房热线)

天潼198(公寓)展示样板间实景图

客厅,是一处留白的空间,一整面洞石墙面为客厅带来了主题性。米白的洞石是20世纪现代主义大师常用的材质,在这里和不同年代的家具与艺术品构成了纯粹和谐的对比。

天潼里售楼处电话:400-9975-759

天潼里营销中心热线:400-9975-759(官方预约看房热线)

天潼198(公寓)展示样板间实景图

客厅,也是一处流动的空间,通过“自由灵活的组合”营造不拘束的社交空间,家具摆放,连而不挡,分而不隔。满目吸睛的艺术品,错落布置的家具,丰富着空间的视觉层次。

天潼里售楼处电话:400-9975-759

天潼里营销中心热线:400-9975-759(官方预约看房热线)

天潼198(公寓)展示样板间实景图

主要位置的多功能大长桌,可以做书桌,聚餐冷餐摆台,也可以做艺术品展示桌,让艺术与空间交融相生。同时,大长桌也起到了模糊走廊与客厅空间的作用,无形中放大空间的层次感,增添了空间的功能性。

天潼里售楼处电话:400-9975-759

天潼里营销中心热线:400-9975-759(官方预约看房热线)

天潼198(公寓)展示样板间实景图

正式的大沙发区域,灵活散座区域,家具注重收藏种类多样性,中式圈椅,西式小沙发,灵活移动,根据需求可聚可散。手工编织的复古羊毛波斯地毯,用植物和矿物天然染料来进行染色,拥有了抗衡时间侵蚀的美,更增加了收藏的丰富性,是高品味的体现。

天潼里售楼处电话:400-9975-759

天潼里营销中心热线:400-9975-759(官方预约看房热线)

天潼198(公寓)展示样板间实景图

融合焕新的高柜摆放于洞石墙前,哑光与纹路丰富的米白洞石衬托出了高光黑色烤漆的深邃与沉静。而嵌入柜面的中式楠木挂屏无疑是点睛之笔,采用朱红鎏金工艺对人物和图案进行着色,展现了传统与现代完美融合的可能性。

天潼198(公寓)展示样板间实景图

客厅另一端,是连接房内与外景的介质空间,在这里主人和客人可以享受美酒雪茄。看似独立的空间,实际延伸了客厅的功能,也延伸了窗外景观到室内的视线。

天潼里售楼处电话:400-9975-759

天潼里营销中心热线:400-9975-759(官方预约看房热线)

设计师于此放置了一张来自20世纪30年代的Art Deco 扶手椅,并通过法国品牌Métaphores的提花面料,重构椅面的色彩与质感,顺应着上海滩的复古风潮,让古典家具以崭新的容貌重回生活。

天潼198(公寓)展示样板间实景图

倚窗而望,既有新上海的繁华城景,又有旧上海的古典砖墙,万千景致化作一席流动的生活背景画。

与三五好友谈论艺术思潮的太太、研究行业前沿咨询的先生、探索世界奥秘的孩子,每个家庭成员都是空间的主人,都能创造心仪的场景与氛围。

天潼198(公寓)展示样板间实景图

以餐厅为载体,重构“人与空间”的关系,让人和各项功能产生“亲密接触”,让人主宰空间,成为空间主角。

天潼里售楼处电话:400-9975-759

天潼里营销中心热线:400-9975-759(官方预约看房热线)

天潼198(公寓)展示样板间实景图

光线,是空间的灵魂。为了雕琢一间光感餐厅,设计师特别选用亮面漆吊顶与整面白色高光烤漆墙板增加光反射,为空间勾勒金灿质感的轮廓。即便在阴天,依旧能在餐厅里感受到近似午后阳光的温暖气息。

天潼198(公寓)展示样板间实景图

餐桌上盛放的热带花卉与橘色亚麻帆布面壁纸,一同传递出热烈的情感,一幅展现自然风光的画作《The Old Walnut Tree B》丰富了空间的色调,在贵雅的氛围中妆点质朴与原始的美。

天潼里售楼处电话:400-9975-759

天潼里营销中心热线:400-9975-759(官方预约看房热线)

天潼198(公寓)展示样板间实景图

卧室去繁就简,以沉静温暖的配色和材质,营造和平宁静的氛围。一幅山水花园刺绣屏风点缀其中,予人舒适松弛之感。可移动家具组合,既独立又彼此链接,便于情感交换。

天潼198(公寓)展示样板间实景图

空间布局以满足日常需求为主导,休憩、梳妆、阅读,各功能区划分清晰,同时增加了与户外景观的联动,引景入室,内外呼应。

天潼里售楼处电话:400-9975-759

天潼里营销中心热线:400-9975-759(官方预约看房热线)

天潼198(公寓)展示样板间实景图

秩序,是主卫浴空间布局的重点。两个独立台盆相对而立,分属男女主人,营造出从容自如的使用体验。大面积运用黑白撞色大理石,让空间的秩序美与材质的自然美融合,颇具观赏韵味。

天潼里售楼处电话:400-9975-759

天潼里营销中心热线:400-9975-759(官方预约看房热线)

天潼198(公寓)展示样板间实景图

整体延续了卧室的摩登情调,灯光氛围流畅而明亮,一整面展示柜的植入,突破了卫浴空间的功能桎梏,兼顾实用性与美学表达。

天潼198(公寓)展示样板间实景图

一抹亮色,从素雅的卫浴空间跳脱而出。来自白宫御用品牌Kallista(卡莉斯塔)的龙头套装,专为天潼198项目定制复古陶瓷红,华丽而传统的色泽,呼应着项目的红砖风貌。

天潼里售楼处电话:400-9975-759

天潼里营销中心热线:400-9975-759(官方预约看房热线)

天潼198(公寓)展示样板间实景图

步入式衣帽间隐于卫浴内部,创造出一体化体验,金属质感的柜体材质,与卫浴石材形成对比,增加了视觉的丰富性。

天潼198(公寓)展示样板间实景图

设计团队对厨房的处理,为我们打开了审视空间关系的另一种视角。

厨房采用洄游式立体布局,一半是“工作厨房”,隐于内部的中式厨房,有效避免油烟外泄,无论烹炸煎烤,空间之外清新依旧。

天潼里售楼处电话:400-9975-759

天潼里营销中心热线:400-9975-759(官方预约看房热线)

天潼198(公寓)展示样板间实景图

另一半是“社交厨房”,显于外部的西式厨房,与餐厅保持良好的视线关系,烹饪西餐的同时可与亲友无碍交流互动,分享乐趣。安置一组玻璃柜,便于展示主人的藏品餐具,让厨房也成为艺术的浸润之地。

天潼198(公寓)展示样板间实景图

一中一西,一隐一显,空间递进,意趣翻倍,生活方式的探索之旅也由此展开。

天潼里售楼处电话:400-9975-759

天潼里营销中心热线:400-9975-759(官方预约看房热线)

天潼198(公寓)展示样板间实景图

书房色调沉稳大气,精心设计的柔和灯光突显书香气韵,吸引人们长久驻足,于宁静的氛围中品味知识的力量。

天潼里售楼处电话:400-9975-759

天潼里营销中心热线:400-9975-759(官方预约看房热线)

天潼198(公寓)展示样板间实景图

多功能书架彰显着设计的巧思,形成有如博物馆般的展示方式,即可放置日常读物,亦可展示珍本藏书。同时,利用屏风做隔断,与圆桌结合形成私密空间。

天潼198(公寓)展示样板间实景图

可坐可卧的软塌,让书房升级为舒适安逸的精神领地。一杯咖啡,一本好书,一张黑胶,消磨一段悠闲的午后时光。

天潼198(公寓)展示样板间实景图

320㎡美学样板间(公寓),以美为关键词,链接人与空间,通过疏密有度的体验,为人们保留了一份畅想未来的惬意。随着阅历增长、生活积累,稳定的审美体系逐渐成形,人们会愈发期待如“white box”一般的生活场域,以此唤醒与内在的对话,实现美的表达。

·

天潼198(公寓)展示样板间实景图

此外,天潼198还打造了27席藏品级合院产品,一栋一境,围合天地,珍藏无尽风雅。

天潼198合院设计细节示意

目前,合院样板房正积极筹备中,致力于淬炼上海百年历史记忆,重构契合当代生活方式的顶级居住空间,诠释“孤品”私宅的价值所在。

天潼里售楼处电话:400-9975-759

天潼里营销中心热线:400-9975-759(官方预约看房热线)

天潼198合院效果图

天潼里售楼处电话:400-9975-759

天潼里营销中心热线:400-9975-759(官方预约看房热线)

天潼198合院效果图

天潼198效果图

天潼里售楼处电话:400-9975-759

天潼里营销中心热线:400-9975-759(官方预约看房热线)

小高层效果

四层叠拼效果|天潼路吴淞路口

四层叠拼效果|天潼路沿街立面

天潼里售楼处电话:400-9975-759

天潼里营销中心热线:400-9975-759(官方预约看房热线)

七层叠拼效果|吴淞路武昌路

合院效果 |支弄透视

天潼里售楼处电话:400-9975-759

天潼里营销中心热线:400-9975-759(官方预约看房热线)

合院效果 |支弄透视

合院效果 |支弄透视

合院效果 |支弄透视

天潼里售楼处电话:400-9975-759

天潼里营销中心热线:400-9975-759(官方预约看房热线)

新湖·天潼198位于北外滩核心区,在星荟中心东侧,豪景苑南侧。设计方案公示,住宅部分由洋房与叠加组成,规划有8幢4层里弄住宅(叠墅产品),1幢7层洋房,1幢9层小高层,还有底商和酒店。首开约209-641㎡洋房住宅59套,总价3400万-1.3亿左右!合院别墅20套左右 地上四层 地下两层 花园100平左右 地上面积520-800 地下面积300-500平 总价1.8亿-2.6亿左右!看房需提前一天预约!需要验资!户型图现场鉴赏!

新湖天潼198地块是豪景出让给新湖,并由商业属性改为住宅,对面就是外滩豪景苑。根据公示的项目规划设计方案显示,项目规划有8幢4层里弄住宅,1幢7层洋房,1幢9层小高层,还有底商和酒店。

天潼里售楼处电话:400-9975-759

天潼里营销中心热线:400-9975-759(官方预约看房热线)

新湖·天潼198就是虹口区北外滩街道HK231-01地块,位于乍浦路天潼路,距上海外白渡桥200多米,具体位置是东至吴淞路,南至天潼路,西至乍浦路,北至武昌路。

虹口区北外滩街道HK231-01地块建设用地范围:东至吴淞路,南至天潼路,西至乍浦路,北至武昌路;

规划用地性质:二类住宅组团用地、商业服务业用地建筑工程

性质:住宅;商业;

用地面积:18950.6㎡

总建筑面积:113000㎡

项目目前正在建设中,新湖将保留项目所在区域的地标和文化标志建筑,包括西本愿寺、景林庐等文保建筑,目前项目售楼处开放中。

附现场实拍图:

周边实景如下:

新湖·天潼198位于 北外滩核心区,在星荟中心东侧,豪景苑南侧。设计方案公示,住宅部分由洋房与叠加组成,规划有8幢4层里弄住宅(叠墅产品),1幢7层洋房,1幢9层小高层,还有底商和酒店。

如位置图所示,新湖·外滩元和豪景苑位置邻近,几乎享受同样的周边配套。

交通方面:附近有地铁2号线、10号线和12号线,出行十分便捷。

教育方面:1公里左右,有7所幼儿园、5所小学、5所中学,教育资源丰富,文化氛围浓厚。

医疗方面:3公里左右,有7所三甲医院,为住户的健康生活保驾护航。

天潼里售楼处电话:400-9975-759

天潼里营销中心热线:400-9975-759(官方预约看房热线)

生活方面:2公里左右,有9座公园,完全可以满足老人的社交及娱乐需要。

声明:本文由入驻焦点开放平台的作者撰写,除焦点官方账号外,观点仅代表作者本人,不代表焦点立场。