☑️☑️前滩·滨江道售楼处电话:400-8377-020☑️☑️前滩滨江上新
陆家嘴三林滨江南片区12单元
「 前滩滨江道 」持续热销中!
少量建面约89-152㎡3-4房
均价116541元/㎡总价1016万起
参观看房请提前线上预约!
☑️☑️前滩·滨江道售楼处电话:400-8377-020☑️☑️


☑️☑️前滩·滨江道售楼处电话:400-8377-020☑️☑️
项目位于浦东新区三林镇,东至皓川南路,南至浩昌路,西至皓明路,北至涓清路,紧临湾区水岸、轨交站点等标志性节点。规划总建筑面积15.5万平方米,建设周期3.5年。

其中:22-01地块占地面积1.1万平方米, 总建筑面积5万平方米,包括4栋住宅楼、2栋商业;22-03地块占地面积1.6万平方米,总建筑面积6.7万平方米,包括7栋住宅楼、2栋商业;22-04地块占地面积0.9万平方米,总建筑面积3.8万平方米,包括3栋住宅楼、2栋商业。
☑️☑️前滩·滨江道售楼处电话:400-8377-020☑️☑️


项目整体定位为“高品质的海派风貌小镇”“滨江开放空间”和“居住社区”,具备功能复合、开放有趣、安宁宜人的特点。
☑️☑️前滩·滨江道售楼处电话:400-8377-020☑️☑️

项目设计中,充分提炼上海百年精华,浓缩延展了 老上海海派文化的街景氛围、空间记忆和建筑风貌,将典雅、简洁和摩登有机融合,共同诠释新海派风格。

☑️☑️前滩·滨江道售楼处电话:400-8377-020☑️☑️

☑️☑️前滩·滨江道售楼处电话:400-8377-020☑️☑️
近日,三林滨江南片区12单元项目 7#住宅17框(屋面)混凝土顺利浇筑完成。至此,项目01地块已全部完成结构封顶。04地块21#住宅结构已施工至20框,预计10月初结构封顶;03地块各单体一框结构已相继完成。01、04地块二结构已同步施工至11层。01地块幕墙及样板间精装预计9月底完成。


☑️☑️前滩·滨江道售楼处电话:400-8377-020☑️☑️
最新消息:浦东三林滨江板块12单元22-01、22-03、22-04地块项目案名正式公布:「前滩滨江道」首批次开盘去化70%(1月25日)!少量建面约89-152㎡3-4房;其中三房为建面约89-138㎡;四房为建面约140-249㎡官方户型首曝!均价116541元/㎡;最低单价9.8万起,总价1016万起!售楼处线上火热预约中!
⬇️专业销售一对一咨询⬇️
耐心等待官方VIP客户经理回电

一房一价表如下:

☑️☑️前滩·滨江道售楼处电话:400-8377-020☑️☑️



☑️☑️前滩·滨江道售楼处电话:400-8377-020☑️☑️


☑️☑️前滩·滨江道售楼处电话:400-8377-020☑️☑️
9月26日,前滩滨江道城市展厅正式开放,首次向公众呈现卓越水岸生活的革新构想。 前滩滨江道定位“新滨江封面 新海派国际生活湾区”,其背后是对滨江资源的深度整合与生活场景的前瞻重构,为城市高端水岸生活树立了新的价值坐标。




☑️☑️前滩·滨江道售楼处电话:400-8377-020☑️☑️
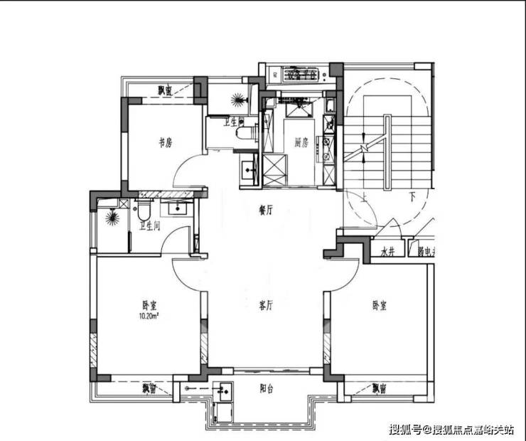
户型图过程稿如下 (仅供参考)
建面约86m²3房2厅2卫:



☑️☑️前滩·滨江道售楼处电话:400-8377-020☑️☑️



在【前滩滨江道】 ,楼下的亲水平台是家庭聚会的天然客厅,滨江不再是“打卡点”,而是真实的生活切片。
☑️☑️前滩·滨江道售楼处电话:400-8377-020☑️☑️
顺着江岸漫步、观察江鸥的飞行轨迹、周末的家庭日、在皮筏艇上来一场水上亲子互动、不定期举行的滨江市集,即享全球潮流生活。

【前滩滨江道】 以 全球资本坐标、生态繁华水岸、大师联袂美学、海派滨水生活 ,重新定义全球卓越滨水生活方式,启幕世界潮向的滨江封面住区。


☑️☑️前滩·滨江道售楼处电话:400-8377-020☑️☑️
前滩滨江道被一众新盘包围, 前有前滩百合园,后有前滩润璟、 前滩公馆 , 都是曾经的高分大热门,已经形成高品质住宅集群,城市界面逐渐成型。
未来这里既有复刻衡复街区的风貌,风靡上海的滨江打卡地,也有持续引领风潮的艺文中心、商业橱窗、咖啡生活节、CITY-WALK等多元业态。


从位置来看, 三林滨江南片区12单元(22-01、22-03、22-04地块),是2023年陆家嘴集团继三林滨江15单元后收获的又一大地块组团中的 住宅部分 ,距离三林滨江重点打造的 共生未来湾区 很近。

☑️☑️前滩·滨江道售楼处电话:400-8377-020☑️☑️
从规划效果图来看,项目正对的“ 三林湾 ”最大特色,可能就是规划有一个类似翠湖太平桥公园,户外戏水+人工湖的公共空间。




☑️☑️前滩·滨江道售楼处电话:400-8377-020☑️☑️
据悉, 三林滨江南片区12单元项目,按照陆家嘴集团对 “海派未来社区”的整体定位进行设计,旨在打造高品质,绿色环保的居住环境。


三林滨江板块与 前滩国际商务区 “一路之隔” ,是中心城区生态环境最优越的区域,被誉为“金色中环发展带”上的“明珠”、“五彩滨江带”上的“绿宝石”。

从上海2035中央活动区到新鲜出炉的“2024~2035年黄浦江沿岸地区功能融合发展和空间品质提升专项规划”, 在城市重点规划发展的滨江精粹地段, 前滩CLD 始终列席榜上。
☑️☑️前滩·滨江道售楼处电话:400-8377-020☑️☑️

根据近期规划, 上海市明确划分了黄浦江滨江两岸的核心活动区域和品质提升区域, 前滩CLD成为推动城市更新、促进功能聚集的战略要地。 而在规划上,黄浦江两岸被首次完全纳入到一起规划,且明确作为同区段下的同一个功能区。
其中,浦东的前滩和浦西的徐汇滨江被统一规划,与此同时,前滩CLD和前滩CBD也将完全融合,未来由共同的公共配套鳗鲡乐园串联起来,互补有无,加强超级前滩能量场。 前滩CLD,在“繁华与繁花”包围里,生活的优渥度自然不需多说。

以第二个陆家嘴为目标打造的前滩CBD在短短12年的发展下已经成为全新的国际化城市中心,甲级写字楼、地标性商业中心、五星级酒店、国际学校一应俱全。

作为大前滩的一体两面,有前滩CBD作为价值底盘,前滩CLD俨然已经立于不败之地! 但前滩CLD的规划更加宏大,凭借得天独厚的低密生态天赋,前滩CLD将成为整个滨江 核心段地位超然的豪宅居住区!


☑️☑️前滩·滨江道售楼处电话:400-8377-020☑️☑️
前滩滨江超级完整体: 陆家嘴集团执笔下的前滩滨江以“超级完整体”城市理念,创造性地将“生态、产业、生活”三位一体的开发理念融入片区开发实践,让产业引擎、都会繁华与水岸浓荫相得益彰,实现了从"城市功能分区"到"城市功能融合"的质变。

☑️☑️前滩·滨江道售楼处电话:400-8377-020☑️☑️
前滩滨江中央商务区:聚焦“总部商务"“文化传媒”与“体育休闲”三大核心功能形成了聚集城市地标、总部经济、体育传媒、商业中心等业态的功能型国际城市中心。

前滩滨江国际住区:千亩城市森林环绕,“最生态、最海派、最未来的”21世纪海派生活实践区。约240公顷上海城市规划中心城区最大的楔形绿地,约等于2-3倍世纪公园绿地面积;约62%绿化覆盖率、约170m²的领先人均绿地面积;“三水环抱、五园簇拥”稀缺生态格局;迷人海派街区、围合式低密组团形态等居住格局。*数据来源于《黄浦江南经伸段三林滨江南片区Z000801单元》西区控制性详划

寰球资本亲睐:60家跨国公司地区总部;23家国际经济组织(含代表处);10家世界500强企业。目前前滩片区的总部经济、能源环保、医药器械、汽车、科技与数字新媒体、专业服务等已经形成规模化效应,未来聚焦生物医药、人工智能、离岸贸易等领域,推动数智化产业转型。

☑️☑️前滩·滨江道售楼处电话:400-8377-020☑️☑️

高效通勤|咫尺上海交通动脉
一线:机场联络线三林南站;
两环:中环路、外环高速约1公里;
两隧:上中路隧道、龙水南路越江隧道(在建中)约2公里;
四轨:6、8、11、19号线(在建中)。

☑️☑️前滩·滨江道售楼处电话:400-8377-020☑️☑️
品质配套|不落幕的城市繁华: 前滩顶级商业群:前滩太古里一期、前滩太古里二期(在建中)、晶耀前滩、前滩L+Plaza、前滩公园巷等;

国内外医疗: 新加坡莱佛士、上海东方医院南院、曜影医疗等。

☑️☑️前滩·滨江道售楼处电话:400-8377-020☑️☑️
人文荟萃|国际精英教育养成: 幼儿教育:上海嘉宝、嘉贝托育、惠立、冰厂田、中福会幼儿园等;精英教育:惠灵顿外籍人员子女学校、上海惠立、华师大二附中前滩学校、纽约大学等。*以上为直线距离,来自百度测距,具体教育对口等信息以官方发布为准
迷人生态|一半公园一半家: 滨江漫步:约60万方滨江绿地、慢行道、滨江码头;七大主题公园:前滩体育公园、前滩休闲公园、友城公园、体育公园、儿童自然乐园、上林公园、城市森林

栖岸休闲前沿体验 全球人才首选之地: 前滩31的国际大秀、东方体育中心的演艺文化等触手可及;冰球、橄榄球、皮划艇、网球、足球等竞体运动……前滩滨江正以最国际、最生态、最运动、最完整的水岸生活,吸纳世界公民。

☑️☑️前滩·滨江道售楼处电话:400-8377-020☑️☑️
这里更是与徐汇滨江一起,在 一江一河规划中确立“艺文智岸”定位,前滩31、东方体育中心 等文娱配套密度,是其他板块所没有的。

就以前滩31为例,这里承接了非常多的世界一流精品演出!就在10月初,法国经典音乐剧《摇滚红与黑》上演,依托前滩31国际领先的AES可变电子混响系统,《摇滚红与黑》中摇滚乐的音效也能达到最佳震撼效果,演出场场爆满,百年名著与当代观众的距离,于此拉近!

世界滨水生活的Next Level,于此开启。 从前滩公园巷的火爆出圈便可窥见:这里已成为沪上潮人的心驰之地,其吸引力正呈指数级增长,兑现着关于未来的所有想象。

☑️☑️前滩·滨江道售楼处电话:400-8377-020☑️☑️
前滩滨江,正持续吸引全球眼光与资本,高净值人群正以实际行动在此“投票”。在2025年,整个前滩滨江范围里,二手房逆势上扬,数据显示,成交量已经突破200套,仅次于2020年最高点!就在11月,前滩东方逸品成交1套房源,成交单价来到了14.14万,同比上涨!
24 小时全维生活
兑现世界级滨水日常
顶级的资产,必然匹配顶级的生活方式。前滩滨江道致力于呈现一种全时、全域、全维的国际化滨水生活方式,让“世界级滨江生活”从蓝图概念真正落地为可感日常。

因此,前滩滨江道所打造的商业,不仅是消费场所,更是串联工作、生活与自然的核心纽带。其规划愿景与业态组合,皆以成为“下一个新天地”式的城市地标为蓝图,并凭借自身独特的亲水基因与全时活力,持续为前滩这片土地的价值进化注入鲜活能量。

依托得天独厚的滨水资源,前滩滨江道将“亲水”理念发挥到极致。滨水区达三级水质标准,黄浦江与内部水系贯通,形成可亲近、可漫游的活水网络。“地面少车化、地下通达化”的动线设计,构建起安全连贯的全步行漫游系统,让体验在商业、公园与滨水岸线之间自由流淌。而“日咖夜酒、烟火食集、滨水餐饮”三大核心业态,则围绕国际住区人群的日常节奏,精心编排出一幅从容、精致且充满烟火气的24小时生活图景。

商业成为催化“产城人”深度融合的关键溶剂,让办公、居住与休闲在此高效联动,产业、生态与繁华相互滋养,形成一个自我增益的持久活力闭环,也从根本上夯实了资产的长期价值逻辑。
不止于一场热销
更是一次「从看江到住江」的居住范式革命
除此之外,前滩滨江道在三大维度改写了滨江人居标准:
● 视野革命:将“瞰江揽园”的居住想象变为现实,对望徐汇滨江艺文天际线,拥揽前滩滨江生态绿洲盛景,每一窗皆是独占画卷。
● 资源鼎盛:坐享约240公顷生态绿洲、前滩太古里、前滩华尔道夫酒店等世界等级资源,约60家跨国总部构,生活、生态、事业形成黄金闭环。
● 体验迭代:不同于过去 “远观江景” 的被动欣赏,前滩滨江道将黄浦江水引入湾区内部,让水系穿梭于社区、商业与办公场景之间,让滨江从风景变成可沉浸的日常剧场。

本次首开,推出前滩滨江标志性建筑「前滩之眼」 ,建面约89-153㎡全系瞰江临湾藏品户型。所有户型皆以科学的空间规划、极致的观景体验与灵活的功能布局,精准匹配不同家庭的人居想象,让每一寸空间都承载着品质生活的笃定感。

——建面约153㎡ 臻稀4 房

入户玄关搭配独立收纳间,动线规整流畅,大件行李、日常杂物可即刻入柜,随手置物的台面设计更添便捷;
客餐厅与阳台等宽贯通,最大化延伸观景视野,会客宴请时,窗外盛景便是天然的格调装饰;
南侧三开间全明布局,实现居住平权,每间卧室都能享有充足采光与舒适尺度;
主卧大套房带独立衣帽间、干湿分离带大浴缸主卫,尺度感、尊崇感十足!
客卫三分离设计,人性化考量相当优秀!
——建面约139㎡ 3+X灵动户型

正三面宽朝南格局,搭配观景阳台与全明飘窗,既最大化延伸实用空间,更拓宽观景视野;客餐厅一体化连贯布局,餐桌周边形成流畅洄游动线,告别冗余走道设计,每一寸空间都物尽其用;
南向双卧全明通透,主卧奢享升级套房设计,门口预留次净衣区,衔接独立卫浴,搭配整墙定制衣柜与双柜布局,最大化收纳潜能;
另一间南卧紧邻公卫,可轻松打造类套房,早晚洗漱动线便捷高效;
北侧 1+1 灵动空间可随心定制:既可打造两间独立卧室,亦可打通与客餐厅相连,打造开放式书房或亲子互动区,更可组合为北侧独立套房。
——建面约89㎡/99㎡ 全能零浪费三房


客餐厅一体化贯通设计,最大化拉伸空间尺度,让小面积也有大开阔感;
独立阳台搭配多处全景飘窗,既保证全明采光与观景视野,更预留充足收纳空间,兼顾实用与美学;
双明卫的贴心设计,精准匹配年轻家庭核心需求,彻底告别早晚高峰洗漱拥堵,让日常起居井然有序,以稀缺尺度与全能配置,为年轻家庭叩响核心滨江段的大门。
其他首开户型鉴赏


新海派生活系统
资产之上的丰盈日常
真正的确定性核心资产,价值从不囿于物理空间,更在于其承载的生活方式与精神归属。
前滩滨江道最具辨识度的内核,在于它将全球智慧与海派文脉相融合,构建了一套系统性的、可沉浸的新海派生活范式。这里汇聚了Foster+ Partners、DCA等全球设计巨擘,他们的碰撞并非简单的风格叠加,而是共同完成了一次对海派精神的当代转译。
归家即沉浸:从城市前场,到社区大堂、再到主题花园与入户,归家被重新定义为一场从公共奔向私域的情绪沉浸。

漫游主题花园:三座花园分别源自孙科别墅、丽波花园与马勒别墅的灵感,被重新转写为当代场景:既有自然与社交并存的海派剧场,也有沙龙般的精致庭院与浪漫的步行体验。

开盘的热度,是市场共识的最直观印证。至此,前滩滨江的发展已正式进入湾区国际住区的新篇章。纵观当下,前滩滨江板块作为上海高能级的“压舱石”,其抗跌属性与成长潜力毋庸置疑。此时入驻,不仅是抢占一线滨江席位的珍贵机遇,更是锚定下一轮价值周期的关键起点。前滩滨江道,作为板块内备受瞩目的优质资产,无疑是穿越市场周期的确定性选择,目前首批次仅余最后少量臻席,敬邀珍藏。

☑️☑️前滩·滨江道售楼处电话:400-8377-020☑️☑️
在新房市场,自去年以来,前滩公馆6开6罄,前滩滨江新房,几乎已经到了“断供”的节点。 如今的前滩滨江道,就是入住前滩国际住区的最后机会!

☑️☑️前滩·滨江道售楼处电话:400-8377-020☑️☑️
前滩滨江上新「前滩滨江道」首推152套约89-152㎡3-4房;均价116541元/㎡
☑️☑️前滩·滨江道售楼处电话:400-8377-020☑️☑️