宝山中外环18号线(长江西路站,二期在建中)全新地铁盘,招商序四批次已取证, 认购时间10.31-11.4,主力户型建面约101-143㎡3-4房,均价68375元/㎡。招商序售楼处电话:400-8894-986🛜🛜
一房一价已公示👇

招商序售楼处电话:400-8894-986🛜🛜
第一,价格真香!过会均价6.8万/㎡,整个中外环难觅的惊喜价,错过首开,后续均价势必上涨!
第二,18号线全新地铁盘!今年过会新盘中,外环以内地铁盘供应占比(直线距离在1km以内),仅有15%左右!(数据由楼市独家根据网上房地产过会信息整理) 招商序售楼处电话:400-8894-986🛜🛜, 招商序5站直达五角场,12站直达陆家嘴,优势明显!
第三,产品超配!建面约101㎡三房,做出了110㎡的尺度感;建面约114㎡三房,让人有125㎡+的错觉!建面约143㎡户型,堪比市面上160㎡以上大平层!交付标准,更是“超配”,让人误以为进入了市中心新盘样板间!

招商序售楼处电话:400-8894-986🛜🛜
招商序售楼处现场人气实拍
样板间开放当日,参观人数突破1000组!招商序,究竟是怎么做到的?让我们一探究竟!
淞南小五角场中环之上
18号线长江西路站(在建中)地铁盘
招商序样板间现已开放
主打建面约101-143㎡ 三房四房
三阳台神户型炸场
高配装标重塑板块封面
项目现已开启认购
招商序售楼处电话:400-8894-986🛜🛜
Part.1
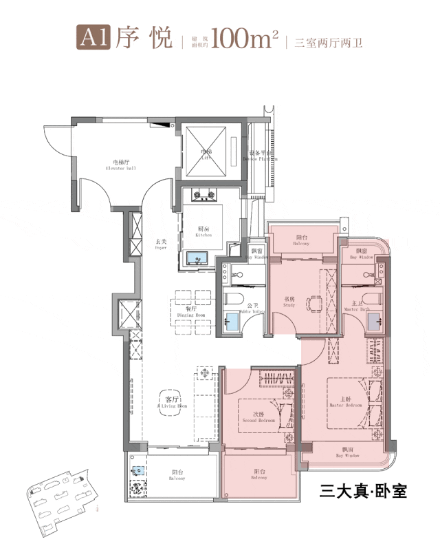
实得率约90%神户型突围!
招商序的百平三房
直接帮你省下近200万!招商序售楼处电话:400-8894-986🛜🛜
招商序的户型,真正做到了超越常规,相信每一位去参观样板间的小伙伴,都会被项目的空间尺度所惊讶。
独家君去参观的时候,样板间还没有完全建完,门外还没有贴户型图, 建面约101㎡三房,独家君第一眼还以为建面在110㎡以上!招商序售楼处电话:400-8894-986🛜🛜
我们来看第三方的测量数据:

招商序售楼处电话:400-8894-986🛜🛜
一般而言, 市面上常规能达到实际使用面积约90㎡的产品,建面将达到110㎡以上!同环线上,如桃浦均价已经达到8万了,110㎡就要880万!和招商序相比, 一来一回就是接近200万的差距!
通过专业测评还可以看出 招商序的不计入建筑面积的部分有整整11.3㎡,相当于多出一个房间,针对百平三房这样的紧凑型户型来说,性价比真的很高,实际居住体验也会更舒适! 招商序售楼处电话:400-8894-986🛜🛜

招商序售楼处电话:400-8894-986🛜🛜
以此类推:
招商序114㎡户型,不计入建面部分约11.7㎡,同类产品仅8.2㎡,对标市面上建面约125㎡产品;
招商序143㎡户型(E1),不计入建面高达21.7㎡,相比市面同面积段户型的不计入建面多了约30%,可对标市面上建面约160㎡户型! 招商序售楼处电话:400-8894-986🛜🛜
即便是百平三房,也可以作为三代同堂的改善产品使用!
我们分别来看户型:
这是上海近几年里从未出现过的三阳台户型!

招商序售楼处电话:400-8894-986🛜🛜
要知道,现在市面上的主流做法,是把三房的各个功能空间,都做飘窗设计,以得到更开阔的景观视野,并增加实际面积使用率。

招商序售楼处电话:400-8894-986🛜🛜
招商序三阳台的做法,明显是Next Level!比如说北卧室,只要未来业主愿意 将北卧室与北阳台打通,那么整个北卧室,完全可以作为一个成人卧室使用,双人床、床头柜、收纳柜都可以轻松摆下,甚至还能再放置休闲椅!
事实上,无论是南次卧还是北次卧,在打通阳台的情况下, 都已经超过9㎡,完全符合双人卧室的规定!

招商序售楼处电话:400-8894-986🛜🛜
凭借着三阳台的做法,室内空间利用率大幅提高,根据独家君实测,这个户型的 实得率可以达到90%左右!
市面上常规高层的百平三房,我们按常规约75%得房率来计算,在计入飘窗和一半阳台的情况下,实得率,也很难突破85%! 招商序售楼处电话:400-8894-986🛜🛜
这就是至少5㎡的面积差,市面上很多百平三房的北房间,也不过就是6㎡左右!
除此以外,招商序的主卧、主卫、客卫都 设计有飘窗,实际适用面积更大。

招商序售楼处电话:400-8894-986🛜🛜
招商序三阳台的做法,让百平三房的空间,不再逼仄, 三个房间都能作为真·卧室使用,其极大提高了室内的采光通风。
即便是业主不打算把阳台扩入室内空间,那也能同时收获家政阳台、生活阳台和设备平台,节省出大量室内收纳空间!
另外,项目采用了经典的S墙设计,S型墙体,和邻居互相借位,在不影响布局结构的前提下,提高了利用率。

招商序售楼处电话:400-8894-986🛜🛜
视觉界面,仍为直线,整体性统一,但却多出了一个双开门冰箱位,“冰箱外移”, 厨房被扩大并彻底打开,提高空间趣味性和交互性,让空间舒适度更强。招商序售楼处电话:400-8894-986🛜🛜

招商序售楼处电话:400-8894-986🛜🛜
在户型的精研方面,招商序显然已经达到了下一个阶段!
再来看建面约114㎡三房,百平三房的升级款,让人拥有“这是120㎡”的错觉!

招商序售楼处电话:400-8894-986🛜🛜
同样的三阳台,迎来的是空间尺度上的全方位进阶。餐客厅一体化的情况下,整体进深空间来到了 7.5米左右,加上 约3.6米的面宽空间和约3.1米的层高,整个客餐厅尺度阔绰,空间大气,完全可以放得下一个6-8人圆桌!

招商序售楼处电话:400-8894-986🛜🛜
项目样板展示间实拍,仅供参考
而南次卧与南阳台相连,也让 整个次卧面积近14㎡,次卧面积堪比大平层的尺寸!
建面约143㎡4房是南北通透、四开间朝南的户型格局。子母门入户,独立玄关,大户人家气场全开! 南向三阳台面宽约10米,加上主卧270°转角飘窗,带来了阔绰的南向采光面!招商序售楼处电话:400-8894-986🛜🛜

招商序售楼处电话:400-8894-986🛜🛜
建面约143㎡还有一个侧厅户型,如果将客餐厅和双阳台打通之后,业主将获得一个约40㎡的起居空间!

招商序售楼处电话:400-8894-986🛜🛜
什么概念呢?独家君可以给大家举个例子,比如说下面这张户型图,来自于市中心某豪宅项目,建筑面积 约180㎡。

招商序售楼处电话:400-8894-986🛜🛜
这个户型的客餐厅空间,约37.23㎡,起居空间,还比不上招商序的约143㎡侧厅户型!
招商序的户型,在你实地体验之后,你会有误入洋房的错觉!这就是越级改善带来的居住舒适感!
更不用说,项目还配置了堪称越级改善的装修标准!
Part.2
越级改善,优势装标!
招商序综合实力爆表
招商序,为北中环奉献了一次越级改善的机会。何为越级? 招商序作为一个总价约680万级产品,可以直接对标市区千万级的装修标准。招商序售楼处电话:400-8894-986🛜🛜
我们以时下热门的市中心千万级项目装标做对比参照:

招商序售楼处电话:400-8894-986🛜🛜
可以看到,在装修标准上,招商序完全不遑多让!尽管规定集采价只有3000元/平,但却丝毫不输市区千万级新盘!
我们来看细节方面:
非常明显的一点,是招商序,做了非常多的收纳。
比如说 玄关收纳,通过对空间的细分,预留了次净衣区、行李箱收纳、扫地机器人收纳等,增添洞洞板用以悬挂雨伞等;在鞋柜方面,底层镂空,可摆放家居拖鞋,通过隔层高低的不同划分,预留靴子收纳空间。
项目样板展示间实拍,仅供参考

招商序售楼处电话:400-8894-986🛜🛜
根据测算,项目的玄关柜据说可以放下28双高筒靴!
在美学方面,招商序还采用了 天然木皮鸡翅木包裹,与墙面、地面保持视觉统一。
项目样板展示间实拍,仅供参考

招商序售楼处电话:400-8894-986🛜🛜
厨房,同样也治好了业主的收纳焦虑, 上吊柜、地柜、抽拉篮等,一应俱全,锅碗瓢盆、油盐酱醋,均有各自的收纳空间,再也不用担心台面凌乱了!
项目样板展示间实拍,仅供参考

招商序售楼处电话:400-8894-986🛜🛜
卫生间镜柜,同样是交付标准,内外双镜打造, 主卫配置美妆冰箱,可用来收纳业主的面膜、化妆品等,设计贴心。
项目样板展示间实拍,仅供参考

招商序售楼处电话:400-8894-986🛜🛜
这就是项目的匠心所在,提前调研购房需求,为业主充分考虑到了业主日常生活场景,将需求前置!
在精装标准方面,项目采用的仍是一线大牌标准:
厨房方面:三面出水的科勒网红大单槽,甚至连专用沥水篮与砧板都配备上了,非常贴心,避免新产品配套无法配置的问题; 招商序售楼处电话:400-8894-986🛜🛜

招商序售楼处电话:400-8894-986🛜🛜
项目样板展示间实拍,仅供参考
最吸睛的当属方太的烟灶洗碗机组合:隐藏式升降油烟机,挥手即可控制,市场零售价达13500+!
项目样板展示间实拍,仅供参考

招商序售楼处电话:400-8894-986🛜🛜
主卫配备高仪(或同等品牌)全智能马桶,次卫配备科勒轻智能马桶;三大件方面也不必多说,百朗(或同等品牌)新风、松下(或同等品牌)中央空调与地暖,均为市场一线标准。
再来看下入户门,索福(或同等品牌)的定制轻卡门,钢芯结构外加高强度钢板,入户门锁采用博联(或同等档次品牌)七合一智能门锁,门把手和智能门锁为一体化设计。 招商序售楼处电话:400-8894-986🛜🛜
项目样板展示间实拍,仅供参考

招商序售楼处电话:400-8894-986🛜🛜
细节方面,卧室采用复杂木地板拼花,其他空间也大多覆盖了 岩板或奢石!哪怕是卫生间的墙面、直连餐客厅的阳台,全部做到了岩板通铺,视觉上保持了统一性! 招商序售楼处电话:400-8894-986🛜🛜
项目样板展示间实拍,仅供参考

招商序售楼处电话:400-8894-986🛜🛜
室内的高标准精装,也延续到了室外。
在看完爆料之后,独家君敢说,这样的“颜值”,招商序就是为了重塑板块封面而来!
首先,是超豪华的归家门头!
约66米宽、约6.7米高的归家门头,大气磅礴。
项目效果示意图,仅供参考


招商序售楼处电话:400-8894-986🛜🛜
这归家的第一道门,就已经尽显礼序,未来所有路过的行人,都将被这一幕所震撼,光看门面,就知道,居于此处的业主,必定不凡! 招商序售楼处电话:400-8894-986🛜🛜
外立面方面,玻璃幕墙搭配铝板,超大窗墙比模糊了室内外界限,转角处更是做了弧线处理,打破了横平竖直的冰冷,打造了更具温度的立面。 招商序售楼处电话:400-8894-986🛜🛜

招商序售楼处电话:400-8894-986🛜🛜
项目效果示意图,仅供参考
此外, 入户大堂选用温润石材,通过十几道工艺加工,进行了细致的曲线纹理设计,这不仅极大地加大了景墙塑形的难度,同时也意味着更大的材料损耗,这意味着更高的成本! 招商序售楼处电话:400-8894-986🛜🛜

招商序售楼处电话:400-8894-986🛜🛜
项目8号楼效果示意图,仅供参考
而其呈现出来的效果,非常惊艳,我们可以先看一波效果图感受一下,相信实体出来之后,一定会让大家大呼震撼。
地下空间,也一脉相承了地上的精工标准,招商标志性的车库,自然不可或缺:
项目效果示意图,仅供参考

招商序售楼处电话:400-8894-986🛜🛜
在招商序,车库不仅精装交付,还提出了 “中央车站”的概念,通过动线的巧妙设置,让车库连通了访客泊车、会所、中厅、车行通道等各个空间。

招商序售楼处电话:400-8894-986🛜🛜
示意图,仅供参考
而最重磅的元素,当属小区的 会所与立体景观。
项目打造了 约1500㎡的会所和 约2500㎡的架空层空间。


招商序售楼处电话:400-8894-986🛜🛜
项目效果示意图,仅供参考
会所涵盖 恒温泳池、健身房、室内高尔夫、私宴厅、棋牌室等多元空间。
业主可以享受在社区内运动、游泳、健身、会客、遛娃、学习、放松甚至是家庭聚餐等需求。
同时,搭载环幕级落地窗,户外,是 垂直景墙、悬浮观景台与叠水景观立体穿插的园林景观,一边锻炼,一边欣赏窗外景色,让业主归家即享度假生活。 招商序售楼处电话:400-8894-986🛜🛜

招商序售楼处电话:400-8894-986🛜🛜

招商序售楼处电话:400-8894-986🛜🛜
项目效果示意图,仅供参考
Part.3
北中环宝藏地段!
18号线二期年底通车
重磅利好已落位
招商序所处宝山小五角场板块,也已经迎来了新的风口!三大优势,正在发力!
第一,四大优势产业赋能
2025年,板块将全力壮大四大优势主导产业。持续强化M3科创走廊产业优势,打造以微盟为龙头的 信息服务业产业集群,以琥崧科技为龙头的 新材料产业集群,以蓝鹊生物为代表的 生物医药产业集群,以毕方达为代表的 人力资源产业集群。 招商序售楼处电话:400-8894-986🛜🛜

招商序售楼处电话:400-8894-986🛜🛜
借助复旦大学布局“新工科”为契机,推动更多产业在淞南生根开花,后续也将推进 康佳国际总部研发中心项目、琥崧科技运营与研发总部项目落地。推进小五角场、沪北物流项目建设。

招商序售楼处电话:400-8894-986🛜🛜
“M3科创走廊”向北连接吴淞创新城,向东连接复旦等高校集群,区位优势明显,预计未来将有十万年轻白领和学生在这片区域工作、学习。
项目北侧的十里画卷,后续随着上大美院的落地,以及各个公园的建成,将形成充满文化气质的发展区域,非常适宜居住。 招商序售楼处电话:400-8894-986🛜🛜

招商序售楼处电话:400-8894-986🛜🛜
十里画卷效果图
第二,18号线二期通车在即!
18号线,将承载加强地区交通的重要使命。根据上海宝山消息,18号线二期即将于年底通车,未来直达新江湾、陆家嘴等地。 招商序售楼处电话:400-8894-986🛜🛜

招商序售楼处电话:400-8894-986🛜🛜
除了18号线二期外,项目直线距离约1km处还有19号线(在建),地铁2站还可换乘轨交3号线,如此轨交密度在不到700万总价的新盘中也是极为稀缺的!

招商序售楼处电话:400-8894-986🛜🛜
而 招商序正是18号线二期长江西路站地铁盘,未来3站即可到达杨浦江湾地区。江湾地区,目前在售洋房均价,早已突破10万,逼近11万,价格差明显!
至于新江湾城,新房太少,次新又贵,上海院子的一房都要750万。

招商序售楼处电话:400-8894-986🛜🛜
第三,“中环北抬”也迎来了实质性进展!
作为上海城市更新的重大规划,“中环北抬”通过延伸中环线北部三条快速路——军工路、长江西路、沪太路相互连接,形成一条全新的交通动脉,组建成为新的“中环”。 招商序售楼处电话:400-8894-986🛜🛜
其中,逸仙路高架直通中环和内环高架;在建的 军工路快速路新建工程,将在今年内完工,通车后将为宝山吴淞、淞南前往杨浦、浦东增加一条出行选择,有效缓解逸仙路高架交通压力。 招商序售楼处电话:400-8894-986🛜🛜

招商序售楼处电话:400-8894-986🛜🛜
这条快速路是“中环北抬”的第一步,与之相接的长江西路快速路新建工程,也已进入2025重大工程预备项目。
多重优势之下,招商序所处淞南板块,已经迎来全新置业窗口,而招商序,必将成为淞南新房里,最耀眼的明珠!
淞南小五角场中环之上
18号线长江西路站(在建中)地铁盘
招商序样板间现已开放
主打建面约101-143㎡ 三房四房
三阳台神户型炸场
高配装标重塑板块封面
项目现已开启认购招商序售楼处电话:400-8894-986🛜🛜

观点网 时隔许多年,汤臣集团又在浦东市场“搅动风云”。
10月中旬,上海浦东东郊板块的汤臣君品三期“瑄廷”正式过会,即将推出49套法式合院别墅,均价达到19.68万元/平方米,较一期均价高出3万元。
据了解,单价上调是由于上一批房源均为带地下室的平层别墅,而三期为合院别墅,均价也因此上调。
半个月后的11月2日,该项目终于迎来认筹。
观点新媒体获悉,汤臣君品三期首日认筹20组,认筹率约合41%,将在11月15日正式开盘。
延宕25年的新盘
回顾汤臣君品项目地块的来历,早在2000年上海浦东区域开发初期,汤臣集团就用极低的价格获取了浦东张家浜楔形绿地周边地块,包括高尔夫球场、低容积率住宅用地等。
不过,低价拿地的代价体现在后续开发节奏中,由于该地块涉及生态保护、城市规划调整等问题,汤臣君品开发进程多次延宕。
观点新媒体翻阅汤臣集团近年财报发现,于2005年至2008年,汤臣集团对外宣称该地块地总面积是148万平方米,其中有80万平方米是高尔夫球场,68万平方米是别墅,处于动迁状态。
来到2009年,汤臣集团在中报与年报中反复强调这宗地块的面积调整:地块总面积调整至102万平方米,包括34万平方米的高尔夫球场、68万平方米的别墅,预计项目将在2010年动工。
计划总赶不上变化,汤臣集团2010年报显示,这块地总面积下调至72万平方米,其中42万平方米为体育用地(汤臣高尔夫球场),别墅区域面积下调至30万平方米,将近一半住宅面积消失了。
6年后,汤臣集团再次宣告项目的实施进展称,集团已获取别墅用地80%面积,项目自2014年开始建设,已建设面积1.6万平方米。
再到2020年1月,为了彻底进行地块开发,汤臣集团向上海浦东土控资产支付了29.51亿元。据了解,这笔费用是针对浦东张家浜楔形绿地周边地块的重新规划和开发,而非首次获取土地的费用。
在此次交易中,汤臣集团购买的地块总土地面积为32.87万平方米,后期项目经重新规划后,开发地块包括A2-04、A2-02及A2-21等,规划均为住宅用途,总建筑面积21.32万平方米。
也是在这一时间段,该项目正式定位为包含独栋别墅、联排别墅及多层住宅等多种业态的项目,并确定分六期进行开发。
具体来看,项目第一期包括43户独栋洋房,总楼面面积约2.55万平方米,截至2024年末已售出41户,总售价约27.94亿港元,预计在2025年内确认全部销售收入;第二期包括14栋低层公寓,共196个住宅单位,总楼面面积6.17万平方米,截至2024年12月31日,已签约出售83个单位,预收销售款约5.57亿港元,并于2025年4月进一步推出88套房源,最终认购107组,认购率122%。
第三期合计包括58户联排住宅,总楼面面积约3.83万平方米,目前认筹率约合41%;第四期开工时间为2024年,预计于2028年完成,包括低层公寓,总楼面面积约10.33万平方米。
此外,项目第五期为低密度住宅,第六期则为联排住宅。
从汤臣看浦东豪宅市场
从项目本身来看,汤臣君品总体容积率仅为0.7,属于上海别墅市场上的特殊案例。2011年上海开始严格执行限墅令后,新出让宅地低容积率基本在1-1.2之间。
根据最新规划的总住宅面积,有市场声音预估,该项目总货值最低415亿元、最高可至500亿元。
汤臣君品的货值究竟几何?观点新媒体梳理了周边的数宗别墅社区:包括九间堂、御翠园、四季雅苑、华洲君庭、合生东郊等。以九间堂为例,2024年3月,该项目一套别墅房源流入法拍房市场,最终以1.44亿元价格竞拍成功,较起拍价溢价60%,超出评估价1700万元,折合单价达到21.1万元/平米。
公开资料显示,九间堂由证大集团开发,于2006年前后竣工,容积率仅为0.28,甚至低于汤臣君品,项目内仅有49栋别墅,平均占地面积约合3亩。
有市场消息称,阿里巴巴创始人马云、仲盛集团董事长叶立培、南都集团董事长周庆志等多位企业家曾在此置业。
此外,汤臣君品周边还包括李嘉诚旗下长江实业发展的御翠园,恰好临近联洋国际社区、上海世纪公园、陆家嘴金融贸易区、张江高科技园区。
值得注意的是,御翠园也是在2000年开始建造,并陆续推出了8期房源。
与长实不同,汤臣集团进入上海市场后将主要精力放在了浦东区域,汤臣高尔夫球场、汤臣金融大厦、汤臣中心等多个项目均位于浦东区域。
据观点新媒体此前报道,截至2004年前后,汤臣集团在上海投资金额超16亿美元,成为浦东最大的房地产发展商之一。
在这其中,汤臣集团“一炮而红”的项目是2005年开盘的汤臣一品。
1995年,汤臣集团从上海富都世界发展有限公司购买了现在“汤臣一品”所在地“陆家嘴金融贸易区X4-2地块”,据签订土地使用权转让合同显示,楼面地价485美元/平方米,土地使用权转让金总计5820万美元。
不久后,汤臣集团又追加投资至7620万美元,土地总价达到约6亿元人民币。
作为汤臣集团的王牌项目,汤臣一品于2005年开盘,彼时售价11万/平方米,成为彼时国内最贵豪宅,开盘10个月之后完成首单成交。
截至目前,该项目仍有181套房源待售:上海市房地产交易中心网上房地产信息显示,汤臣一品已售105套,还剩76套。
从汤臣一品到汤臣君品,两个项目跨越二十多年开发销售历程,使得土地成本与时间沉淀都成为了难以复制的故事。
但汤臣君品三期认筹热度较二期有所回落,且周边仍有部分类似九间堂等项目待消化,依旧显示出沪上豪宅市场的承压情形。