滨江一品苑售楼处电话:400-8874-108✔【已认证】 滨江一品苑营销中心电话:400-8874-108✔✔【已认证】
上海滨江一品苑官方售楼处电话:400-8874-108 VIPLINE✔✔✔【已认证】
——滨江一品苑——
滨江一品苑售楼处电话:400-8874-108✔【最新预约】
滨江一品苑营销中心电话:400-8874-108✔✔【最新认证】
上海滨江一品苑官方售楼处电话:400-8874-108 VIPLINE✔✔✔【最新发布】
如有问题可来电咨询,线上售楼中心,预约销售专员,一对一为您服务!
想了解滨江一品苑更多信息?拨打售楼处营销中心热线:400-8874-108 (中介勿扰)【24小时热线】
浦东内环内瞰江大平层
4,6,19号线三轨交仅500米
距离黄浦江仅约900米
「滨江一品苑」 直接认购
少量建面约134-234㎡3-4房
均价11.2万/㎡ 总价1400万起
区重点保交房+准现房!
售楼处线上火热预约中!

滨江一品苑,经历了资金链断裂、项目停工、开发公司破产重整,终于重新走上正轨。“停工这三年,数不清的不眠之夜,顶着各种压力,还要定期缴还银行贷款、支付在外租房费用。”业主吴女士书面回应了《每日经济新闻》记者的采访。
项目的新物业公司有关负责人在接受每经记者采访时表示,滨江一品苑是保交付项目,管理人在费用控制上比较严格,实际物业费单价维持在业务平衡线上,物业公司前期压力比较大。
2月13日,业主张仪(化名)向每经记者透露了最新进展,3月2日~10日分批预看房。滨江一品苑也重启了剩余房源和地下车位的销售,由销售代理机构代为销售。
图源|上海网上房地产

上海网上房地产显示, 目前项目在售房源82套,超过总房源数的23%。未售房源中包括顶层约713平方米的超大户型以及大户型底墅。


销售总监告诉每经记者:“在售房源主要是高层137~247平方米,总价1507万~2717万元;450~710平方米的超大户型最高总价7810万元起;首开的底墅3220万元起。区重点保交房+准现房+价格有倒挂!
⬇️专业销售一对一咨询⬇️
耐心等待官方VIP客户经理回电

『滨江一品苑』项目属于陆家嘴金融贸易区内,内环内塘桥板块.在整个上海内环新盘稀缺的当下,尊雅双子塔楼,俯瞰滨江盛世, 立面风格整体为ARTDECO风格,配以落地玻璃窗,干挂石材外立面。以137㎡- 234㎡江景小户型升级归来,肯定吸引众多自住买家。

项目距离黄浦江直线距离约900米,拥有一环、三桥、双轨交、八隧道的交通配套。一环:内环高架路;三桥:南浦大桥、杨浦大桥、卢浦大桥;双轨交:4号线、6号线八隧道:龙耀路、打浦路、西藏南路、复兴东路、人民路、延安东路、新建路、大连路


项目属于内环内塘桥板块,人民广场的直线距离仅4.5公里。 地铁4号线塘桥站距离项目800米,步行7分钟可达。距离黄浦江仅约900米;交通非常的便利!IFC国金中心、环球金融中心,陆家嘴璀璨的世界商业地标;众多米其林餐厅,赏味世界美食。

项目主力户型 :134-234㎡邱德光御制示范空间以新中式、时尚巴洛克与Neo Art-Deco风格所共同打造,代表了一品苑品牌在滨江这一城市中轴核心的价值地段,为人们打造全新奢适居住生活样本的倾心之作。

在打磨产品上毫不吝啬,高达一亿的惊人投入,精工细凿,只为呈现一个完美的居住空间,为每一位 一品苑业主带去最精致的奢适体验。



7米高入堂大厅。所有户型的厅、堂、卧室均采用落地观景窗,以保证充分采光及大面积景观视野。


最新消息! 内环江景大宅 再次启动!『滨江一品苑』主力户型约134-234m²,未售中包括顶层约450-708平的超大户型以及230-350㎡底墅!均价11.18万,预计2025.6.30日交房,绿城物业加持 准现房! “破茧重生”内环价格洼地!
建筑面积约137-234㎡阔景高层
总价约1507-2717万!






建筑面积约230-350㎡花园底墅
总价约3220-4900万



建筑面积约450-710㎡天际大平层
总价约4950-7810万


⬇️专业销售一对一咨询⬇️
耐心等待官方VIP客户经理回电
一房一价表如下▼




滨江一品苑 全方位配套2000m²下沉式会所 。包含了半标准的泳池、健身房、咖啡厅等功能,用于满足业主高规社交需求。




项目占据城市中心资源,立体交通网络为通达城市提供便利,生活需求更是一应俱全。 2月11日,业主之间互传喜报:绿城服务将成为滨江一品苑物业。为交付项目提供物业服务。


滨江一品苑在绿化方面还是做的相当用心, 小区内有约1.3万㎡新古典林园景观,里面种植有日本原生樱花林近百株,通过南北贯通无障碍通道和小区慢跑道,将景观串联在一起,尽享景观带来的舒适。

项目1公里范围内拥有完善的生活配套

商业方面:有巴黎春天、新塘桥生活广场、世纪联华、沃尔玛等商业配套。

学校方面:周边有爱绿幼儿园、浦东南路小学、文建中学、洋泾中学等

医院方面:附近有仁济医院、上海儿童医学中学,步行仅需约5分钟


浦东内环内瞰江大平层,建面约134-234㎡3-4房,距离黄浦江仅约900米
滨江一品苑最新消息, 内环江景大宅 再次启动!134-234m²!均价11.18万,预计2025.6.30日交房,绿城物业加持 准现房 房源少量! 同样地段内环外的保利世博天悦新房在售均价16万+/平,滨江一品苑性价比超高。
浦东内环内 塘桥滨江
滨江一品苑
由2栋30层高层组成
建面约134-234㎡ 阔景大宅
装修:精装修、中央空调带地暖,1.2万装修标。
均价:11.18万元/m²
低区仅约8.66万/㎡起!
将加推约134—234㎡3-5房!
不要积分!不用摇号!
最后一栋!售完即罄!

实景拍摄:




团队实地拍摄
滨江一品苑,经历了资金链断裂、项目停工、开发公司破产重整,终于重新走上正轨。
“停工这三年,数不清的不眠之夜,顶着各种压力,还要定期缴还银行贷款、支付在外租房费用。”业主吴女士书面回应了《每日经济新闻》记者的采访。
项目的新物业公司有关负责人在接受每经记者采访时表示,滨江一品苑是保交付项目,管理人在费用控制上比较严格,实际物业费单价维持在业务平衡线上,物业公司前期压力比较大。
2月13日,业主张仪(化名)向每经记者透露了最新进展,3月2日~10日分批预看房。
滨江一品苑也重启了剩余房源和地下车位的销售,由销售代理机构代为销售。
图源|上海网上房地产

上海网上房地产显示,目前项目在售房源82套,超过总房源数的23%。未售房源中包括顶层约713平方米的超大户型以及大户型底墅。
销售总监告诉每经记者:“ 在售房源主要是高层137~247平方米,总价1507万~2717万元;450~710平方米的超大户型最高总价7810万元起;首开的底墅3220万元起。2017年7月,保利地产以49.71亿元代价获得一宗黄浦江边、规划建筑面积逾20万㎡的住宅项目50%股权。
根据协议,除了增资所需的49.7亿之外,保利还需要另外贷款40.7亿给上海华辕实业。
所以这块地的 开发成本极高。
除了在资金上有高要求外,该项目在增资条件上还要求增资企业必须在借款协议签订日起5个工作日一次性支付贷款额给增资人。
这幅地块就是曾经的世博村,地上建筑面积达到16.73万㎡,项目的总建筑面积(包括地上车库)达到20.85万平方米。

目前保利世博天悦在售房源均价16万+/平,预计26年9月底交房,滨江一品苑内环内,准现房,装修标准超高,唯一的缺点是塔楼,旧改的项目.
『 滨江一品苑』 项目属于陆家嘴金融贸易区内,内环内塘桥板块.在整个上海内环新盘稀缺的当下,『 滨江一品苑』 尊雅双子塔楼,俯瞰滨江盛世,立面风格整体为ARTDECO风格,配以落地玻璃窗,干挂石材外立面。以137㎡- 234㎡江景小户型升级归来,肯定吸引众多自住买家。

效果示意图
一品价值|三大核心资本
陆家嘴、外滩、前滩环抱,上海资本金三角核心位置。享三大中心规划利好,可谓滨江一线至贵之焦点。
一品占位|陆家嘴臻藏席位
承载滨江百年繁华,擎启陆家嘴都会繁荣。这里是无数人极致梦想中的生活圣地。滨江稀贵土地抢夺步伐愈发加快,你不来,它不待。
一品人生|璀璨生活高地
IFC国金中心、环球金融中心,陆家嘴璀璨的世界商业地标;众多米其林餐厅,赏味世界美食。

浦东滨江一品苑在2017年以前叫东樱花苑,是日本松下产业株式会社于上世纪九十年代在上海开发的项目,原两幢楼的开发商是日本松下集团,因小区中有200多颗樱花尔起名东樱花苑。项目于1997年一期竣工。项目规划用地为住宅用地,项目建成后主要是作为公寓式酒店,提供给在沪生活的日本人家庭及在上海出差的日本人租用。
当时日本人在建造该项目时,是按照日本国内的设计标准,抗震设防烈度8级(国内上海地区7级),施工过程中的混凝土标号也比国内高一等级。因此可以看出东樱花苑最大的优点是建筑建构设计和施工质量好。
2016年上海城利房地产有限公司以均价3.3万左右,共计30多个亿从松下产业株式会社收购该项目,现开始进行改造重新包装,这就是现在的滨江一品苑。

滨江一品苑是上海城利地产开发的高端住宅,“一品苑”系为城利地产的注册品牌,在上海能看到的所有叫“一品苑”的项目皆为城利地产开发。

项目位于浦东新区 内环内,毗邻陆家嘴商圈,距离世纪公园商圈3公里,距离陆家嘴商圈1.5公里,地理位置优越,称得上是上海真正的市中心地段。享三大区域规划利好,位于滨江沿线区位,中区以上楼层全面瞰江。



01.周边配套
交通优势:
1环2桥2隧道双轨交:内环内,南浦大桥、卢浦大桥,复兴路隧道、人民路隧道,门口轨道交通4/6号线。

商业环绕:
项目1公里范围内有巴黎春天、新塘桥生活广场、世纪联华、沃尔玛等商业配套。

教育资源:
学校方面有爱绿幼儿园、浦东南路小学、文建中学、洋泾中学等。
参考的教育配套有冰厂田幼儿园、爱绿幼儿园、建平中学、宋庆龄国际学校(期房非对口)。

医疗资源:
项目距离仁济医院、上海儿童医学中学步行仅需约5分钟。
识别二维码
进入“滨江一品苑官方”看房通道
案场销售会第一时间与您联系
预约后请耐心等待案场销售联系
目前预约看房客户确保底价购房 额外有团购大礼

真正的大宅排面





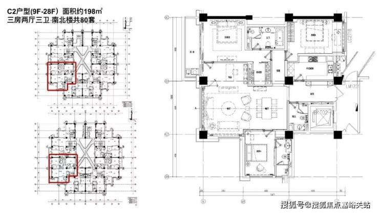
02.主力户型
本期推出共175套,目前主推建筑面积131~226平3房,另有非标准户型200~500平底楼,顶楼复式。 套房设计,套内独立卫生间,独享私人空间。




131平米:3房2厅1卫 (1梯2户)

户 型 图
193平米:4房2厅3卫(1梯2户)

户 型 图
226平米:4房3厅3卫(1梯1户)

户 型 图
全面积段覆盖,满足二人世界、三口之家以及大家族的不同需求,量身定制经典户型。
参考样板间:











滨江一品苑屹立外滩、陆家嘴、前滩3大核心资本圈之内,享三大区域规划利好,可谓滨江一线至贵焦点。于陆家嘴-世博-前滩发展轴线之心,滨江顶豪圈层内,执掌核心土地价值。
03.
前期一房一价表:



04.物业管理
2025年2月绿城物业服务集团(上海)物业管理有限公司中标滨江一品苑前期物业项目,正式成为滨江一品苑物业。
绿城物业一直以来都是物业行业的佼佼者,以专业、贴心、高品质的服务著称。相信在绿城的管理和服务下,滨江一品苑一定会成为一个环境优美、服务周到、邻里和谐的高品质社区。业主期待与绿城物业携手,共同开启滨江一品苑的美好新篇章!

浦东内环内 塘桥滨江
滨江一品苑
由2栋30层高层组成
建面约134-234㎡ 阔景大宅
装修:精装修、中央空调带地暖,1.2万装修标。
滨江一品苑售楼处电话:400-8874-108✔【已认证】
滨江一品苑营销中心电话:400-8874-108✔✔【已认证】
上海滨江一品苑官方售楼处电话:400-8874-108 VIPLINE✔✔✔【已认证】
如有问题可来电咨询,线上售楼中心,预约销售专员,一对一为您服务!
想了解滨江一品苑更多信息?拨打售楼处营销中心热线:400-8874-108 (中介勿扰)【24小时热线】
楼盘项目全面介绍,本电话为开发商提供线上预约售楼电话,楼盘项目全面介绍(包含楼盘简介,均价,房价,现房,期房,别墅,叠墅,大平层,价格,楼盘地址,户型图,交通规划,备案价,备案名,项目配套,样板间,开盘时间,认筹时间,楼盘详情,售楼处电话,最新消息,最新详情,周边配套,一房一价,最新进展等详情咨询)楼盘详情丨价格丨更多优惠丨机不可失丨欢迎致电丨诚邀品鉴!售楼处位置丨特价房丨工抵房丨剩余房源丨户型图丨最新消息丨免责声明:将文章内容综合来源于网络、只作分享,版权归原作者所有!!如有侵权,请联系我们,我们第一时间处理如有问题欢迎来电咨询,专业一对一热情服务,让您用专业眼光去买房.如果您想了解更多楼盘详情,欢迎提前预约拨打
2025年至今,多地对公积金政策进行调整优化,包括北京、上海、深圳、成都等热点一、二线城市。
从政策内容来看,涉及多个方面,既有调整首付比例及贷款利率、提高贷款额度、提高年龄上限和使用范围等常见调整,也有直付房租、将灵活就业人员纳入住房公积金缴存范围等试点。
截至目前已经有超20城对公积金政策进行优化。对于超1.7亿缴存者来说,这笔钱正变得更可及、更好用。
住房公积金在相当长的一段时间只针对买卖市场,从前几年开始对租赁端有所松动,一直到如今公积金使用的弹性越来越灵活。
这一方面是公积金管理在适应市场的变化,另外一方面也是对整体房地产市场调控的配合。

2月以来,各地密集出台住房公积金贷款优化政策。如长沙、济南、大连等城市,都不同程度提高了住房公积金贷款额度,最高额度都提高了几十万元不等,此外最低首付比例也降到了20%。深圳、福建等多地则明确支持省内购房异地可以提取,厦门、莆田、南平等地还允许父母或子女等家庭成员之间利用住房公积金进行购房贷款。
据不完全统计,2025年至今全国已经有超过20个城市出台了公积金优化调整相关政策。
从具体政策内容来看,部分为以往政策的延续,如降低首付比例、下调存量贷款利率便是对2024年全国层面取消全国层面房贷利率下限、下调房贷首付比例和公积金贷款利率的响应。又如调整住房公积金贷款到期日,将还贷期限延长则是对国家延迟退休的政策的响应。
住房城乡建设部数据显示,2023年,我国住房公积金实缴职工人数超过1.7亿 ,缴存额达到34697.69亿元。
目前每个城市出台公积金政策的角度和细则不一,各地正通过一系列公积金政策“组合拳”,着力盘活存量住房公积金的使用效率,在一定程度上让一些刚性需求和改善性需求进行适度释放,为市场注入新活力。这也是因城施策的具体体现。


从各地公积金政策“组合拳”来看,将灵活就业人员纳入缴存范围正成为新的热点。
目前天津、宜昌、兰州等地已明确将个体工商户、自由职业者等灵活就业人员,也纳入住房公积金缴存范围。灵活就业人员原则上也可享受“商转公”“多孩家庭公积金贷款支持政策”等多重权益。
2024年1月14日上海市人民政府办公厅印发《上海市促进在线新经济健康发展的若干政策措施》,也提出打造灵活就业服务新模式,推进灵活就业人员参加住房公积金制度。
从已试点城市来看,2月17日宜昌住房公积金中心发布最新工作动态:今年以来,宜昌住房公积金中心认真贯彻落实党中央、国务院提出的“推动住房公积金向职业劳动者广覆盖”要求,将住房公积金融入全市发展大局,以获批灵活就业人员参加住房公积金制度全国第三批试点城市为抓手,乘“巳”而上,谋新求变,全力以赴吹响公积金事业高质量发展号角。2025年1月底灵缴全国试点正式启动以来,全市新增灵活就业人员开户6309人,春节前后20天的开户数超过过去五年的总和,新增开户人员实缴金额近2000万元。
从政策创新点来看,其将灵活就业人员纳入住房公积金缴存范围,通过住房公积金支持灵活就业人员租房、购房,助力各类就业群体住有所居。缴存方式上,许多城市也充分考虑到灵活就业人员收入不稳定的特点,极为灵活。
另外,根据《天津市灵活就业人员参加住房公积金制度管理办法》,对于灵活就业人员连续停缴6个月以上(含6个月),无未结清的个人住房公积金贷款或账户余额不足最近一次个人住房公积金贷款月还款额的,可提取全部住房公积金并注销个人住房公积金账户。这也将有力支持此类灵活就业人员公积金贷款权益。
需要注意的是,从灵活就业人员的角度来说,若住房公积金贷款与商业贷款之间没有明显的差异与优惠,其参加住房公积金的积极性或将不足。
目前全国大部分城市已取消房贷利率下限,同时,自2024年5月18日起,中国人民银行下调个人住房公积金贷款利率0.25个百分点。首套个人住房公积金贷款利率2.85%,第二套个人住房公积金贷款利率3.325%。
2024年底广州部分区域商业银行最低房贷利率低至2.6%,曾出现商贷与公积金贷款利率“倒挂”情况。为此2024年11月6日,广东省人民政府新闻办公室官方微信“广东发布”发文曾表示:多家银行及按揭中介确认,自11月7日起广州地区主要商业银行或统一调整房贷利率,各家银行商业房贷利率最低不得低于3%。

截至目前央行公布的新一期LPR显示,5年期以上LPR为3.6%。可以看到随着公积金贷款利率与个人住房商贷利率的利差持续收窄,灵活就业人员自愿参与住房公积金缴存的积极性存疑。

2025年1月20日,北京发布《关于开展提取住房公积金直付房租业务试点工作的通知》。
“直付房租”是指公积金中心根据缴存人的授权和申请,按月将缴存人可提取的住房公积金从其住房公积金账户直接划转至试点住房出租机构指定账户,用于支付房租的提取方式。
共有4类租房提取类型可以申请“直付房租”业务:一是租住商品住房提取;二是多子女家庭租住商品住房提取;三是租住保障性租赁住房提取;四是租住公共租赁住房提取。
申请“直付房租”业务的缴存人,数据互联校验通过的,可实现“零材料”办理。
数据显示,近年来我国住房公积金租房提取金额、人数快速增长,每年支持超过1500万新市民、青年人等缴存群体提取住房公积金支付房租,其中40岁以下青年人占比超过80%。
根据国家规定的缴存比例,每个人及其单位为其账户缴纳的公积金总额,约为其工资总额的10%到24%。对初入职场、缴存总额不高的年轻人而言,能否有效利用公积金,也直接影响着他们的生活质量与幸福感。
此次北京试点住房公积金直付房租对租房领域落实了更为宽松和友好的政策,具有非常好的导向。


2024年全年共有266省市放松公积金政策,整体效果相对有限,尤其是对购房需求的实际撬动作用非常有限,只有少数客户可能因为公积金政策的放宽,而增加购房意愿,或转向选择公积金贷款。
进入2025年,作为第一波政策落地,目前已有超20个城市对公积金政策进行调整优化,在信号上较为积极。
从2024年9月26日中央政治局会议首提“促进房地产市场止跌回稳”,再到12月11日至12日中央经济工作会议再作定调“持续用力推动房地产市场止跌回稳”。从“促进”到“持续用力”表述的转变,不仅凸显了稳定房地产市场的迫切需求,也反映了市场需要持续的政策支持。
我们认为随着越来越多城市对之前各项政策落地实施,2025年整体政策仍将继续保持宽松状态,后续也将有更多政策在紧锣密鼓地优化落地当中。