华发洞泾项目-上海(华发洞泾项目)首页网站丨华发洞泾项目欢迎您丨楼盘详情
扫描到手机,新闻随时看
扫一扫,用手机看文章
更加方便分享给朋友
上海华发洞泾项目
售楼处电话:400-833-6309【售楼热线】营销中心热线-400-833-6309-售楼处地址-400-833-6309
如有问题欢迎来电咨询,来电即可享受买房优惠!预约来电尊享购房优惠,可预约案场内部销售人员,专业一对一热情服务,让您用专业眼光去买房!
华发洞泾项目售楼处电话:400-833-6309【售楼热线】营销中心热线-400-833-6309-售楼处地址-400-833-6309
松江洞泾板块,9号线、12号线(西延伸)双轨交——华发洞泾项目,住宅规划设计方案公示,将打造小高层以及叠拼产品。
预计首开05-01地块
推售建面约89-99m²高层3房、建面约100-130m²叠墅
房地联动价5.0万/㎡,预计10月底开始巡展
项目销售团队已组建,有兴趣的伙伴们,文中扫码预约销售了解项目详情!
华发洞泾项目示意图

华发洞泾项目售楼处电话:400-833-6309【售楼热线】营销中心热线-400-833-6309-售楼处地址-400-833-6309

从规划控图来看,华发地块距离9号线洞泾站不远,未来还有12号线西延伸线的加持,周边还有较多的住宅,商业、办公等地块规划。
21年、22年,洞泾分别出过1幅宅地,21年的香港兴业地块,联动价5.03万/㎡;
22年的中建大椿地块(中建大椿嘉利椿廷),联动价5.3万/㎡。
而今年第三批土拍第二轮洞泾有一幅地块供应,联动价也是5.3万/m²

相比于中建大椿和即将出让的地块,华发项目5万的联动价已经有了3000元每平的价格优势。
避免大客流影响服务质量、影响到您的参观体验
仅接受预约参观,感谢您的理解与支持!
华发洞泾项目售楼处电话:400-833-6309【售楼热线】营销中心热线-400-833-6309-售楼处地址-400-833-6309
即可预约 莅临品鉴
预约后请耐心等待案场销售联系
目前仅接待预约客户
土拍回顾及规划
2023年7月11日,上海二批次土拍,华发以总价706310万元成交松江区洞泾镇SJS30006单元04-04、05-01、05-05号地块,地块出让面积130113.2㎡,容积率2.1,溢价率10%,楼板价25850元/㎡,房地联动价50000元/㎡。
项目四至范围,东至百尧村路、南至联营村路、西至04-03地块、北至城桂路。
根据土地转让合同显示,04-04地块的规划住宅套数下限为942套、05-01地块的规划住宅套数下限为1055套、05-05地块的规划住宅套数下限为735套、总体量超过了2700套,是个超大体量盘。

华发洞泾项目售楼处电话:400-833-6309【售楼热线】营销中心热线-400-833-6309-售楼处地址-400-833-6309
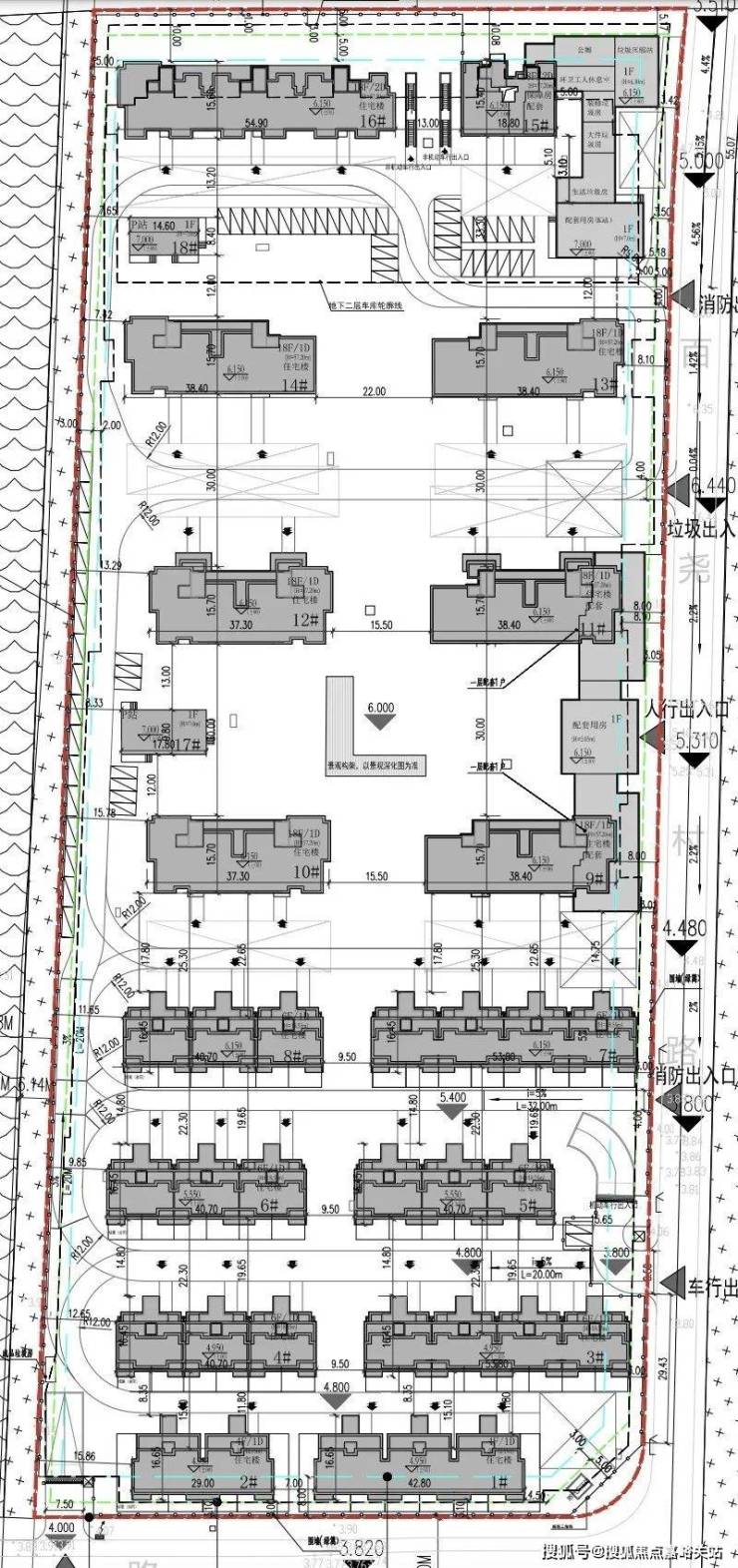
根据项目规划设计方案,拟建56幢4-18F的住宅、保障房以及其他配套用房,其产品为高层&洋房&叠加的组合。

具体经济指标如下:

华发洞泾项目售楼处电话:400-833-6309【售楼热线】营销中心热线-400-833-6309-售楼处地址-400-833-6309
三块地的各自规划如下👇
04-04地块的门位于东面与南面,根据设计方案显示,有8栋18层高高楼,6栋6层楼栋以及6栋4层高楼栋。18层高度约为57.2m,6层为18.55m,4层为12.55m。
华发洞泾项目售楼处电话:400-833-6309【售楼热线】营销中心热线-400-833-6309-售楼处地址-400-833-6309
05-01地块的门位于西面与东南角,根据设计方案显示,有9栋18层高高楼,6栋6层楼栋以及5栋4层高楼栋。18层高度约为57.2m,6层为18.55m,4层为12.55m。
05-05地块的门位于西南角与东面,华发洞泾项目售楼处电话:400-833-6309【售楼热线】营销中心热线-400-833-6309-售楼处地址-400-833-6309根据设计方案显示,有一栋保障房、7栋18层高高楼、6栋6层楼栋以及2栋4层高楼栋。18层高度约为57.2m,6层为18.55m,4层为12.55m,保障房也为18层,高度为57.2m。
区域规划
华发·洞泾项目 所在的洞泾镇作为G60科创走廊“一廊九区”中的智能机器人产业基地,将共享G60科创走廊诸多惠利政策。
目前围绕机器人产业,洞泾镇已有翡叶动力、上海君屹自动化等9家优秀企业,加上科大智能机器人产业基地的生根开花,洞泾镇的智能制造和机器人产业正由以前的点状开花,带状发展,向区块集结。
目前智能机器人产业基地的产值已经占到全镇产值的80%,产业聚集的规模效应、集群效应已经显现。不久的将来,随着科技的进步、政策利好落地,洞泾必将聚集大量高尖端人才,催生大量中高端居住需求。

生活配套
交通方面:项目距离9/12号线洞泾站仅700米,真正的双轨环绕。
地铁9号线串联起松江九亭、泗泾、佘山,一路延伸至松江新城,夹在中间的洞泾一直没有存在感。然而,地铁12号线西延伸终于尘埃落定了,也让洞泾瞬间“逆天改命”。
12号线-换乘之王
这是时隔多年来,松江继9号线之后迎来的第二条轨交地铁线。从去年6月批复,到8月规划公示,再到12月开始动工,12号线西延伸工程仅用了半年时间就走完了“前期流程”,执行能力超强,预计2027年年底通车

12号线西延伸工程途经莘闵地区、新桥镇,一路往西延伸至洞泾,实现与9号线的换乘。洞泾站,一跃成为松江首个“双轨交”换乘站点。
教育方面:幼儿园:金贝幼儿园、洞泾镇中心幼儿园;小学:松江洞泾学校9年一贯制,松江泗砖小学,华二9年一贯制(需摇号);中学:松江洞泾学校、松江同诚中学(仅做学校地理位置描述,开发商就学校问题均不做学区承诺)

商业方面:较近的有明中广场,亚繁亚乐城、同乐生活广场。想要更高能级消费,离松江万达、五龙商业广场、莘庄龙之梦、七宝万科广场等也不远。

上海华发洞泾项目
售楼处电话:400-833-6309【售楼热线】营销中心热线-400-833-6309-售楼处地址-400-833-6309
如有问题欢迎来电咨询,来电即可享受买房优惠!预约来电尊享购房优惠,可预约案场内部销售人员,专业一对一热情服务,让您用专业眼光去买房!
华发洞泾项目售楼处电话:400-833-6309【售楼热线】营销中心热线-400-833-6309-售楼处地址-400-833-6309
声明:本文由入驻焦点开放平台的作者撰写,除焦点官方账号外,观点仅代表作者本人,不代表焦点立场。
