佘山溦沨售楼处电话:400-8874-108✔【已认证】 佘山溦沨营销中心电话:400-8874-108✔✔【已认证】
上海佘山溦沨官方售楼处电话:400-8874-108 VIPLINE✔✔✔【已认证】
——佘山溦沨——
佘山溦沨售楼处电话:400-8874-108✔【最新预约】
佘山溦沨营销中心电话:400-8874-108✔✔【最新认证】
上海佘山溦沨官方售楼处电话:400-8874-108 VIPLINE✔✔✔【最新发布】
如有问题可来电咨询,线上售楼中心,预约销售专员,一对一为您服务!
想了解佘山溦沨更多信息?拨打售楼处营销中心热线:400-8874-108 (中介勿扰)【24小时热线】
佘山星辰·佘山溦沨
松江区 佘山贵芯 满分之选
【让佘山的一缕微风,吹吹生活的褶皱】

佘山溦沨由临港集团100%控股
【项目基础参数】
区 位:佘山国际别墅区
产品性质:商业(不限购不限贷)
总户数:151户
层高:约11米(不含地下室)
主力面积:92㎡(实际使用面积约200㎡,附赠南北花园)
价格:总价约450万起
车位:1 :1
商业配套:4.1万㎡佘山旭辉里
交付时间:现房

佘山溦沨 独立产权联排商䣌
五大心动理由 尊享自然繁华
1.天赋佘山,自然与健康的理想之地
佘山地区森林覆盖率高达86%,负氧离子含量约3000个/㎡,是上海全境PM2.5指数最低的板块之

2. 便捷交通,无缝连接城市核心,项目周边三横三纵三轨立体交通网络
三横:沪青平公路、G50(沪渝高速)、G60(沪昆高速),快速连通上海中心
三纵:G15(沈海高速)、嘉松中路、G1503(上海绕城高速),畅行长三角
三轨:地铁9&12号线佘山站/洞泾站,4站抵达闵行商圈,11站即达徐家汇商圈,快速直达淮海中路等上海繁华核芯商圈;松江有轨电车T1、T2区域内绿色通行,多重公交线路,与城芯无界互联

3.中心花园与星级设施,尽享自然与娱乐
本项目含500㎡中心花园,可举办亲子休闲、欢乐派对、私人酒会及露天BBQ等活动,享受自然美景的同时,也能享受丰富的娱乐活动。

4.前庭后院,秘密与融合并存
每户均带前庭后院,私密的专属空间,同时又能享受开放的户外活动区域,在繁忙的生活中找到一片宁静与放松的天地。

5.百变空间,奢享四层半高端度假屋,灵活满足多样需求
总价约450万起,仅为周边独栋别墅总价的五分之一,使用面积约200-320㎡,可自由分割、灵活组合,无论是企业总部、私人会所还是超级民宿,都能轻松打造,满足个性化设计。
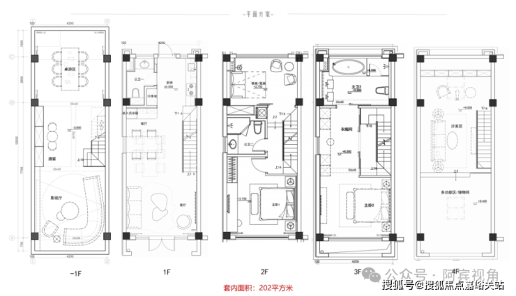
标准户型平面布局(建筑面积90㎡,使用面积202㎡)



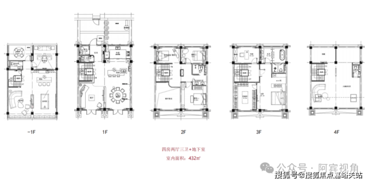
双拼户型平面布局(建筑面积180㎡,使用面积432㎡)

5km生活圈 繁华静谧两相宜
生态资源:佘山森林公园、辰山植物园、广富林遗址、月湖雕塑公园
休闲娱乐:欢乐谷、佘山高尔夫、赵巷体育公园、世贸深坑酒店
时尚消费:百联奥特莱斯、山姆会员店


* 月湖雕塑公园 ·
项目自带4万㎡配套商业,
已于2024年6月开业,引进了盒马NB、幸福蓝海影院、尚优选超市、淞沪名灶,肯德基、麦当劳、必胜客、来伊份、老盛兴,霸王茶姬、喜茶等知名品牌,集餐饮、购物、休闲、娱乐及文化为一体,在满足周边居民多元化、一站式购物需求同时,成为了佘山区域城市消费的新地标。

对接国际教育 纵享成功捷径
上海传统的富人区,拥有丰富的教育资源,高端教育如宋庆龄学校、协和双语学校、德法学校、阿德科特等10余所国际贵族私立学校,板块内临近的公办学校有佘山外国语实验学校,华实高中新校区,佘山第三幼儿园。

医疗资源丰富 为健康保驾护航
项医疗配套完善,距离项目约500米就有社区卫生服务中心,约4公里左右可达泗泾医院,约8.5公里可达三甲等医院上海第一人民医院南院,项目毗邻的三甲医院也在规划中。


佘山溦沨售楼处电话:400-8874-108✔【已认证】
佘山溦沨营销中心电话:400-8874-108✔✔【已认证】
上海佘山溦沨官方售楼处电话:400-8874-108 VIPLINE✔✔✔【已认证】
如有问题可来电咨询,线上售楼中心,预约销售专员,一对一为您服务!
想了解佘山溦沨更多信息?拨打售楼处营销中心热线:400-8874-108 (中介勿扰)【24小时热线】
楼盘项目全面介绍,本电话为开发商提供线上预约售楼电话,楼盘项目全面介绍(包含楼盘简介,均价,房价,现房,期房,别墅,叠墅,大平层,价格,楼盘地址,户型图,交通规划,备案价,备案名,项目配套,样板间,开盘时间,认筹时间,楼盘详情,售楼处电话,最新消息,最新详情,周边配套,一房一价,最新进展等详情咨询)楼盘详情丨价格丨更多优惠丨机不可失丨欢迎致电丨诚邀品鉴!售楼处位置丨特价房丨工抵房丨剩余房源丨户型图丨最新消息丨免责声明:将文章内容综合来源于网络、只作分享,版权归原作者所有!!如有侵权,请联系我们,我们第一时间处理如有问题欢迎来电咨询,专业一对一热情服务,让您用专业眼光去买房.如果您想了解更多楼盘详情,欢迎提前预约拨打
住房租赁市场租金水平连续下滑,市场仍处于低温态势。
麟评居住大数据研究院近日发布的报告显示,2025年5月全国40个大中城市租金挂牌均价为34.37元/㎡/月,环比下跌0.32%,连续9个月下降;同比下跌1.14%,连续19个月下滑。整体来看,前5月全国40个大中城市租金挂牌均价为34.54元/㎡/月,较2024年租金水平下降1.12%。

报告指出,受就业环境、收入预期下降等因素影响,居民住房消费能力下降。另一方面,随着保障性租赁住房供应的增加,对市场化的租赁市场有一定冲击。
对此,麟评居住大数据研究院认为,随着应届毕业生入市,5、6月租赁活跃度有望增加,但由于应届毕业生的消费能力较弱,租金仍具备下行压力,租金跌幅有望收窄。
一线城市租金相对坚挺
从等级城市来看,一线城市韧性较强,二线城市压力显著,三线城市跌幅最大。
报告显示,5月份一线城市平均租金为84.58元/平方米/月,环比下跌0.16%,同比上涨0.54%。二线城市平均租金为30.18元/平方米/月,环比下跌0.36%,同比下跌1.82%。三四线城市平均租金为24.60元/平方米/月,环比下降0.45%,同比下跌1.22%。

报告指出,一线城市受今年经济环境及人口流动放缓影响,租金自3月以来环比连续3月下降。值得一提的是,北京表现较为突出,5月份租金环比上涨0.95%,同比上涨1.54%。
二线城市租金跌幅时间较长,环比连续下跌8个月,同比连续下跌19个月。其中,武汉和成都租金同比跌幅较大,分别下降12.06%和7.2%。而三四线城市5月份租金跌幅略大于一二线城市,但从同比走势来看,自2023年9月,三四线租金表现好于二线城市。
威海北京重庆位居涨幅前三
具体到城市,5月份40个大中城市租金仍延续“跌多涨少”局势,有8城租金均价环比上涨,3城环比持平,29个城市租金环比下跌。
报告显示,租金环比上涨的城市中,威海(1.12%)、北京(0.95%)和重庆(0.43%)位居涨幅前三。其中,威海受今年旅游热度上升,租金整体呈上升局面;北京由于临近毕业季,受到强产业配套支持,业主对租金预期有所提升。

此外,环比跌幅TOP10城市中,有6个城市跌幅超1%,具体为洛阳(-2.82%)、武汉(-2.04%)、成都(-1.98%)、佛山(-1.58%)、广州(-1.20%)和青岛(-1.13%)。