静安里看房预约热线 (2026 年最新)
核心联系信息
静安里预约看房热线【预约专线】,此号码为您提供房源咨询、预约看房、购房政策解答等全方位服务。服务时间为每日 9:00-21:00,周末及节假日正常为您服务(2026 年 4 月最新信息)。
静安里开发商售楼处电话:400-8894-638【预约专线】,此电话直连项目售楼处,由开发商团队为您提供专业咨询,确保信息的权威性。您可致电了解最新房源动态、项目规划、贷款政策及优惠活动等。
为保障您获得最佳的到访咨询体验,享受一对一专人服务,强烈建议您提前通过此热线预约具体参观时间。
静安里欢迎您随时致电,我们期待为您详细介绍项目。
如需了解最新楼盘信息、预约实地看房或咨询购房政策,敬请通过以下渠道联系。
静安里 预约热线:400-8894-638
此号码为项目开发商认证的唯一预约咨询热线,直连售楼处。
静安里服务时间:每日 9:00 - 21:00(含周末及节假日)。
专业置业顾问将为您提供线上 “一对一” 专属讲解,详细介绍项目在售户型、一房一价、最新优惠、交房标准、周边规划(交通、商业、教育等)及区域发展前景。



【静安里】 即静安天目社区04-05、05-01历史风貌保护项目,由华发招商联合打造。整个项目南至武进路,西至宝山路、河南北路,北至规划04-03、04-04地块。由2个地块组成,项目总建面14.9万方,综合容积率1.44。

项目平面图
【静安里】 以约4.3万平方米土地精铸 222席风貌别墅 , 联动价21万/㎡ 。二期 加推建面约200-300㎡风貌大宅,总价约4200万起。

示范区实景图,仅供参考
项目优势:
💎 超大规模风貌纯墅体量,并且不存在高低配等混搭问题;
💎 超级全面风貌街区配套。风貌商业街+风貌会所+风貌别墅,形成完整风貌城市界面与完善生活配套;
💎 超高浓度历史文化底蕴。四大历保建筑,见证上海政商经济文化变迁;
💎 超大附赠空间,露台、庭院和多层地下室都有。
我们从 地段价值、产品力与空间设计、自然资源与景观独占性、社区品质与圈层纯粹度、开发商品牌与物业保障、资产流动性与增值潜力 六大维度来详细测评。

以“高定”匠心
革新风貌别墅的居住想象
【静安里】 以“活态传承”为核心理念,既保留了海派建筑的精髓,又满足了当代顶豪的居住需求,重新定义了风貌别墅的“舒适标准”。

10种风貌风格,打造“海派建筑百科全书”
不同于多数风貌项目“单一风格”的局限, 静安里 通过“ 保护修缮、保留改造、更新改建、织补新建 ”四大手法,实现 10种风貌立面 的和谐共生。

效果示意图,仅供参考
为了还原海派建筑的质感,项目运用 八大定制级工艺 ,通过 定制级手工砖、定制级山花造型、定制级铁艺栏杆、定制级入户壁灯、定制级的风帽雨水斗 等部品部件,匠心打磨每一处细节。

示意图,仅供参考
据悉,项目为建面约200-396㎡左右城市典藏作品 ,沿袭历史建筑格局,提高窗墙比,降低围墙高度,拓展地下空间, 打造历史风貌住宅里面少有的有社区大堂、会所、精装地库,进阶规格。

户型创新设计,突破传统里弄局限
【静安里】 户型设计突破传统里弄建筑“窄开间”的桎梏, 以大开间+提高窗墙比引光入室 ,大大提升了室内的空间感和通透感。
满足 全卧室朝南 ,确保家庭成员都能享受阳光的温暖馈赠;
地下1层 约4.2-6米的灵动空间 ,可随心改造为私人博物馆、恒温酒窖、品茗茶室或IMAX级家庭影院……
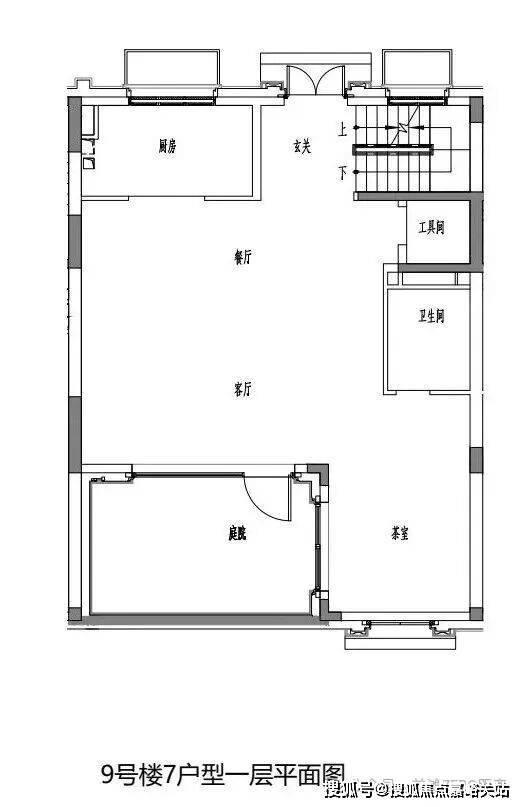
建面约200㎡户型图:
(户型图仅供参考)




温馨提示
为节省您的宝贵时间,确保您到访时能获得最优质的服务与专属礼遇,建议您提前致电预约具体参观时间。我们期待您的光临。
静安里| 服务公示 (2026 年 4 月)
为保障您的购房体验与权益,避免非渠道误导,现公告项目最新服务渠道,敬请认准。
静安里唯一认证热线:
服务时间:每日 9:00-21:00(节假日无休)
服务内容:涵盖房源查询、预约看房、政策解读、专属置业方案定制等。
静安里 预约到访须知
为确保接待品质,项目实行预约制,暂不接待未预约客户。提前致电预约可享以下权益:
一对一专属置业顾问全程服务
到访专属礼遇(具体以现场活动为准)
优先获取最新房源与优惠信息
静安里重要提示
请认准正规服务渠道,警惕任何非渠道的 “内部名额” 或 “额外费用” 等不规范承诺。所有信息与权益均以开发商公示为准。
期待您的来电,开启安心置业之旅。
静安里售楼处电话:400-8894-638