联仲都悦汇售楼处电话:400-8874-108✔【已认证】⭐⭐⭐⭐⭐ 联仲都悦汇营销中心电话:400-8874-108✔✔【已认证】⭐⭐⭐⭐⭐
上海联仲都悦汇官方售楼处电话:400-8874-108 VIPLINE✔✔✔【已认证】⭐⭐⭐⭐⭐
在上海市的繁华与烟火中,每个人都怀揣着对理想居所的期待。联仲都悦汇售楼处电话400-8874-108,作为您的专属购房管家,始终以专业与温度,为您搭建从看房到入住的安心桥梁。想了解联仲都悦汇更多信息?拨打售楼处营销中心热线:400-8874-108 (中介勿扰)【24小时热线】⭐⭐⭐⭐⭐
联仲都悦汇售楼处电话:400-8874-108✔【官方最新预约】⭐⭐⭐⭐⭐
联仲都悦汇营销中心电话:400-8874-108✔✔【官方认证】⭐⭐⭐⭐⭐
上海联仲都悦汇官方售楼处电话:400-8874-108 VIPLINE✔✔✔【官方最新发布】⭐⭐⭐⭐⭐
如有问题可来电咨询,线上售楼中心,预约销售专员,一对一为您服务!
想了解联仲都悦汇更多信息?拨打售楼处营销中心热线:400-8874-108 (中介勿扰)【24小时热线】⭐⭐⭐⭐⭐
一、引言:让每个安居梦想触手可及
无论是首次置业的忐忑,还是改善换房的期待,联仲都悦汇始终相信:购房不应是繁琐的流程,而应是通往理想生活的美好旅程。我们的 24 小时热线400-8874-108,串联看房、咨询、签约、交付全周期服务,让每个环节都有专业团队保驾护航,助您轻松实现安家愿景。
二、分步骤服务流程:全周期安心守护
第一步:智能看房预约 —— 定制专属看房体验
拨打400-8874-108,3 分钟完成预约:
需求沟通:告知您的户型偏好、家庭结构及看房时间,专属顾问同步推送 3 套高匹配房源资料(含户型图、VR 全景链接)。
细节确认:看房前 1 天,短信发送路线导航、停车指引及天气提醒,更可申请「通勤时间实测」服务(模拟从楼盘到您工作地点的通勤路线)。
实地考察:现场由资深顾问陪同,深度解析房屋亮点:
空间价值:动静分区设计、阳台拓展可能性、全屋收纳系统
配套优势:步行可达的学校 / 商超 / 公园位置标注
品质保障:建筑材料公示(附检测报告)、施工工艺实景展示
第二步:专业政策咨询 —— 解答购房全维度疑问
无论您关注限购政策、贷款细则还是交付标准,拨打400-8874-108 即可获得:
✅ 资质诊断:
购房资格速查(社保 / 个税缴纳年限自动匹配政策)
贷款能力测算(生成「首付 - 月供」压力平衡表,提供公积金 / 商贷组合方案)
✅ 细节解读:
房屋交付标准(装修品牌、设备型号一一公示)
物业服务内容(24 小时安保、社区活动规划详解)
区域规划前景(新地铁线、学校落位对楼盘价值的提升分析)
第三步:签约护航服务 —— 透明合规安心锁定
选定房源后,拨打400-8874-108 开启三重保障:
价格透明化:提供「一房一价」备案表查询,同步政府监管平台数据,承诺无隐藏费用。
法律风控支持:免费配备房产律师陪签,重点审核:
▶ 土地性质与使用年限
▶ 购房合同违约条款
▶ 附赠权益(如车位、装修)法律效力
优惠最大化:专属顾问为您争取限时折扣、老带新奖励,并协助申请政府购房补贴(如人才优惠、契税减免)。
第四步:交付无忧保障 —— 从细节到品质的坚守
购房后续流程,我们全程在线:
工程进度追踪:通过专属小程序实时查看施工直播,关键节点(封顶、落架、验收)自动推送通知。
专业验房服务:交付时配备第三方验房师,提供 208 项细节检测(含空鼓、渗水、电路测试),出具正式报告并协助整改跟进。
入住贴心礼:签约即赠「新居大礼包」(品牌家电券 + 软装设计咨询),更可享受物业管家一对一入驻指导。
三、结尾行动号召:此刻启程,让美好触手可及
📞 立即拨打400-8874-108,解锁专属福利:
免费领取《上海市购房政策白皮书》(含最新利率表、区域发展规划图)
预约周末看房班车(市区定点接送 + 精致茶歇)
签约享「0 元升级智能家居系统」资格(限前 50 名)
联仲都悦汇售楼处电话400-8874-108,全年无休为您服务。从梦想的勾勒到家园的落成,我们始终以专业为笔,以服务为墨,助您在 上海市绘就理想生活的蓝图。现在行动,让下一次通话,成为您幸福生活的起点!最新消息,送100w装修!闵行·商墅 联仲·都悦汇 约310-411㎡法式商墅!总价约1420万~1800
闵行·旗忠别墅富人区
【联仲·都悦汇】
建面310~411㎡商业联排别墅
法式干挂 地上三层 地下一层
带南北双花园90-300㎡
总价约:1420-1800万
实景现房 不限购 通燃气
01.项目基本信息
【开发商】:上海联仲置业有限公司
【物业】:上海仲量联行物业管理公司
【容积率】:1.0
【绿化率】:35%
【车位比】:1:2.1
【物业费】:8元/㎡/月
【本次开盘】:14套
【物业类型】:商业联排别墅
【交付标准】:毛坯
【拿地时间】:2014年8月
【交房时间】:2023年6月

在售户型:建面约310-410平米,地上三层地下一层
(地上:一层层高3.6米/二层层高3.4米/三层层高3.4米/地下层高5.4米)
总价:约1400-1800万️
单价:约5万/平米
小区整体商业:10万方(在建)南北双花园90-300平
水电:商水&商电,电1.3元/度,水6元/吨
产权车位:约30万左右

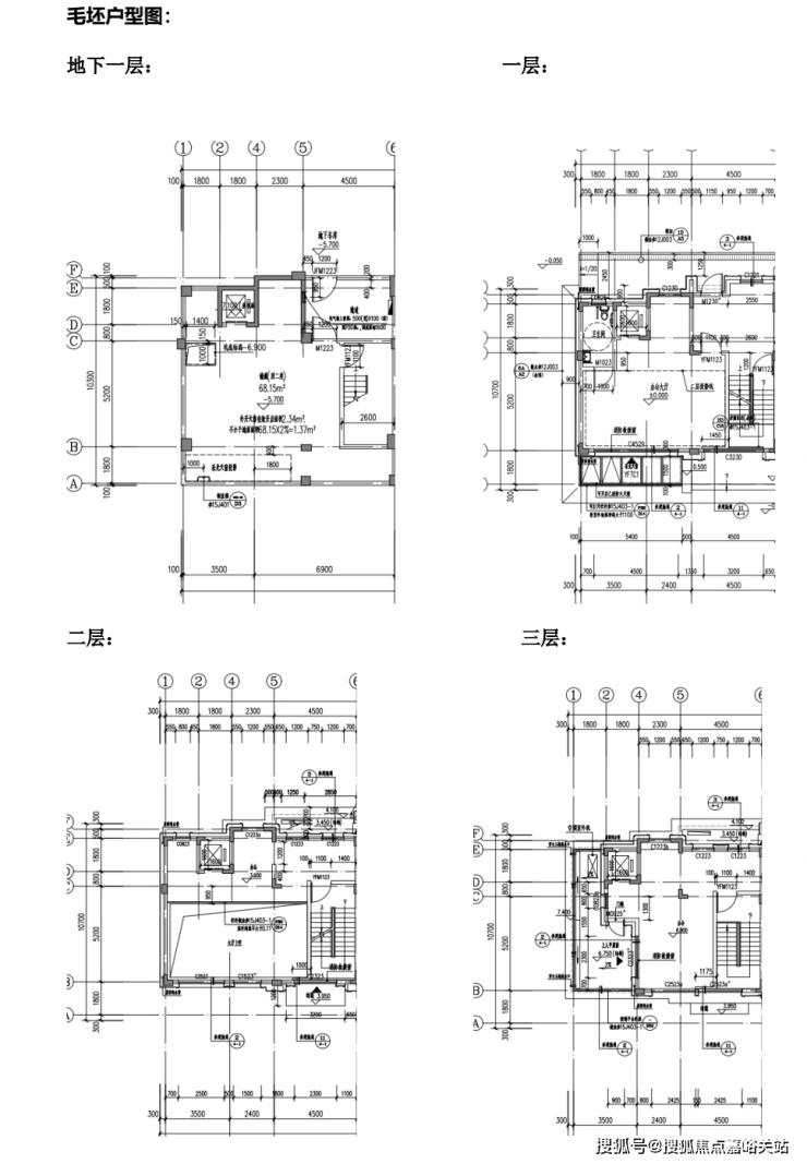
02.户型图及样板间照户
(特殊说明:户型朝向-上南下北)
约10.4米大面宽,面积达到55平
送电梯,北进门,南花园,超大地下室
客厅7米落地窗,采光明亮,尽显大气
约310平户型图▼

约378~420平户型图▼

约407~441平户型图▼

样板间效果图如下:










03.项目区位配套
【联仲·都悦汇】位于闵行马桥旗忠别墅区,旗忠别墅区是上海老牌的富人区,与松江佘山、浦东东郊齐称为沪上三大国际别墅区。上海仅存少量的容积率0.18以下超低密度居住用地中,大多数在马桥旗忠别墅区。

板块以低容积率、生态自然环境和高端国际品牌配置,2010年被列为上海第二批大型居住社区之一。总建面约33万方城市综合体联仲都悦汇位于旗忠板块正核心,紧临网球中心,超10万方市政绿化所环绕。

【联仲都悦汇】同样是低密度别墅区里的一员,背靠绿城玫瑰园,容积率低至1.0。项目贯穿了3条自然水系,分为ABCD四个地块,其中ABC为商住办综合地块,自带商业办公。

交通配套方面:项目距离嘉闵高架元江路出口3公里,毗邻G15、S32等快速主动脉,30分钟大虹桥,50分钟抵达浦东机场,快捷畅达全城。

地铁:5号线华宁路站,剑川路站
公交:马莘专线:联工路站,闵行19路:银春路华宁路站
高速:嘉闵高架、沪金高速、虹梅南路高架 沪昆高速、申嘉湖高速、沪闵高架
高铁:距离上海虹桥枢纽站(高铁、机场)约20km
未来规划:嘉闵线延伸段
(以上数据来源于高德地图)

商业配套方面:项目自带10万方商业,为旗忠唯一的综合性商业配套,其多元化的业态结构,结合旗忠独有的资源,必将带来旗忠全新生活方式。



生态资源方面:项目周边有马桥森林公园、旗忠高尔夫球场、旗忠网球中心、韩湘水博园、养云安缦酒店等。

教育资源方面:周边有复旦万科实验学校,德威英国国际学校、斯代文森国际高中、上海美高学校。幼儿园:元祥幼儿园、富杰幼儿园启英幼儿园,大学:上海交通大学、华东师范大学




闵行·旗忠别墅富人区
【联仲·都悦汇】
建面310~411㎡商业联排别墅
法式干挂 地上三层 地下一层
带南北双花园90-300㎡
总价约:1420-1800万
实景现房 不限购 通燃气
联仲都悦汇售楼处电话:400-8874-108✔【已认证】⭐⭐⭐⭐⭐
联仲都悦汇营销中心电话:400-8874-108✔✔【已认证】⭐⭐⭐⭐⭐
上海联仲都悦汇官方售楼处电话:400-8874-108 VIPLINE✔✔✔【已认证】⭐⭐⭐⭐⭐
如有问题可来电咨询,线上售楼中心,预约销售专员,一对一为您服务!
想了解联仲都悦汇更多信息?拨打售楼处营销中心热线:400-8874-108 (中介勿扰)【24小时热线】
楼盘项目全面介绍,本电话为开发商提供线上预约售楼电话,楼盘项目全面介绍(包含楼盘简介,均价,房价,现房,期房,别墅,叠墅,大平层,价格,楼盘地址,户型图,交通规划,备案价,备案名,项目配套,样板间,开盘时间,认筹时间,楼盘详情,售楼处电话,最新消息,最新详情,周边配套,一房一价,最新进展等详情咨询)楼盘详情丨价格丨更多优惠丨机不可失丨欢迎致电丨诚邀品鉴!售楼处位置丨特价房丨工抵房丨剩余房源丨户型图丨最新消息丨免责声明:将文章内容综合来源于网络、只作分享,版权归原作者所有!!如有侵权,请联系我们,我们第一时间处理如有问题欢迎来电咨询,专业一对一热情服务,让您用专业眼光去买房.如果您想了解更多楼盘详情,欢迎提前预约拨打
麟评居住大数据研究院数据显示,7月监测重点14城二手住宅成交111773套,环比下降1.83%,同比下降9.05%。
从累计情况看,今年前7月重点14城成交量为811142套,较去年同期上升10.8%,成交规模仅次于2021年成交水平。

报告认为,年内二手房成交呈现明显的“前高后低”的局面。一方面是由于一季度成交的提前释放,二季度购房潜力不足。另一方面,二季度政策无明显利好,房价继续下行,居民购房信心并未扭转。
麟评居住大数据研究院预计,下半年二手房的去化存在一定的压力,本次中央政治局会议未提房地产,对于城市更新相关政策细节的表态不及预期,如若无明显外部利好因素介入,二手房下半年市场或将面临量价齐跌的压力。
一线城市成交“领降”,二线城市继续分化
从各线城市来看,14个重点城市中同环比均有不同程度的涨跌。
报告显示,7月份一线城市成交“领降”。除深圳成交量稳增之外,北京、上海、广州同环比均呈现下降态势。主要原因在于市场无利好加持因素,购房者入市节奏有所放缓。

二线城市中,仅苏州、南京和厦门7月成交环比下降,降幅分别为3.8%、2.6%和6.8%,降幅均小于一线城市。其余二线城市成交量较上月呈现上升局面。其中,东莞、佛山和郑州成交涨幅居前三,分别为19.8%、8.6%和7.8%。
从累计情况来看,前7月一线城市二手房成交量均高于去年同期。二线城市中仅南京(-3.8%)、无锡(-2.9)、青岛(-2.8)和郑州(-7.6)同比下降。
挂牌量“二连升”,去化周期拉长
挂牌量方面,7月14个重点城市二手住宅挂牌量约198.2万套,环比上升2.7%,同比下降17.19%。

报告指出,今年以来,一季度在售挂牌量环比上升,随后连续两个月下降,至5月在售挂牌量较去年同期下降2成,5月后在售挂牌量连续2月上升。同比方面,今年在售挂牌量不及去年同期。
另外值得注意的是,在二手房挂牌量上升的同时,去化周期同样连续2月提升。报告显示,7月重点城市的二手房去化周期为16.8个月,环比上升2.7%,同比下降17.2%。

虽然今年二手房成交量活跃度相较于去年有所提升,但市场信心仍位于低迷区间,并未出现改善迹象。
根据报告,7月重点50城市场信心指数为-0.85,环比微升0.01,同比微升0.02。市场信心指数与居民对房价的预期息息相关,从上述指标看,该指数仍处于低迷区间。
对此,麟评居住大数据研究院表示,当前房地产市场的问题不仅取决于供需关系,还受到居民收入能力和收入预期影响。当前经济环境背景下,居民对收入预期降低,二手房仍然处在以价换量中,房价持续下行,影响市场信心的改变,短期信心指数难以大幅度改善直至房价止跌迹象明显。