招商林屿湖畔售楼处电话-招商林屿湖畔销售中心(售楼处)招商林屿湖畔欢迎您-地址-价格-户型-小区环境-楼盘详情-交房时间-周边配套-售楼处电话
扫描到手机,新闻随时看
扫一扫,用手机看文章
更加方便分享给朋友
☑️☑️招商林屿湖畔售楼处电话:400-1183-605☑️☑️招商·林屿湖畔|样板间盛放!嘉定新城112-145㎡湖居奢宅,游艇美学立面引领外环改善新风尚!附官方预约通道!
☑️☑️招商林屿湖畔售楼处电话:400-1183-605☑️☑️
「招商·林屿湖畔」
嘉定新城核心 一线“湖景+河景”
均价约51583元/㎡ 正在认购中
另有建面约160-165m²滨湖墅居
已经建档 即将开启认购
售楼处提前线上预约☑️☑️招商林屿湖畔售楼处电话:400-1183-605☑️☑️

最新消息:嘉定新城精筑4.0湖居迭新奢宅——招商·林屿湖畔加推建面约112-145㎡三房四房,均价约51583元/㎡!共62套,以远香湖头排景观,坐拥上海罕见的湖、河、园、城的资源!是嘉定不可或缺值得珍藏的好项目!样板间线上预约中!☑️☑️招商林屿湖畔售楼处电话:400-1183-605☑️☑️
☑️☑️招商林屿湖畔售楼处电话:400-1183-605☑️☑️
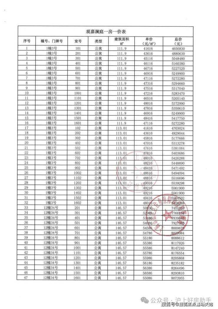
招商·林屿湖畔一房一价表:
☑️☑️招商林屿湖畔售楼处电话:400-1183-605☑️☑️
☑️☑️招商林屿湖畔售楼处电话:400-1183-605☑️☑️
☑️☑️招商林屿湖畔售楼处电话:400-1183-605☑️☑️
☑️☑️招商林屿湖畔售楼处电话:400-1183-605☑️☑️
☑️☑️招商林屿湖畔售楼处电话:400-1183-605☑️☑️
项目基础信息
据悉,招商蛇口拿下嘉定新城远香湖住宅地块(嘉定新城F03A-4地块)招商林屿湖畔成交总价26.6亿,成交楼板价31850元/㎡,溢价率30%,成交承诺装修标准3000元/㎡,预计未来售价或达6万/㎡!☑️☑️招商林屿湖畔售楼处电话:400-1183-605☑️☑️
☑️☑️招商林屿湖畔售楼处电话:400-1183-605☑️☑️
根据方案,项目拟建8栋16-17层高层住宅(含1栋17层保障房),以及5栋6层住宅,共计686户。小区人车分流;车位比约1:1.8,社区内部有水景、下沉式庭院;项目作为致敬远香湖下个十年的产品,6大嘉定首见的产品力,是真正迭代4.0湖居奢宅。☑️☑️招商林屿湖畔售楼处电话:400-1183-605☑️☑️
嘉定首见约87m石材&铝板门仪☑️☑️招商林屿湖畔售楼处电话:400-1183-605☑️☑️
招商·林屿湖畔的大门,全跨约87米,是全嘉定首个超长全弧形叠石工艺的艺术门庭!近人位置的建筑片墙都采用大块“沙漠风”石材切割,同源市区16w+项目康定壹拾玖米黄石材,最大程度以原石肌理还原自然氛围,庄重优雅又不失松弛感。
采用大块切割打磨圆润弧度的沙漠风石材、约10cm递减旋转叠石,内藏灯带,形成了微妙的三角形透视视角,这种充满艺术感的向心性视线设计,在知名建筑卢浮宫的三角门头上也有使用。☑️☑️招商林屿湖畔售楼处电话:400-1183-605☑️☑️
☑️☑️招商林屿湖畔售楼处电话:400-1183-605☑️☑️
项目拥有嘉定首个独立车马院。作为近年来作为高端豪宅的标配,无论主人或是来宾都能感受到尊享体验。尺寸以宽约22m、进深约30m的配比设计,方便轴距较大的车辆也能轻松通过。
嘉定首见 双层归家大堂☑️☑️招商林屿湖畔售楼处电话:400-1183-605☑️☑️
总高约13.7米的双层归家大堂,整体的设计风格参考游艇的甲板,上方悬吊的是以灯塔为创作源点的吊灯,恰如整个林屿湖畔峡谷意境湖区会客厅,也是远香湖畔最璀璨的美学灯塔。☑️☑️招商林屿湖畔售楼处电话:400-1183-605☑️☑️
☑️☑️招商林屿湖畔售楼处电话:400-1183-605☑️☑️
会所的整体灯光设计特邀了香港关永权灯光设计,除大堂及私宴厅的主灯外均采用隐藏式设计,让会所的光源接近高端餐厅用餐前的环境感,舒适的呈现出材质与设计细节可视效果。
在此能俯瞰整个社区最核心的、浓度最高的景观节点。地上的戏水池和架空层,地下的多层次庭院都尽收眼底。峡谷意境的立体庭院,让湖居生活充满独特的诗意。☑️☑️招商林屿湖畔售楼处电话:400-1183-605☑️☑️
☑️☑️招商林屿湖畔售楼处电话:400-1183-605☑️☑️
嘉定首见的会所&架空空间
作为嘉定首个自然嵌入式全维会所和架空双活动体系,会所总体面积约为1200㎡,每个核心的功能空间以下沉庭院为核心,依次排开,在使用时都能够感受到无限贴近自然的舒适。☑️☑️招商林屿湖畔售楼处电话:400-1183-605☑️☑️

☑️☑️招商林屿湖畔售楼处电话:400-1183-605☑️☑️
嘉定首见的国标壁球馆、沃特罗伦主题健身房
整个会所对标星级酒店,设计了私宴厅、瑜伽室、棋牌室,嘉定首见的社区内国标壁球馆、沃特罗伦主题健身房匹配当代精英的生活与精神需求。☑️☑️招商林屿湖畔售楼处电话:400-1183-605☑️☑️
☑️☑️招商林屿湖畔售楼处电话:400-1183-605☑️☑️
当下众多高端人群喜爱的壁球运动,已正式成为2028年洛杉矶奥运会的新增比赛项目。在林屿湖畔,能够先人一步体验未来新的国民运动。
☑️☑️招商林屿湖畔售楼处电话:400-1183-605☑️☑️
值得一提的嘉定首个沃特罗伦主题的健身房。从设计与生产组装全部在美国罗德岛内完成,选用美国阿帕拉契亚山硬木,每台产品均经手工打磨并涂覆丹麦油,因高度模拟真实划船感受而闻名。健身房同时配备独立瑜伽室,男女更衣间与淋浴室,专业完善的场地设施倍感舒适。☑️☑️招商林屿湖畔售楼处电话:400-1183-605☑️☑️
☑️☑️招商林屿湖畔售楼处电话:400-1183-605☑️☑️
☑️☑️招商林屿湖畔售楼处电话:400-1183-605☑️☑️
约1700㎡的架空层、最高建筑层高约7.2米架空空间。艺术卡座相连,以温润石材同时继续搭配奢石为底,通过弧形切割等手法,让座位本身不局限于空间功能,从结构上链接悬浮水景,让花园会客厅成为建筑与景观的一部分。☑️☑️招商林屿湖畔售楼处电话:400-1183-605☑️☑️
☑️☑️招商林屿湖畔售楼处电话:400-1183-605☑️☑️
整体庭院注重空间的多重体验营造。空间内设置的休闲下沉卡座、水吧台、休闲会客区,与室外水池联动,内外结合的氛围,形成完整的酒店式度假空间。
嘉定首见的峡谷式垂直庭院☑️☑️招商林屿湖畔售楼处电话:400-1183-605☑️☑️
全嘉定首个峡谷式意境的立体下沉庭院,设计也多采用弧形线条,施工工艺复杂。每一层片墙的可视面均由沙漠风石材打造,采用拉槽、曲面打磨等复杂工艺,让厚重的奢华材料也能够形成轻盈、温润的观感。☑️☑️招商林屿湖畔售楼处电话:400-1183-605☑️☑️
☑️☑️招商林屿湖畔售楼处电话:400-1183-605☑️☑️
约420㎡立体下沉庭院,嘉定首见的悬浮水池,搭配4.3米飞瀑,与市区豪宅项目同款。水流而下,身处会所中,读书、锻炼,都能聆听到动人的自然声音,宜动宜静,惬意而美好。
☑️☑️招商林屿湖畔售楼处电话:400-1183-605☑️☑️
通过地上地下丰富动线串联下沉庭院、局部风雨连廊、戏水池、行车橱窗、垂直森系景观、嵌入式会所功能,创造一座立体视觉奇观的“漂浮绿洲”。
洄游式曲折路径与风雨连廊设计,营造多重游园动线,为庭院景观赋予不同互动体验,同时甄选世界珍贵树木,实现四季沉浸式景观更迭。边上有水光、树影、植物的色彩、微风,都在小尺度空间内围绕着您,形成一种温柔的环绕。以人的体感指导设计、公区的家庭化场景、营造空间的包裹感、松弛感。
嘉定首见的阳光地库☑️☑️招商林屿湖畔售楼处电话:400-1183-605☑️☑️
林屿湖畔的阳光地库让归家的感受颇具温馨与松弛感。下坡道引天光垂照,设计风格借鉴新加坡edtion度假酒店,绿植、仿石材片墙、镂空天幕结合,归家即是度假的开始。
进入地下归家大堂,灯光设计模拟天光效果,独特的行车橱窗,让归家节点自如地转换在环境光与自然光的沐浴之中。光线的转折变化更点亮了归家的愉悦心情。☑️☑️招商林屿湖畔售楼处电话:400-1183-605☑️☑️
☑️☑️招商林屿湖畔售楼处电话:400-1183-605☑️☑️
林屿湖畔项目高层外立面采用石材、铝板等材质,金属部分应采用铝板、紫铜等防锈防腐蚀金属材料。
☑️☑️招商林屿湖畔售楼处电话:400-1183-605☑️☑️
沿袭首个深圳【招商玺】的曲面建筑美学灵感,打造超越行业普通住宅标准最高约0.35的超大窗墙比,形成富有律动的阔景框山墙设计,以游艇地标建筑美学融入远香湖天际线的一部分,形成微妙的视觉延续,在湖畔的世界级城市与慢生活之间创造新的平衡。☑️☑️招商林屿湖畔售楼处电话:400-1183-605☑️☑️
☑️☑️招商林屿湖畔售楼处电话:400-1183-605☑️☑️
项目在叠墅上以“游艇风”的建筑美学灵感,引领现代品质生活基调。
而在叠加产品的建筑外立面,这种高辨识度的流线美学,更加聚焦,体现其舒适性的纯粹视觉美感。
简练纯净的建筑语言,彰显十足经典。☑️☑️招商林屿湖畔售楼处电话:400-1183-605☑️☑️
01、“游艇风”流体美学设计,更具辨识度的建筑立面!
南立面整体观感,以L和C字形线条结合,并根据分户情况进行对应的舱体划分。每一层都拥有通透的采光面,充分考虑户内延伸性,让居者观感更加朗阔。☑️☑️招商林屿湖畔售楼处电话:400-1183-605☑️☑️
☑️☑️招商林屿湖畔售楼处电话:400-1183-605☑️☑️
北向立面以横向线条为主,穿插竖向筒体块,头部做虚化处理,更加强化了游艇风的飘逸感。
解决隐私保护与南向视野平权,将水平露台与竖向视线管理构件,通过花瓣绽放的生长意向进行整合统一,构建了独一无二的视觉辨识力。
02、石材+双色铝板+大面玻璃,甄选材质的高颜值外立面!☑️☑️招商林屿湖畔售楼处电话:400-1183-605☑️☑️
超大尺度面宽设计,配合大面玻璃,朗阔气派。楼体目光所及之处,以香槟色和白色的铝板组合,门头甄选石材,电梯筒厅以大面积玻璃组成。经得起时间与市场考验的高奢材质组合,整体营造通透质感,充满奢雅的建筑美学。
它将金属、玻璃等材质、与线条、光影三者极致运用,呈现出高级的质感。南部新城正需要这样的高颜值产品!外立面造型突破了传统居住建筑规整的立面框架。☑️☑️招商林屿湖畔售楼处电话:400-1183-605☑️☑️
☑️☑️招商林屿湖畔售楼处电话:400-1183-605☑️☑️
03、南向视野平权,层层奢阔视野,光感空间与私密尊崇同时拥享!
【林屿湖畔】叠墅,难得的是每一层都具备通透采光和私密性
兼得的特点。这与建筑体设计的兼顾密不可分。
摒弃层层退台的设计,无论是上叠、中叠、下叠,居住的景观视野各有千秋,互不干扰,每一层皆独立境界!
连地下室的空间,充分利用采光井设计,大面积的窗景引入,对于光“物尽其用”,地下空间也成为真正舒适的光感空间。
项目推售详情☑️☑️招商林屿湖畔售楼处电话:400-1183-605☑️☑️
据悉:招商·林屿湖畔项目将推出建面约112㎡、122㎡、145㎡高层3-4房以及建面约160-165㎡叠墅,共计624套,其中112户型为一梯两户,122户型两梯两户。此次加推1号楼、12号楼,包含建面约122㎡-145㎡3-4房,共计约62套;正在热销中!☑️☑️招商林屿湖畔售楼处电话:400-1183-605☑️☑️
☑️☑️招商林屿湖畔售楼处电话:400-1183-605☑️☑️
☑️☑️招商林屿湖畔售楼处电话:400-1183-605☑️☑️
☑️☑️招商林屿湖畔售楼处电话:400-1183-605☑️☑️
☑️☑️招商林屿湖畔售楼处电话:400-1183-605☑️☑️
☑️☑️招商林屿湖畔售楼处电话:400-1183-605☑️☑️
☑️☑️招商林屿湖畔售楼处电话:400-1183-605☑️☑️
☑️☑️招商林屿湖畔售楼处电话:400-1183-605☑️☑️
☑️☑️招商林屿湖畔售楼处电话:400-1183-605☑️☑️
其中建面约112㎡三室两厅两卫户型为新品首发。具有十足的优质资源和全维产品力的户型,是嘉定初代改善家庭不可多得的上车时机!
☑️☑️招商林屿湖畔售楼处电话:400-1183-605☑️☑️
针对高品质需求的家庭,建面约112㎡户型再适合不过。
约3.1m突破性的层高、全屋预计使用率(非得房率,最终得房率以实测报告为准)约在83%~85%、空间平权的设计,照顾到每位家庭成员的居住体验与多元需求。
动静分区,访客、起居、家务动线设计流畅,充分考虑空间的均好性。三开间朝南的飞机户型,采光面阔绰,南北通透,视野及空间感更加开阔。
边套主卧配备270°观景飘窗,超广角无敌视野,更大化将景观揽入室内,主人尊贵私密生活一步满足。行政主卧,预留2个独立收纳空间,于此尊享浪漫与舒适并蓄的人生新阶段。☑️☑️招商林屿湖畔售楼处电话:400-1183-605☑️☑️
LDKG一体化的开放格局,让孩子在阔绰的环境中自由成长,也让大人能够轻松照看。约80cm全屋飘窗,既可拓宽视野空间,又为成长中的家庭需要预留弹性可能。
独立L型玄关柜,预留超长餐边柜空间,U型厨房,借飘窗操作台面更宽,从此收纳与家庭聚会柔韧有余。
远香湖CAZ核心区位+顶级生活资源带+改善三房小户型,相信建面约112㎡户型,登场即高燃!嘉定初代改善置业家庭,别错过上车优质时机!☑️☑️招商林屿湖畔售楼处电话:400-1183-605☑️☑️
☑️☑️招商林屿湖畔售楼处电话:400-1183-605☑️☑️
☑️☑️招商林屿湖畔售楼处电话:400-1183-605☑️☑️
☑️☑️招商林屿湖畔售楼处电话:400-1183-605☑️☑️
☑️☑️招商林屿湖畔售楼处电话:400-1183-605☑️☑️
☑️☑️招商林屿湖畔售楼处电话:400-1183-605☑️☑️
☑️☑️招商林屿湖畔售楼处电话:400-1183-605☑️☑️
☑️☑️招商林屿湖畔售楼处电话:400-1183-605☑️☑️
☑️☑️招商林屿湖畔售楼处电话:400-1183-605☑️☑️
☑️☑️招商林屿湖畔售楼处电话:400-1183-605☑️☑️
☑️☑️招商林屿湖畔售楼处电话:400-1183-605☑️☑️
建面约122㎡的3房产品,有几大亮点:
第一,类一梯一户的设计。
这种 “隐形扩容” 设计,不仅重构家庭生活秩序,更解锁了N种生活场景的可能性。
建面约122㎡创意展示间实景,具体以实际交付为准☑️☑️招商林屿湖畔售楼处电话:400-1183-605☑️☑️
☑️☑️招商林屿湖畔售楼处电话:400-1183-605☑️☑️
第二,全屋交付收纳量达8.2m³,约等于205个20寸行李箱的收纳空间。
整个套内除了电梯厅外,还有大量的收纳空间。
例如进门的这个独立储藏空间:☑️☑️招商林屿湖畔售楼处电话:400-1183-605☑️☑️
☑️☑️招商林屿湖畔售楼处电话:400-1183-605☑️☑️
还有餐边柜空间、大量的飘窗空间、厨房的柜子等等。
☑️☑️招商林屿湖畔售楼处电话:400-1183-605☑️☑️
☑️☑️招商林屿湖畔售楼处电话:400-1183-605☑️☑️
☑️☑️招商林屿湖畔售楼处电话:400-1183-605☑️☑️
第三,约3.1米层高+边套户型4飘窗+建面约122㎡做3房,极致的尺度感。
建面约122㎡的3房本身就拥有超强的空间尺度感,再加上小高层的高得房率+多飘窗的设计,整个空间的尺度感相当惊人。
比如这个客餐厅:☑️☑️招商林屿湖畔售楼处电话:400-1183-605☑️☑️
☑️☑️招商林屿湖畔售楼处电话:400-1183-605☑️☑️
☑️☑️招商林屿湖畔售楼处电话:400-1183-605☑️☑️
建面约122㎡创意展示间实景,具体以实际交付为准
这个尺度感一般也只有在约140㎡以上的大平层中能看到。
主卧豪华套房的设计+约270°的巨型飘窗,这个尺度感和实用性真的很强。☑️☑️招商林屿湖畔售楼处电话:400-1183-605☑️☑️
☑️☑️招商林屿湖畔售楼处电话:400-1183-605☑️☑️
☑️☑️招商林屿湖畔售楼处电话:400-1183-605☑️☑️
建面约122㎡创意展示间实景,具体以实际交付为准
另外,由于双阳台的设计,北房间不仅能放下一张床,还有大量可以放下书桌、衣柜的空间,实用性超强。
☑️☑️招商林屿湖畔售楼处电话:400-1183-605☑️☑️
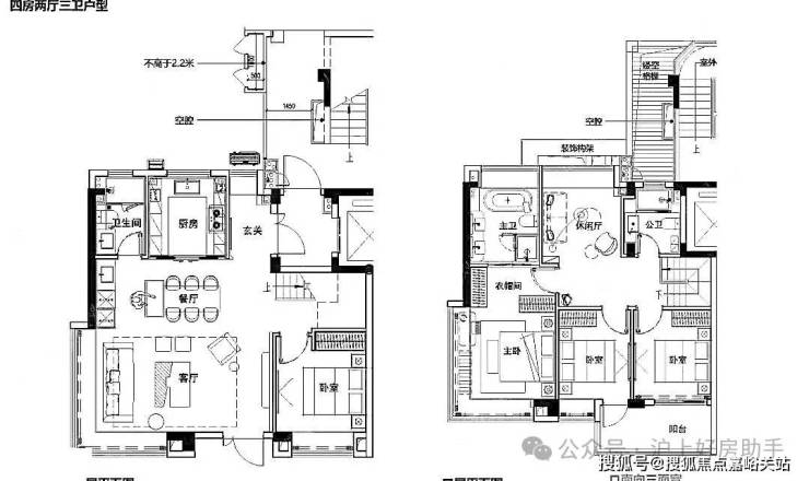
终极改善四房收官
直面远香湖的“楼王”产品
建面约145㎡全维改善户型,首开即获封藏热潮。☑️☑️招商林屿湖畔售楼处电话:400-1183-605☑️☑️
☑️☑️招商林屿湖畔售楼处电话:400-1183-605☑️☑️
☑️☑️招商林屿湖畔售楼处电话:400-1183-605☑️☑️
☑️☑️招商林屿湖畔售楼处电话:400-1183-605☑️☑️
☑️☑️招商林屿湖畔售楼处电话:400-1183-605☑️☑️
☑️☑️招商林屿湖畔售楼处电话:400-1183-605☑️☑️
☑️☑️招商林屿湖畔售楼处电话:400-1183-605☑️☑️
☑️☑️招商林屿湖畔售楼处电话:400-1183-605☑️☑️
☑️☑️招商林屿湖畔售楼处电话:400-1183-605☑️☑️
☑️☑️招商林屿湖畔售楼处电话:400-1183-605☑️☑️
首先是可代际传承的更大空间。在嘉定区域内领先的约3.15 m层高跨代创新,双门厅设计,边套最高七飘窗设计,约80公分奢阔宽幅与更多可拓展空间,最终空间的预计使用率最高可达约91%(非得房率,最终得房率以实测报告为准)上海罕见的实际使用率,足以承载每个家庭的全生命周期需求。☑️☑️招商林屿湖畔售楼处电话:400-1183-605☑️☑️
其次是可代际传承的更大窗景。大面积玻璃窗营造的无界取景框,边套可享270°环幕视野,四开间朝南的无界采光,大尺度LDK一体化巨厅设计,让采光面和观景面更大化,让单一的居住成为风景的舒享。☑️☑️招商林屿湖畔售楼处电话:400-1183-605☑️☑️
☑️☑️招商林屿湖畔售楼处电话:400-1183-605☑️☑️
最后是可代际传承的更多匠心细节。G型厨房布局,操作台长达约6.47米,中央岛台设计,让厨房化身会客厅之外的,另一家庭社交中心;主卧地面采用实木复合地板,双列人字拼花设计,传递更为经典的美学品位。☑️☑️招商林屿湖畔售楼处电话:400-1183-605☑️☑️
☑️☑️招商林屿湖畔售楼处电话:400-1183-605☑️☑️
精算级收纳系统,让空间“越住越大”。建面约145㎡户型完美阐释了该理念,容纳更多物品的同时,为居住者带来更多松弛。在精确严密的计算下,整体收纳空间可达8m³,相当于可以放置约205个20寸行李箱,一个五口之家,人均收纳量可达到约40个行李箱。玄关、厨房、卫浴三大收纳系统,均打造了精确到毫米级的储物空间。
玄关收纳,把更多物品留在生活主场外:内外双门厅设计,总计可容纳约210双鞋履。☑️☑️招商林屿湖畔售楼处电话:400-1183-605☑️☑️
厨房收纳,毫米级利用每一寸空间:烟机管道侧方、燃气柜下、蒸烤箱抽屉、调味拉篮、洞洞板包封、上翻板隐藏位、水槽柜、门板、转角联动空间等皆被高效开发。
卫浴收纳,一隅天地的空间魔法:集成沥水层板、化妆镜、卫浴柜下翻板;预留扫地机位、门板置物架、不锈钢挂镜;台盆下开放格、卫生间高柜;配备0.9m x 0.9m x 0.45m加载收纳柜。☑️☑️招商林屿湖畔售楼处电话:400-1183-605☑️☑️
☑️☑️招商林屿湖畔售楼处电话:400-1183-605☑️☑️
☑️☑️招商林屿湖畔售楼处电话:400-1183-605☑️☑️
二批次加推的12号楼145㎡户型产品,堪称整个社区“楼王”。仅30套最后封藏!俯瞰远香湖公园,直面一线湖景,全维终改四房产品,真正错过再无!
☑️☑️招商林屿湖畔售楼处电话:400-1183-605☑️☑️
【林屿湖畔】的叠拼户型,让本就朗阔的空间更加奢适,叠加产品同样可以感受到大平层的生活体验。
多面宽+多套房+多飘窗+多拓展!罕见的湖前墅居,一层一世界。
建面约160㎡上叠预计使用率最高约145%、约8.5m横厅双阳台、南北通透主卧套房(非得房率,最终房屋得房率以实测报告为准)☑️☑️招商林屿湖畔售楼处电话:400-1183-605☑️☑️
☑️☑️招商林屿湖畔售楼处电话:400-1183-605☑️☑️
【归家仪式感】独立玄关与观景外廊,双重归家,留住静谧收藏四季
【首层尺度感】宽享聚场,是家人的情绪中枢,也是宴客的精神主场
【套房式主卧】主卧套房,双露台空间,俯仰星河璀璨,眼界即世界
【高拓展空间】别有洞天的私属惬意,重构主人对生活的品位追求
建面约165㎡中叠预计使用率最高约95%、罕见5面宽、尊享通透双套房、阳光半坡顶楼(非得房率,最终房屋得房率以实测报告为准)☑️☑️招商林屿湖畔售楼处电话:400-1183-605☑️☑️
☑️☑️招商林屿湖畔售楼处电话:400-1183-605☑️☑️
【尺度尊荣】拥揽南向5面宽天地视野,通透景致尽显大方之家
【大雅横厅】上演宽绰的艺术美学,将生活与欢聚留给湖畔波澜
【方正厨房】流线型操作动线让烹饪行云流水,随时一场美食派对
【奢配套卧】双套卧,主套房270°视野,诉说四季的奇妙故事
建面约165㎡下叠预计使用率最高约148%、三向采光地下、LDBKG双入户流线、南北通透主卧套房☑️☑️招商林屿湖畔售楼处电话:400-1183-605☑️☑️
☑️☑️招商林屿湖畔售楼处电话:400-1183-605☑️☑️
【多功能空间】以四季为幕布,以空间为剧场,俯拾间皆是生活的美好
【归家诗意感】花园步入归家仪式感,日常生活像一座流动的四季剧场
【奢阔家庭厅】无界宽境,LDBK一体化,在流云见证下舒展生命韵律
【尊崇感卧室】二层双卧室朝南+家庭式套房,浪漫源于生活的点滴日常
【招商林屿湖畔】叠墅,不仅是湖居的代表,更是一场关于“下一代墅居”的启示。
难以复制的地脉,极致的产品力、无可替代的湖前叠墅,重新定义了湖居的价值逻辑。
它不仅是身份的象征,更是生活方式的引领。☑️☑️招商林屿湖畔售楼处电话:400-1183-605☑️☑️
☑️☑️招商林屿湖畔售楼处电话:400-1183-605☑️☑️
项目区位配套
象屿远香湖岸位于嘉定新城远香湖CAZ规划红线内,这是五个新城目前仅有的官宣的中央活动区,定位为嘉定新城中的综合功能中心与城市形象集中展示区,集聚国际住区、大型商业集群、摩天地标集群、科创科研企业集群、国际教育文化等功能为一体。(规划内容来自上海嘉定官方)
如果说陆家嘴-外滩是整个上海的核心资源所在,那整个嘉定新城的核心资源就在远香湖中央活动区。
所以,远香湖中央活动区,就是整个嘉定新城的门面和“城市会客厅”。这是一个“被倾注了嘉定新城所有高端资源”的片区!☑️☑️招商林屿湖畔售楼处电话:400-1183-605☑️☑️
远香湖CAZ,总开发体量约531.4万㎡,规划公共服务建面约27.7万㎡,教育科研设计建面约71.6万㎡,商办体量约284.1万㎡。
产业方面:作为嘉定新城塔尖地段的远香湖CAZ打造的是总部经济集群,涵盖汽车城、智能传感、瑞金创新中心精准医疗特色产业等☑️☑️招商林屿湖畔售楼处电话:400-1183-605☑️☑️
☑️☑️招商林屿湖畔售楼处电话:400-1183-605☑️☑️
远香湖CAZ效果示意图
公共服务方面:远香湖CAZ简直是城市地标集中营!嘉定图书馆、保利大剧院、五星级凯悦酒店早已名声在外。
☑️☑️招商林屿湖畔售楼处电话:400-1183-605☑️☑️
远香湖实景图
☑️☑️招商林屿湖畔售楼处电话:400-1183-605☑️☑️远香湖实景图
同时,未来这里还将建设文化环、未来塔、活力谷等城市新地标建筑!(规划内容来自上海嘉定微信公众号)
· 文化环:除了现有嘉定图书馆、保利大剧院、江南书院、尚画美术馆外,围绕着远香湖未来还将打造立体儿童乐园、航模活动中心、嘉昆太路演中心等一系列高能级文化设施。
· 未来塔:位于CAZ的正中央,建成约300m,将成为嘉定甚至是上海西北第一高楼,是真正的C位地标(规划中)
· 活力谷:集商业和办公于一体的休闲创意街区。☑️☑️招商林屿湖畔售楼处电话:400-1183-605☑️☑️
示意图,仅供参考
☑️☑️招商林屿湖畔售楼处电话:400-1183-605☑️☑️
教育方面:这里有全龄段精英教育资源!
幼儿园方面,有公立学校远香湖幼儿园和高端私立中国中福会幼儿园。
中小学方面,上海知名的公办学校:上海市实验学校嘉定新城分校、上海交通大学附届嘉定实验学校、上海市嘉定区新城实验学校。
都是九年一贯制的学校,也都是嘉定最好的顶级教育资源。☑️☑️招商林屿湖畔售楼处电话:400-1183-605☑️☑️
(注:相关教育设施仅为介绍周边教育资源,并不承诺为划片学区)
☑️☑️招商林屿湖畔售楼处电话:400-1183-605☑️☑️
上海市实验学校嘉定新城分校实景图综上所述
作为远香湖CAZ规划红线内最后一块住宅用地,招商林屿湖畔错过不再。
未来业主将于城市地标为邻,享受到的必然是与国际接轨的潮流生活!
当然,即使着眼于现在,项目的生活配套也足够丰盛!☑️☑️招商林屿湖畔售楼处电话:400-1183-605☑️☑️
☑️☑️招商林屿湖畔售楼处电话:400-1183-605☑️☑️
商业方面:项目周边大体量商业体环伺,包括西云楼、宝龙广场、万达广场、大融城、理想之地配套商业(在建)、吉宝绿地缤纷城等近40万方商业。略远些还有嘉定目前的商业地标约33万方的印象城Mega。☑️☑️招商林屿湖畔售楼处电话:400-1183-605☑️☑️
☑️☑️招商林屿湖畔售楼处电话:400-1183-605☑️☑️
嘉定宝龙广场实景图
☑️☑️招商林屿湖畔售楼处电话:400-1183-605☑️☑️
嘉定万达广场实景图
医疗方面:周边有三甲医院瑞金医院北院、嘉定区妇幼保健院、嘉定中心医院、上海嘉定中医医院嘉定新院等优质医疗资源,护航家人健康。☑️☑️招商林屿湖畔售楼处电话:400-1183-605☑️☑️
☑️☑️招商林屿湖畔售楼处电话:400-1183-605☑️☑️
为更好满足居民刚性住房需求和多样化改善性住房需求,促进房地产市场平稳健康发展,8月25日,上海市住房城乡建设管理委、市房屋管理局、市财政局、市税务局、人民银行上海市分行、市公积金管理中心等六部门联合印发《关于优化调整本市房地产政策措施的通知》(以下简称《通知》),包括调减住房限购、优化住房公积金、优化个人住房信贷以及完善个人住房房产税等政策。《通知》自2025年8月26日起施行。
一、调减住房限购政策
为更好满足居民改善性需求,促进宜居安居、职住平衡,《通知》明确进一步调减住房限购政策。一是符合条件居民家庭在外环外购房不限套数。对符合本市住房购买条件的居民家庭,包括本市户籍居民家庭、在本市连续缴纳社会保险或个人所得税满1年及以上的非本市户籍居民家庭,在外环外购买住房不限套数,包括新建商品住房和二手住房。二是成年单身人士按照居民家庭执行住房限购政策。
按照上述规定,沪籍居民家庭和沪籍成年单身人士,在外环外购买住房不限套数;在外环内限购2套住房。非沪籍居民家庭和非沪籍成年单身人士,自购房之日前在本市连续缴纳社会保险或个人所得税满1年及以上的,在外环外购买住房不限套数;自购房之日前在本市连续缴纳社会保险或个人所得税满3年及以上的,在外环内限购1套住房。
关于住房限购政策相关业务,可拨打房地产交易行业服务热线“962269”具体咨询。
二、优化住房公积金政策
为加大公积金支持住房消费力度,《通知》规定优化住房公积金政策。一是提高个人住房公积金贷款额度。对缴存人购买二星级及以上新建绿色建筑住房的,住房公积金(含补充公积金)最高贷款额度上浮15%。首套最高贷款额度从160万元提高至184万元,多子女家庭首套上浮比例可叠加计算,从192万元提高至216万元;二套最高贷款额度从130万元提高至149.5万元。二是支持提取住房公积金支付购房首付款。对缴存人购买我市新建预售商品住房的,可以按规定申请提取本人及配偶的住房公积金支付购房首付款。三是支持住房公积金“又提又贷”。对缴存人提取住房公积金支付购房首付款的,不影响其住房公积金贷款额度计算。
关于住房公积金贷款和提取业务的具体办理方式及材料,可查询上海住房公积金官网或拨打住房公积金热线“12329”具体咨询。
三、优化调整商业性个人住房贷款利率定价机制
为减轻居民购房利息负担,《通知》明确优化个人住房信贷政策。银行业金融机构根据上海市市场利率定价自律机制要求和本机构经营状况、客户风险状况等因素,在利率定价机制安排方面不再区分首套住房和二套住房,合理确定每笔商业性个人住房贷款的具体利率水平。
关于住房贷款相关业务,可向经办银行具体咨询。
四、完善个人住房房产税政策
为衔接优化住房限购政策,《通知》规定对符合条件的非本市户籍居民家庭购买的第一套住房暂免征收房产税;购买的第二套及以上住房在合并计算家庭全部住房面积后,给予人均60平方米的免税面积扣除。由于个人住房房产税按年征收,因此2025年1月1日起符合条件的购房者可享受本条政策。
现在预约看房,可享「专属服务」:在线一对一销售服务,还能优先锁定小区中心位置房源。拨打售楼处专线 400-1183-605 ,可以安排专车上门接送,带您实地看实体样板间,还能帮您算专属购房优惠,避免买贵、买错!,让您花最少的钱,选到最满意的房!
请务必报名后静待销售电话确认,确认后再行前往现场 !仅预约客户可进入销售现场,感谢您的理解和支持
声明:本文由入驻焦点开放平台的作者撰写,除焦点官方账号外,观点仅代表作者本人,不代表焦点立场。
