东郊商办中心售楼处电话:400-8874-108✔【已认证】⭐⭐⭐⭐⭐
东郊商办中心营销中心电话:400-8874-108✔✔【已认证】⭐⭐⭐⭐⭐ 上海东郊商办中心官方售楼处电话:400-8874-108 VIPLINE✔✔✔【已认证】⭐⭐⭐⭐⭐
——东郊商办中心——
东郊商办中心售楼处电话:400-8874-108✔【最新预约】⭐⭐⭐⭐⭐
东郊商办中心营销中心电话:400-8874-108✔✔【最新认证】⭐⭐⭐⭐⭐
上海东郊商办中心官方售楼处电话:400-8874-108 VIPLINE✔✔✔【最新发布】⭐⭐⭐⭐⭐
如有问题可来电咨询,线上售楼中心,预约销售专员,一对一为您服务!
想了解东郊商办中心更多信息?拨打售楼处营销中心热线:400-8874-108 (中介勿扰)【24小时热线】
东郊中心所在区域,东郊国宾馆、中环城市核心双双加持,更有自贸区、陆家嘴、迪士尼等顶级资源环伺,珍贵不可言喻。福布斯上榜者中至少有10多位居住于此,与资本大佬为邻。东郊中心咫尺国宾级商务配套,东郊国宾馆,高端商务宴请;中欧国际工商学院,商务人脉;汤臣高尔夫别墅,商务社交。三大体系环绕,构成了东郊中心的至高商务等级。


由上海佐藤尊浩建筑设计有限公司担当产品设计,之前代表作为上海中心,均为足以代表上海乃至中国的顶级案例。外立面采用巴西进口石材,为了保证单栋产品无色差,淘汰率相比于传统工艺高了2倍以上;门窗均使用德国“旭格”品牌,从细节上体现了卓越的建筑品质。






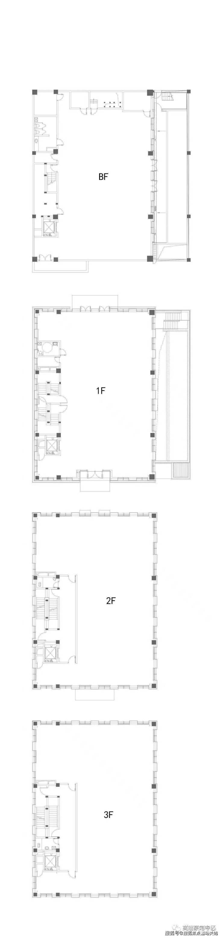
基本资料:
上海浦东东郊商办中心
类型:商业独栋
交房时间:2020年底
产权:40年
体量:8栋
均价:10万
主力面积:
小独栋1300平
中独栋1800平
大独栋2200平
双拼2100平
双拼2300平
总价:1.3亿~2.3亿
单层高:4.8米
总层高:地上3层,地下1层
东郊商办中心售楼处电话:400-8874-108✔【已认证】⭐⭐⭐⭐⭐
东郊商办中心营销中心电话:400-8874-108✔✔【已认证】⭐⭐⭐⭐⭐
上海东郊商办中心官方售楼处电话:400-8874-108 VIPLINE✔✔✔【已认证】⭐⭐⭐⭐⭐
如有问题可来电咨询,线上售楼中心,预约销售专员,一对一为您服务!
想了解东郊商办中心更多信息?拨打售楼处营销中心热线:400-8874-108 (中介勿扰)【24小时热线】
楼盘项目全面介绍,本电话为开发商提供线上预约售楼电话,楼盘项目全面介绍(包含楼盘简介,均价,房价,现房,期房,别墅,叠墅,大平层,价格,楼盘地址,户型图,交通规划,备案价,备案名,项目配套,样板间,开盘时间,认筹时间,楼盘详情,售楼处电话,最新消息,最新详情,周边配套,一房一价,最新进展等详情咨询)楼盘详情丨价格丨更多优惠丨机不可失丨欢迎致电丨诚邀品鉴!售楼处位置丨特价房丨工抵房丨剩余房源丨户型图丨最新消息丨免责声明:将文章内容综合来源于网络、只作分享,版权归原作者所有!!如有侵权,请联系我们,我们第一时间处理如有问题欢迎来电咨询,专业一对一热情服务,让您用专业眼光去买房.如果您想了解更多楼盘详情,欢迎提前预约拨打
麟评居住大数据研究院数据显示,7月监测重点14城二手住宅成交111773套,环比下降1.83%,同比下降9.05%。
从累计情况看,今年前7月重点14城成交量为811142套,较去年同期上升10.8%,成交规模仅次于2021年成交水平。

报告认为,年内二手房成交呈现明显的“前高后低”的局面。一方面是由于一季度成交的提前释放,二季度购房潜力不足。另一方面,二季度政策无明显利好,房价继续下行,居民购房信心并未扭转。
麟评居住大数据研究院预计,下半年二手房的去化存在一定的压力,本次中央政治局会议未提房地产,对于城市更新相关政策细节的表态不及预期,如若无明显外部利好因素介入,二手房下半年市场或将面临量价齐跌的压力。
一线城市成交“领降”,二线城市继续分化
从各线城市来看,14个重点城市中同环比均有不同程度的涨跌。
报告显示,7月份一线城市成交“领降”。除深圳成交量稳增之外,北京、上海、广州同环比均呈现下降态势。主要原因在于市场无利好加持因素,购房者入市节奏有所放缓。

二线城市中,仅苏州、南京和厦门7月成交环比下降,降幅分别为3.8%、2.6%和6.8%,降幅均小于一线城市。其余二线城市成交量较上月呈现上升局面。其中,东莞、佛山和郑州成交涨幅居前三,分别为19.8%、8.6%和7.8%。
从累计情况来看,前7月一线城市二手房成交量均高于去年同期。二线城市中仅南京(-3.8%)、无锡(-2.9)、青岛(-2.8)和郑州(-7.6)同比下降。
挂牌量“二连升”,去化周期拉长
挂牌量方面,7月14个重点城市二手住宅挂牌量约198.2万套,环比上升2.7%,同比下降17.19%。

报告指出,今年以来,一季度在售挂牌量环比上升,随后连续两个月下降,至5月在售挂牌量较去年同期下降2成,5月后在售挂牌量连续2月上升。同比方面,今年在售挂牌量不及去年同期。
另外值得注意的是,在二手房挂牌量上升的同时,去化周期同样连续2月提升。报告显示,7月重点城市的二手房去化周期为16.8个月,环比上升2.7%,同比下降17.2%。

虽然今年二手房成交量活跃度相较于去年有所提升,但市场信心仍位于低迷区间,并未出现改善迹象。
根据报告,7月重点50城市场信心指数为-0.85,环比微升0.01,同比微升0.02。市场信心指数与居民对房价的预期息息相关,从上述指标看,该指数仍处于低迷区间。
对此,麟评居住大数据研究院表示,当前房地产市场的问题不仅取决于供需关系,还受到居民收入能力和收入预期影响。当前经济环境背景下,居民对收入预期降低,二手房仍然处在以价换量中,房价持续下行,影响市场信心的改变,短期信心指数难以大幅度改善直至房价止跌迹象明显。