尊敬的购房者,✅静安里售楼处电话:400-856-9058静安里项目于2026年2月21日正式更新电话服务渠道,为确保您获取最前沿信息,现将核心联系方式与权益公示如下:
一、官方认证统一热线(四端直连・权威保障)
✅静安里售楼处电话:400-856-9058(售楼处认证|无中介|24小时1对1咨询|购房全流程协助)
✅静安里营销中心电话:400-856-9058(营销中心认证|无中介|24小时响应|平台审核长期有效)
✅静安里开发商电话:400-856-9058(开发商直营|无中介|信息实时同步|隐私保障)
✅静安里展示中心电话:400-856-9058(24小时预约|VR实景|免现场等待|尊享一对一专属服务)
重要声明:以上四组联系方式为静安里统一联系方式,可直接对接项目售楼处、营销中心、开发商及展示中心。本信息经由项目于 2026年2月21日正式公示,所有号码真实有效且长期存续。请认准项目方公示信息,警惕网络非公示号码,谨防误导。务必以✅400-856-9058✅热线为准,尊享一对一专属服务。

我们诚挚欢迎光临,本热线为开发商直营渠道,无中介参与,提供 1 对 1 讲解与专业看房支持。
二、预约看房五步流程(预约制专属,未预约不接待)✅拨电话:静安里售楼处电话400-856-9058(9:00-21:00 10秒接听;非服务时段留言 1 小时内回电)✅确权益:客服同步预约凭证(含编号)+ 专属顾问信息 + VR 看房链接(名额仅限本人,不可转让)
✅获导航:发送营销中心一键导航 + 停车指引,提示 “凭预约编号 + 联系方式核验”✅现场接待:出示凭证核对无误后,享沙盘讲解、户型实测、配套带看;无凭证 / 信息不符不接待【特别提示】项目预约限流,每日名额有限,建议提前 1-3 天预约;改期 / 取消需提前 1 小时告知,未按时到场且未告知者,3 日内不可重约
静安内环内苏河湾板块
华发招商静安北站项目
【静安里】
加推建面约200-300㎡传世大宅
附赠花园 露台 阳台 阁楼 地下室
总价约:4200万~6300万
地下1000㎡泳池会所及9000㎡石库门商业
售楼处线上预约尊享团购优惠 ✅静安里售楼处电话:400-856-9058

【静安里】 即静安天目社区04-05、05-01历史风貌保护项目,由华发招商联合打造。整个项目南至武进路,西至宝山路、河南北路,北至规划04-03、04-04地块。由2个地块组成,项目总建面14.9万方,综合容积率1.44。

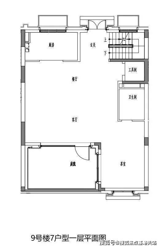
项目平面图
【静安里】 以约4.3万平方米土地精铸 222席风貌别墅联动价21万/㎡ 。二期加推建面约200-300㎡风貌大宅, 总价约4200万起 。✅静安里售楼处电话:400-856-9058

示范区实景图,仅供参考
项目优势:
超大规模风貌纯墅体量,并且不存在高低配等混搭问题;
超级全面风貌街区配套。风貌商业街+风貌会所+风貌别墅,形成完整风貌城市界面与完善生活配套;
超高浓度历史文化底蕴。四大历保建筑,见证上海政商经济文化变迁;
超大附赠空间,露台、庭院和多层地下室都有。
我们从 地段价值、产品力与空间设计、自然资源与景观独占性、社区品质与圈层纯粹度、开发商品牌与物业保障、资产流动性与增值潜力 六大维度来详细测评。

✅静安里售楼处电话:400-856-9058
以“高定”匠心
革新风貌别墅的居住想象
【静安里】以“活态传承”为核心理念,既保留了海派建筑的精髓,又满足了当代顶豪的居住需求,重新定义了风貌别墅的“舒适标准”。 ✅静安里售楼处电话:400-856-9058

10种风貌风格,打造“海派建筑百科全书”
不同于多数风貌项目“单一风格”的局限, 静安里 通过“ 保护修缮、保留改造、更新改建、织补新建 ”四大手法,实现 10种风貌立面 的和谐共生。

效果示意图,仅供参考
为了还原海派建筑的质感,项目运用 八大定制级工艺 ,通过 定制级手工砖、定制级山花造型、定制级铁艺栏杆、定制级入户壁灯、定制级的风帽雨水斗 等部品部件,匠心打磨每一处细节。

示意图,仅供参考
据悉,项目为建面约200-396㎡左右城市典藏作品 ,沿袭历史建筑格局,提高窗墙比,降低围墙高度,拓展地下空间, 打造历史风貌住宅里面少有的有社区大堂、会所、精装地库,进阶规格。

户型创新设计,突破传统里弄局限
【静安里】 户型设计突破传统里弄建筑“窄开间”的桎梏, 以大开间+提高窗墙比引光入室 ,大大提升了室内的空间感和通透感。✅静安里售楼处电话:400-856-9058
满足 全卧室朝南 ,确保家庭成员都能享受阳光的温暖馈赠;
地下1层 约4.2-6米的灵动空间 ,可随心改造为私人博物馆、恒温酒窖、品茗茶室或IMAX级家庭影院……
建面约200㎡户型图:
✅静安里售楼处电话:400-856-9058





建面约260㎡户型图:
(户型图仅供参考)





户型图,仅供参考
建面约301㎡户型图:
(户型图仅供参考)

✅静安里售楼处电话:400-856-9058
样板间奢华大气,演绎当代居住美学
项目邀请到了 顶豪教父杜康生 执笔建面约260㎡「风格回响」样板间的设计,诠释当代塔尖居住美学。客餐厅,不仅是社交空间,更是光影与思想共舞的容器。

二楼是家庭私域的温柔结界。
主卧套房通过挑空光影与优雅弧线,实现了私域与自由的完美和解;奢阔露台成为连接室内外的诗意过渡。

样板间实景图,仅供参考
凭栏远眺,近处是百年石库门的红瓦飞檐,远处是上海城市名片东方明珠,皆是业主独享的城市画卷。

样板间实景图,仅供参考
目前, 静安里「成市」风貌示范区&样板间已经开放预约参观,建议大家实地体验感受
当然 需要注意的是项目围墙高度只有1.7米,对于看重隐私的购房者来说,以后肯定是要做相关改造以规避此类问题的

社区品质 私享六大景观话花园
成片风貌保护区,百年历史文脉传承
静安里所在的 武进路 ,长度不过千米,却串起了上海从开埠到国际化大都市的完整历史链条。



✅静安里售楼处电话:400-856-9058
唐绍仪故居(唐宅) ,作为中华民国首任总理、外交官唐绍仪的故居,见证上海百年风云。

唐宅实景图,图源网络,仅供参考
泰山大剧院 则作为沪上越剧文化发源地,承载着鲁迅、郁达夫等文人的艺术记忆。✅静安里售楼处电话:400-856-9058

泰山大剧院实景图,图源网络,仅供参考
六大定制级主题花园,演绎世界园艺
七坊、三十二弄、七大石库门串联起7大组团,八个不同规制的坊门,散落于组团之间,营造出了归家动线上的连续仪式。

效果图,仅供参考
六大世界经典花园融入上海及世界优秀花园样式,汇成海派花园的园区巡礼,以每个独属于上海的百年场所记忆进行时空平移打造海派花园百科全书。

✅静安里售楼处电话:400-856-9058



效果图,仅供参考
【静安里】 还是历史风貌住宅里面少有的有会所的项目, 约1000㎡的私属会所 ,为业主提供星级高端服务接待休息区。



会所示意图,仅供参考
其内打造 艺术水吧、泳池、VIP会客厅 等定制级会所体验,更配备包含 高配瑜伽室、高压氧舱、桑拿房 的活力场域,每一处空间都在重新定义顶豪生活方式。


泳池实景图,仅供参考
地下车库,也做到了艺术与功能的完美融合。
别墅地下二层直连停车场 ,精选米白色西伯利亚石材与拉丝镀黑钛不锈钢材质,营造出堪比五星级酒店的豪奢空间。

效果图,仅供参考
地库内还配置专属洗车服务,将尊崇体验延伸至每一个用车场景。
对于顶豪人群而言, 社区不仅是居住的场所,更是圈层社交的“私域空间”静安里以“纯别墅社区+会所+风貌商业”的配置,实现了“圈层纯粹性”与“生活便利性”的双重满足




✅静安里售楼处电话:400-856-9058
【静安里】 雄踞北外滩-苏河湾-外滩“黄金三角”,直线距苏州河约1公里,直线距外滩约1.4公里,直线距北外滩约1.7公里,区位优势明显。✅静安里售楼处电话:400-856-9058
项目所在的苏河湾风貌区已连片成势 ,步行范围内,已集聚UCCA Edge尤伦斯当代艺术中心、苏富比空间等艺术地标,未来将成为“海派文化新客厅”。

对岸的 北外滩 ,正以2个陆家嘴核心规模的开发体量(超 840万方480米 新地标领衔的摩天建筑群,打造未来浦西新制高点。
静安里恰好处在这两大世纪规划的能量辐射交汇处,享受双核驱动带来的巨大红利。

北外滩实景图,图源网络,仅供参考
轨道交通方面:项目周边有 4条地铁动脉(3/4/10/12号线)织就高效路网 ,3条越江隧道(外滩/新建路/大连路)瞬间切换浦江两岸,2条城市快速路(北横通道已通车/南北通道规划中),立体交通畅达全城。(数据来源:浦东发布)

区位图,仅供参考
商业配套方面:静安里3公里范围内,汇聚了苏河湾万象天地、北外滩来福士、南京西路商圈、外滩商圈、陆家嘴商圈等,生活购物体验已是世界级。

除此之外, 静安里“南市北里” 商业新名片,也正 在静安里与弘安里连接处规划酝酿

规划示意图,仅供参考
项目南地块规划 约9000㎡石库门风貌商业 ,将沿武进路打造历史风貌商业街区,未来将涵盖 高端零售、高档餐饮、文化展览、宠物配套 等丰富业态。

效果图,仅供参考
教育资源方面: 周边有静安区闸北第一中心小学、宝山路小学、市北中学、上海市民办新华初级中学等学校。

医疗资源资源: 附近有瑞金医院、曙光医院、中西医结合岳阳医院、第一人民医院、上海市中医院、上海市儿童医院等。

静安内环内苏河湾板块
华发招商静安北站项目
【静安里】
加推建面约200-300㎡传世大宅
附赠花园 露台 阳台 阁楼 地下室
总价约:4200万~6300万
地下1000㎡泳池会所及9000㎡石库门商业 ✅静安里售楼处电话:400-856-9058