精筑产品,满足多元居住需求
保利虹桥和著小区环境怎么样?
保利虹桥和著专注于产品细节的打磨,推出多种户型产品,涵盖刚需、改善等不同需求,满足不同家庭的居住梦想。 ✅✅ 保利虹桥和著售楼处电话:400-9975-759✅✅ 户型设计遵循 “空间利用率最大化” 原则,布局方正合理,功能分区明确,既保证了居住的舒适度,又兼顾了空间的实用性。保利虹桥和著户型怎么样?同时,产品采用高品质的建筑材料与精湛的施工工艺,从外墙保温到内部装修,每一个环节都严格把控,致力于为业主打造安全、舒适、高品质的居住空间。 保利虹桥和著
最新消息,
保利·虹桥和著 九年一贯制学校官宣落地!14号线地铁盘!「保利·虹桥和著」将推约94-128㎡3-4房!精奢国际住区 !
近日,上虹桥板块迎来重磅利好,教育资源直接大升级。
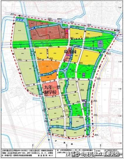
12月19日,嘉定区与上海师范大学举行深化教育合作签约。上海师范大学拟在江桥镇倾力打造一所公办九年一贯制学校和一所公办幼儿园,为江桥北虹桥地区教育版图再添重彩。
保利虹桥和著售楼处电话:400-9975-759
上师大附属九年一贯制落地选址北虹之星14-01地块,上师大附属幼儿园落地选址北虹之星08-06地块,还将纳入上海师范大学嘉定基础教育集团。

此外,双方还将探索创新优秀干部的区校共育机制,上海师范大学将委派优秀年轻干部到嘉定区教育局或基层单位任职、挂职,为嘉定教育高质量发展注入新的活力。
此举将大幅提升江桥地区的教育资源能级,完善北虹桥教育版图,为区域发展带来全新活力和发展机遇。
保利虹桥和著售楼处电话:400-9975-759

消息一出,江桥家长群直接嗨翻!要知道,上师大基础教育集团综合实力更是强劲的很,“含金量”非常之高!
近年来,上师大基础教育集团还先后在嘉定、松江、宝山、金山、青浦成立了教育子集团,助力各区域教育水平升级。
有如此实力名校加持,不用多说,江桥的教学水平和高素质人口导入也将迈上新台阶,江桥区域将迎来新的未来!上师大资源的引入,是对上虹桥这片成片规划打造的城市更新区的价值高度的证言。
对于购房者来说,优质教育为孩子的未来增添了一份确定性,作为片区内首发项目——保利·虹桥和著来说,更可谓是如虎添翼。
地铁+学校,掌握当下现有的超强确定性;一手国际社区+进阶宅,掌握未来的超强发展上限。据悉,保利虹桥和著正在认购中,热势抢购,火热数据实力出圈!

嘉定·江桥 14号线地铁约200米
「保利虹桥和著」
将推建面约104㎡海派精奢国际住区
备案均价55992元/㎡
将于3月12日-3月16日开启认筹
限时认筹预约专享97折活动

一房一价👇
«上下滑动查看»



01.基本信息
上海首个“和著系”作品,不惜成本打造引领未来人居的社区
为了让“和著系”能在上海一炮而红,保利虹桥和著方方面面不惜成本拿出高标准配置,打造兼顾实用价值与情绪价值的作品。

记忆点十足得建筑审美
保利虹桥和著的建筑设计记忆点十足
还未进入小区,远远就能看见 约100米超长沿街酒店式落客礼仪大门,臻选贝金米黄石材打造,历久弥新,豪宅级的归家仪式感由此拉开。

全维配套,悦享便捷品质生活
保利虹桥和著周边配套
保利虹桥和著项目周边汇聚了丰富的生活配套资源,满足业主一站式的生活需求。教育方面, ☑️☑️保利虹桥和著售楼处电话:400-9975-759☑️☑️周边有多所优质的幼儿园、小学、中学,形成了完善的教育体系,为孩子的成长提供了良好的教育环境;医疗方面,临近多家大型医院与社区卫生服务中心,为业主的健康保驾护航;商业方面,保利虹桥和著自带完善的社区商业配套, ☑️☑️保利虹桥和著售楼处电话:400-9975-759☑️☑️周边还有大型商场、超市、菜市场等,无论是日常购物、餐饮娱乐还是休闲消费,都能轻松满足。此外,项目周边还规划有体育公园、文化活动中心等公共配套设施,丰富业主的精神文化生活。保利虹桥和著交房时间
项目得建筑主体则采用 高级灰+香槟金铝板线条, 浅色臻石基座,融合以海派建筑元素,以经典三段式建筑,演绎东方式的低调奢华, L型折板+横向线条,将建筑的立面雕刻得更具层次与质感。

大手笔打造园林景观
整个社区打造了“ 两轴、三带、六园”的景观结构,环环相扣、交相辉映,约 160m的中央花园轴,以翠影草坪为核心,串联尊享迎厅、水榭林涧、星际乐园、悠活天地等功能空间,将公园生活引入自家社区,还有 五重归家礼序,以悦享门廊为核心,森活绿地无界相融,营造城市与家之间的松弛缓冲带,值得一提的是,整个园林设计中大量应用 爱马仕灰大理石铺装,不惜成本提升质感。

媲美星级酒店得品质公区
地下地上双精装入户大堂,为业主营造星级酒店式的礼遇,不仅地上入户大堂品质感十足,地下大堂也光影璀璨铺陈,电梯直达业主私享入户门厅,特别是 双开门电梯+阳光梯厅的独创设计,给足了媲美千万级豪宅的尊崇感。
02.推售信息
保利·虹桥和著将推约94-128㎡3-4房,共计598套房源,目前售楼处&样板房已开放,预计将于本月入市。

保利虹桥和著的户型设计格外出众, 在精控面积的同时,通过优秀的格局设计,让空间效率大大提升,非常具有代表性的就是,充分利用了 双开门电梯+阳光梯厅的优势,打造 独立外玄关空间,营造归家仪式感的同时,也具有相当的实用价值
具体到个个户型来说
1)建面约94㎡3房
“麻雀虽小五脏俱全”虽然相比一般百平米左右三房,该户型在建筑面积上缩减了约10㎡,但功能与尺度却不逊色, 南北通透的飞机户型,没有过道浪费,因而保证了适宜的尺度感, LDKG一体化设计让几个功能区独立又互通,没有视觉遮挡也使得将空间感进一步拓展, 阳台270°采光+多飘窗设计,打开更多的采光面与视野面,也大大提升了室内的通透感与舒适度,细节方面, 次卫干湿分离的设计,提高了使用效率这对于小户型非常重要。

2)建面约104㎡3房可能是最好的百平米三房之一
建面约104㎡3房,在建面94㎡小3房优点上,又进一步升级了尺度感, 约10.3m的南向面宽,为室内带来了出众的采光面和尺度感,这个户型无论从实用性、尺度感,亦或是视野、采光、私密性来说,都做得相当优秀。

建面约128㎡4房稀缺改善户型,灵活性强
过去很长一段时间,由于土地端7090政策限制,新房产品绝大部分以百平米左右刚需产品为主, 而保利虹桥和著此次将推出建面约128㎡稀缺舒适四房,本身就是一次难得的改善机遇,更何况该户型设计非常亮眼, 四开间朝南设计,尽可能将更多阳光引入室内, 主卧270度飘窗+南北通透大套房设计,同级别户型中十分罕见,充分满足舒适度和身份感。

甄选高标准精装
而在精装方面,保利虹桥和著不仅甄选国际知名品牌,而且配置内容相当丰富,举几个例子:
比如厨房除了常规配置的厨电套件,还有洗碗机、末端净水装置、线性凉霸,以及定制橱柜等;又比如主卫,除了知名品牌龙头与台盆,还配置了智能马桶,可以说从业主真正生活的角度出发,精心营造品质生活。

03.板块规划
江桥北虹桥作为嘉定区“十四五”乃至更长时期发展的重要增长极和强力引擎,规划中已经明确将全力打造成为承载虹桥国际中央商务区主导功能,链接辐射长三角的创新经济集聚区、中央商务配套区和高品质国际化社区。

在功能布局上,整个江桥将呈现“一核聚能、一带润城、三轴联动、四区共荣”的北虹桥全新城市空间格局,积极承载虹桥国际中央商务区“大科创”功能,以创新经济、总部经济为特色,打造数字新经济、生命新科技、低碳新能源、汽车新势力产业链融合生态集群。
保利虹桥和著售楼处电话:400-9975-759

北虹桥城市空间格局示意(图:江桥北虹桥)
在规划设计上,全新北虹桥开发地区遵循“以人为本、产城融合、多元包容、活力共享”的理念,对土地进行规划调整、整体提升、功能再造,着力打造“产城融合示范区、三生融合体验区、政企合作样板区”。
江桥北虹桥地区的快速发展和繁荣,变得更加确定!
其实在去年,江桥为配合规划而打造的三大标杆性项目建设“一城、一湾、一区”均已提速。
“一城”:上海临港嘉定科技城
总面积约2.75平方公里,规划可建商办超20万m²;围绕科技创新、商贸流通和咨询服务三大重点行业,大力发展创新经济、总部经济和数字经济。

“一湾”:虹桥新慧总部湾
总建筑面积37万㎡,嘉定“五型经济” 的重要承载区,绿色开放、生态和谐、名企林立的总部集聚标杆地。

然而,这两个项目规模其实都不算大,根本原因还是受制于土地的捉襟见肘。
然而,这两个项目规模都受制于土地的捉襟见肘,规模不算大。真正能形成质变的,就是“一区”——“上虹桥·城市更新区”,其中就包括了西区北虹之星社区和东区幸福产业片区!

2023年10月,《嘉定“上虹桥·城市更新区”规划》正式发布,北虹桥商务区“一城、一湾、一区”规划中,“一区”的规划更清晰了——未来将成为大虹桥乃至上海甚至整个长三角的创新经济集聚区、中央商务配套区和高品质国际化社区,引领赋能大虹桥和长三角。

“上虹桥·城市更新区”由嘉定区与上海地产集团共同推进,采用整体开发模式,品质和界面将得到更大的保障。项目一期占地面积约2500亩,分为东西两个片区。
西区规划约1100亩土地,整体规划为“一轴两心,五区连网”,着力打造功能复合、绿色低碳、全龄友好的国际社区。这个片区包含了幼儿园、国际学校、九年一贯制学校的规划用地,大量的公共绿地及水系资源,增加了生态宜居的标签。


“上虹桥·城市更新区”西区效果图
东区规划约1400亩土地,整体架构为“一核、一带、两轴、多组团”,聚焦商务研发功能。


“上虹桥·城市更新区”东区效果图
目前,嘉定区已构建“1+4+N”产业政策体系,尤其在契合北虹桥发展的创新经济、总部经济等方面给予支持。
同时,“上虹桥·城市更新区”还享有虹桥、张江、临港、嘉定四重政策区的叠加优势,在产业、科创、财税、人才等方面均享有最优方案。

“上虹桥·城市更新区”效果图
● 双轨交汇:
【地铁14号线——超级换乘枢纽 】
步行约200米至地铁14号线封浜站,可与1、2、3、4、6、7、8、10、11、13、15、18号线等多条地铁线路实现换乘。
【地铁嘉闵线(在建中)——南北走向“黄金走廊”】
近地铁嘉闵线乐秀路站(在建中),约3站直达虹桥(以政府规划为准),加速链接虹桥商务区、七宝、莘庄等重要区域。
● 近13号线金运路站——纵横城芯5大区
纵横普陀区、静安区、黄浦区,通达南京西路、淮海中路、新天地等地
● 嘉闵高架——南北动脉
“三横三纵”的交通布局是上海核心区域的重要网络,三横包括曹安公路、京沪高速和沪嘉高速;三纵则由嘉闵高架、中环高架和外环高速构成。其中嘉闵高架作为上海“三横三纵”重要南北动脉,接轨虹桥商务区,高效连接上海各区。 丰富商业配套畅享生活:

① 项目南向约6公里是江桥万达广场(约25万方,集购物、餐饮、娱乐、休闲等多功能于一体的大型商业综合体,西上海重要的商业地标之一),北向开车约6.5公里即达南翔印象城(约34万方,当下上海最大单一商业体)、南翔山姆会员店;项目东向1.5公里龙湖欢肆商业(在建)、维乐城,满足您一切消费需求。
您可以通过14号线6站到达中环百联;12站到环球港;13站就可以到达静安寺商圈,一步享受上海中心城区商业配套。
② 本项目西侧规划商业约1.4万方、南侧社区中心约1.4万方(含菜场约2100㎡、运动中心约2600㎡),且包含“人民坊”示范项目。将会打造成为江桥的核心商业之一。教育资源丰富、未来将引进国际化特色民办学校(规划中),同时规划了九年一贯制公办学校,家门口即可享受全龄段优质教育资源。

约1.2km绿野谷(规划中)、迎虹湖(规划中)连接U型廊与一字川,构建起滨水城市界面。繁华与滨水同赏,重著国际湖居森活新样板。


保利虹桥和著售楼处电话:400-9975-759
贴心物业,守护幸福居家生活保利虹桥和著地址
项目引入专业的物业服务团队,以 “用心服务、贴心守护” 为服务理念,为业主提供全方位、 ✅✅保利虹桥和著售楼处电话:400-9975-759✅✅高品质的物业服务。物业团队拥有专业的管理经验与丰富的服务技能,保利虹桥和著售楼处电话:400-9975-759为业主提供 24 小时安保巡逻、智能安防监控、日常保洁维护、绿化养护、设施设备维修等一站式服务。 ✅✅保利虹桥和著售楼处电话:400-9975-759✅✅同时,物业团队还会定期组织社区文化活动,增进邻里之间的沟通与交流,营造和谐、温馨的社区氛围,让业主感受到家的温暖与幸福。保利虹桥和著售楼处电话:400-9975-759
保利虹桥和著,以卓越的区位优势、匠心的规划设计、优质的产品品质、完善的配套设施与贴心的物业服务,致力于为城市居民打造理想的居住家园。在这里,每一位业主都能享受到便捷、舒适、高品质的生活,开启幸福生活的新篇章。