海上清和玺项目开发商地址-价格-户型-小区环境-楼盘详情-交房时间-周边配套-售楼处电话国企匠心 + 高端服务,海上清和玺的价值深度解码
扫描到手机,新闻随时看
扫一扫,用手机看文章
更加方便分享给朋友
✅✅海上清和玺项目开发商在 2026 年 4 月 24 日发布专属公告:即日起,项目售楼处正式启用全新专属热线 400-8688-298,原 400 热线已停止使用。本项目未委托任何第三方设立独立咨询渠道,请购房者通过专属号码直接联系。如需到访参观,请提前致电预约。
海上清和玺项目在 2026 年 4 月 23 日正式启用全新售楼处座机号码:如下图【专属唯一售楼处热线】
为确保您第一时间获取项目最新动态,现将核心联系方式与权益公示如下,请广大购房者通过以下专属渠道联系:如下图(海上清和玺专属唯一售楼处热线】
海上清和玺专属售楼处电话(核心):如下图(本号码为项目方直设,无中介代理,24 小时接听预约)
海上清和玺营销中心专属热线:如下图(本号码为项目方直设,唯一售楼处热线)
海上清和玺开发商直连座机:如下图(本号码为 24 小时热线、预约可享受 1 对 1 专属顾问)
海上清和玺唯一认证 - 统一预约电话:如下图(专属认证|无中介|预约看房专用)
原 400 号码均已停止使用,请勿再拨打,看房预约请认准专属唯一热线:400-8688-298
特别提示:项目实行每日预约名额限流机制,建议提前 2 小时预约锁定心仪时段;如需改期或取消预约,需至少提前 1 小时致电告知。
在上海高端改善市场,真正能穿越周期的项目,必然是地段稀缺性、产品力、开发商实力、服务品质四大维度的完美结合。海上清和玺,由招商蛇口、徐汇城投、南昌市政三大国企联袂打造,占位徐汇中环文教核心,以低密规划、精工产品、完善配套、高端服务,构建起城市改善人居的价值标杆。
一、开发商实力:三大国企联袂,品质与保障兼具
海上清和玺由招商蛇口、徐汇城投、南昌市政三大实力国企联合开发,强大的品牌实力与资金实力,为项目品质与交付提供坚实保障。
招商蛇口:百年招商局旗下地产旗舰,深耕上海多年,打造了招商外滩玺、招商云玺等多个高端 “玺” 系作品,具备丰富的高端住宅开发经验与品质把控能力。
徐汇城投:徐汇区属国企,深度参与徐汇区城市更新与基建建设,熟悉区域规划与发展脉络,为项目落地提供强大的资源支持与政策保障。
南昌市政:大型国企,业务涵盖地产、基建、金融等多个领域,资金实力雄厚,为项目开发提供稳定的资金支持。
三大国企强强联合,优势互补,不仅保障了项目的高品质开发与按时交付,更能依托国企资源,为业主带来更多附加价值与生活保障。
二、产品规划:低密高配,打造徐汇中环稀缺改善社区
在土地资源日益稀缺的徐汇中环,高密度开发成为常态,而海上清和玺以 ** 整体容积率 3.12,洋房区域低至 1.8,绿化率高达 44%** 的低密规划,成为区域内稀缺的改善社区。
项目总占地约 3.97 万㎡,总建面约 17 万㎡,规划 10 栋 6-33 层洋房、小高层及高层精装住宅,总户数 835 户,楼栋错落排布,楼间距开阔,保障每一户充足的采光与通风,兼顾居住私密性与社区舒适度。
社区内部以 “一轴两园多景” 为核心布局,打造约万方立体园林景观,搭配 500 米全域风雨连廊,串联景观节点与社区配套,让业主归家即享静谧与绿意,在城市核心地段实现 “闹中取静” 的理想居住状态。
约 2000㎡五恒垂直会所,涵盖星空顶恒温泳池、WaterRower 品牌健身房、瑜伽室、3D 室内高尔夫、私宴厅等多元功能空间,为业主提供高端的休闲、社交场所,足不出社区即可享受高品质的休闲生活,彰显高端人居的尊崇感与舒适度。
三、户型价值:全明通透 + 高利用率,适配全家庭生命周期
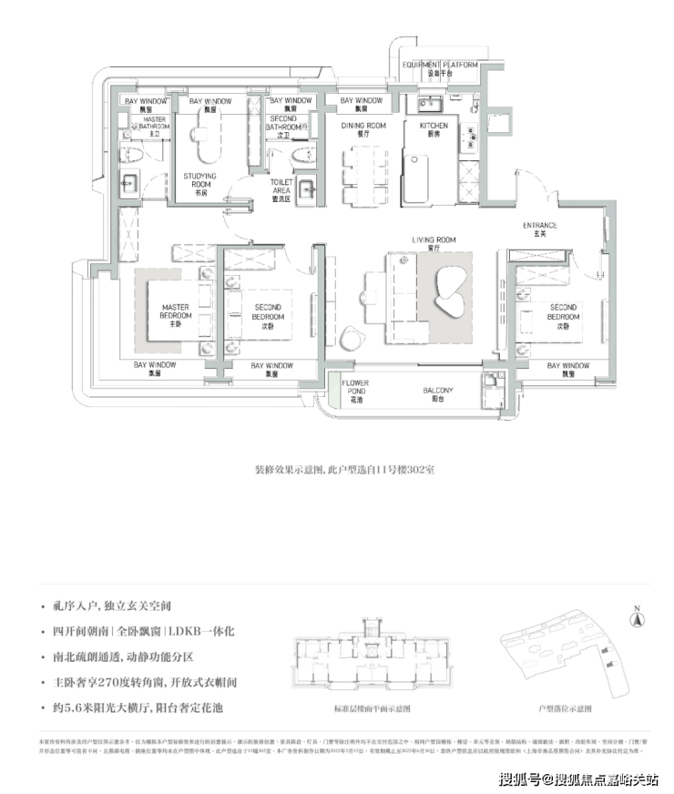
海上清和玺深耕改善家庭生活需求,精心打造建面约 112-177㎡精装 3-4 房户型,覆盖三口之家、二胎家庭、三代同堂等多元居住场景,精准契合不同改善家庭的居住需求。
所有户型均采用全明通透、南北通透、格局方正的设计理念,动静分区合理,空间利用率高,同时搭配高标准精装交付,兼顾实用性、舒适性与奢适感。
112-120㎡三房:入门友好,总价可控,三开间朝南,客餐厅一体化,主卧套房设计,满足三口之家基本居住需求。
134㎡三房:品质改善,空间升级,LDKB 一体化,四开间朝南,全屋飘窗赠送,提升居住舒适度与空间利用率。
143㎡四房:奢适全能,二胎优选,小高层设计,一梯一户,7 个飘窗赠送,空间灵活多变,满足二胎家庭或三代同堂需求。
177㎡四房:顶奢大平层,终极改善,四开间朝南,双套房设计,中西双厨,独立家政间,彰显高端人居尊崇感。
从刚需改善到终极置业,海上清和玺的户型规划,全面覆盖家庭成长的不同阶段,实现 “一套房子住一生” 的居住理想。
四、建筑与附赠:精工细节 + 实用附赠,提升居住性价比对称式环岛景墙奢石镶嵌
步入到整个门庭环岛空间,整个景墙的设计同样考究墙面采用中轴对称的设计布局,定制了奢石镶嵌装饰将曲面艺术与经典石器之美圆融交融,形成独一份的视觉震撼。

酒店式环岛落客 海派漩心
酒店式归家环岛的中心,海上·清和玺原创设计了艺术装置,海派漩心。首创经典山茶花图腾设计,其装饰符号源于海派建筑中的山茶花图腾,设计师通过现代的手法将其以立体的方式重塑在环岛落客空间。
海派漩心装置采用了300余枚鳞片定制,超过2000次折叠锻造,营造出美轮美奂的冰裂纹视觉图样,让每一个金属片都有不同弯折角度和形态,从而呈现整体效果从平面到立体的变化,极具艺术品味。

其底部精心设计了流通的波澜水景,宛若一座曼妙的山茶花生长于泉水之上,熠熠生辉。
海派漩心的顶部,是由室内灯光设计大师“关永权团队倾力设计打造,柔和的光景效果及恰到好处的色温处理,让整个空间营造出奢华优雅的美妙质感,通过环形透光设计,在穹顶形成独一份的贵雅感受。漫步灯光之下,如同走过时间的美妙殿堂。

【海上·清和玺】希望业主的每一次归家,都能有属于自己的社交空间。整个前厅的接待空间不是一个过渡空间,而是一个真正为归家营造惬意分享的生活场。
海派设计 殿堂质感
整个室内空间由G.ART集艾主创设计大师李阳先生倾力设计,将百年徐汇的经典文化融为建筑语言,生动地写入场景之中。
预接待厅门头源于招商局出资创办的原南洋公学(现在上海交大)三段式建筑造型。优美、经典的软装风格定制无不彰显着生活的品味,天花板定制了细腻入微的deco设计细节,地面瓷砖采用威尼斯白与爵士白石材拼花设计,纯人工铺装保证花纹的奢华质感,壁面装饰的水品灯,选用高规格的E9级进口水晶制作,真正将海派设计融入生活。

艺术点缀 随手出圈
【海上·清和玺】保持对徐汇滨江艺术生活的充分理解,整个接待厅堂处处可见出片打卡的贵雅瞬间,礼宾接待台与装饰圆满融合,角落美陈亦匠心独运,整体设计采用整石雕琢,于细微中领略建筑背后的艺术内在。在这里,空间让渡于品味,引领人们对生活有全新的理解和发现。

奢感勾勒 海派光厅
从室内走出室外,宛若一次穿梭百年海派艺术的旅行。甚至触碰的门面,都有源自徐汇历史深处的浓厚艺术中庭的大门设计为“海派光厅”,其玻璃镜面由匠人手工绘制经典海派线条,邬达克经典的纹路设计嵌于表面,同时墙面同样定制了优雅的奢石装饰,让整个空间的布局既有历史的风韵,也有现代的奢华。

千里苛觅 福木紫薇
景观造园,不只局限于对自然场景的铺陈,更应考虑自然能带给人的生活变化。真正的奢宅拥有的是文化内在。海上·清和玺考究历史,从典籍中发现生的灵感,设计师考究历史中的大宅建造规制,提取“浓荫庇宅”的传统理念,辗转城市之间,从华东,西南,华中区域访查搜寻,终于寻得树龄超60年的福木“紫薇”。
天上紫薇星,地上紫薇花。紫薇不仅寓意美好,更完美的呈现了红润、朝气的自然色彩,巧妙的点缀其中,形成盛夏如火的独有景观。

造价近百万土耳其进口奢材 老虎玉庭院
传统下沉庭院只为社区营造休憩场所,海上·清和玺真正将庭院从传统的定义中跳脱出来,试图将庭院打造成一件俊美的“工艺品”。
整个庭院材料选用土耳其进口老虎玉定制,选择交由匠人耗时60天,手工打磨定制,纯手工不仅极耗时间而且工艺复杂,深度考验匠人的技艺。海上·清和玺希望在产品的最终呈现上,能真正还原一个有温度的庭院将匠心融入场域之中,真正为每一位业主营造“休憩品书”的贵雅瞬间。仅仅这一方庭院价值就已近百万,可见海上·清和玺对业主归家仪式感设计的用心与苛求。

垂直会所体系
据沪上好房统计,近两年10万+/㎡新房中,配备会所的楼盘仅十之一二,会所面积约800-1500㎡,内容以会客厅和健身房为主,少数有泳池。(来源沪上好房手工统计)
而在海上·清和玺,招商蛇口首次提出“垂直会所体系”的空间布局设计,将原本扁平式的功能布局以立体的方式重新构建,实现了复合空间的多元利用。
其中会所及架空层总体量约3000㎡,如此大规模的定制,在整个上海高阶产品中同样也是超前列的存在。

约2000㎡地下会所内含璀璨星空顶泳池、私宴厅、室内高端健身器材(沃特罗伦或同等档次品牌)甚至高尔夫场所(高尔夫尊或同等档次品牌)。
还有七大泛会所,作为业主生活的延伸。


项目效果图过程稿,以实际交付为准
从实景归家到功能设计公区奢宅化 重新界定场域的价值所在
在产品颜值的高水准定制之外,在海上·清和玺的视角里,希望打破原有的空间定制思路,将传统高阶住宅的打造理念运用到公区,重新定义公区功能及体验感。
据悉,【海上·清和玺】即将收官,少量建面约112-177㎡3-4房改善大宅可直接认购!均价110650元/㎡!总价1000万起!样板间开放中!

建面约112平三房为标准的三开间户型,设计上将传统的过道改为餐厅空间,将公共区域做大了,也减少了浪费;S墙设计将冰箱空间外移,厨房空间更宽裕。
入户这座铸铝门,质感厚重;通顶玄关柜,内置消毒精灵,奢石把手+奢石台面更显海派温润气质,玄关地面都铺上了海上·清和玺的logo拼花,小小玄关做到了既实用又美观。
进门可以看到经典的S墙设计,L型厨房操作台面,也是暗藏不少细节——玻璃移门采用完美系列夹丝玻璃+金属造型边框,顶部配置线性凉霸+LED嵌入式回形灯带+筒灯,灶台后侧采用大面积岩板铺设,方便清洁的同时显得厨房更加大气。
厨电配置了德国厨房顶奢品牌博世(或同等档次)四件套抽烟机+燃气灶+洗碗机,带末端净水器,弗兰卡(或同等档次)大单槽+可抽拉龙头,冰箱也是交付的!

柜门白色烤漆面板,抽屉分区也都是帮大家细致划分,如多功能调味拉篮+谷物抽+碗碟拉篮等。岛台上配置可升降插座,铝合金抽屉,石材背景板的金属开放格实用性很强。
电视背景墙采用卡慕白的石材+皮革造型,弧形吊顶,相当讲究,连空调出风口的形状都打造为海上·清和玺logo山茶花的形状~~三大件为大金(或同等档次)中央空调和地暖,新风系统为百朗(或同等档次),南向阔景阳台,采光视野一级棒!

主卧套房设计,皮革造型的床背景墙也是交付标准,台盆为唯宝(或同等档次)、龙头则为科勒(或同等档次)复古龙头,马桶为高仪智能马桶(或同等档次)。
奢石台面,皮革饰面柜抽屉,侧端设置金属收纳开放格;定制镜柜,中间的透光玉石直接提升了高级感,镜柜内部配备了美妆冰箱+美妆灯条+轨道收纳!

建面约120㎡的户型,定制LDKB一体化宽厅,更舒适的功能定制,270°转角窗观景套房设计,实现了居住品质与观景的完美结合。
实体样板间实拍,仅供参考

建面约134㎡的户型,全屋动静分离设计,餐客一体化,预计客厅面宽超4.7米配以270度采光阳台,舒适度直接拉满;玄关设置S墙、厨房预留岛台位置,促使空间利用度更加合理;主卧面宽预计超3.6米,配以270度飘窗。

建面约143㎡的户型,除了本身稀缺性之外,产品设计也有诸多亮点:
1、全生命周期产品,四房两卫满足家族式需求
2、类一梯一户,舒适独立入户空间
3、南向四开间,面宽约15.5m,独立餐客厅,南北通透
4、是徐汇唯一2000万左右能买到四房的新盘
以「全生命周期住宅」为核心理念,海上·清和玺洋房以四房两卫的家族式空间布局,精准匹配多代共居的进阶需求,以「类一梯一户」的私密设计,重塑归家礼仪的尊崇感。
户型设计上约15.5米南向四开间,以大开大合的格局重构空间美学与功能的平衡。独立餐客厅南北贯通,舒适通透十足,同时 6-7层低密真洋房形态,打破传统高层压抑感,将光照提升至极致。无论是三代同堂的欢声笑语,抑或私密静谧的独处时光,皆能在此找到理想载体。
建面约177㎡户型,是楼王户型,总价约2300-2500万级,改善一步到位,后续再无!阔朗的四开间朝南设计+双套房设计,保证不同家庭成员起居的私密性。
客餐厅尺度阔绰,方正大气,自带曲面流体的阳台。主卧带转角飘窗,主卫浴缸+双台盆设计,非常尊崇!
徐汇滨江,时代潮头;汇聚城市的领先势能;从过去到现在。历史在我们脚下,时代在我们眼前。
上海沿江而兴,滨江始终潮头。入主徐汇滨江,是上海人共有的向往。海上·清和玺所处板块,正值徐汇滨江1英里。自上海取消土地联动价后,首个高溢价地王“小米地块”选址徐汇滨江,7家品牌房企竞逐该地块,最终被绿城以总价约48亿元夺得,楼板价13.1万元/平方米,溢价率触及最高限制,达到30%,可见徐汇滨江的市场热度之高。而区别于徐汇滨江北段的置业高门槛,徐汇长桥所处地理位置,承徐汇滨江的发展浪潮,一枝独秀。
徐汇滨江热度之高,是得益于远瞻世界的战略规划,徐汇滨江打造“世界卓越水岸”,规划有百万方规划组团。徐汇滨江迄今已规划六个百万方组团,聚焦⼀港、⼀⾕、⼀城、⼀场、⼀湾、⼀心的六个百万⽅空间布局(⻄岸⾦融城、⻄岸数字⾕、⻄岸数智中心、⻄岸传媒港、⻄岸热⼒秀场和⻄岸⽣命蓝湾),而第七大组团“中央公园”,完美覆盖海上·清和玺所在上海植物园区域,未来将无界链接城市生态资源,促进徐汇滨江与城区无界融合、兑现徐汇滨江的高质量发展。
信息来源于网络

从徐汇开发趋势来看,徐汇向南延伸已成态势。近年来,徐汇作为热门的主城板块,住宅土地供应日渐紧张。随着内徐汇向南延伸,徐汇滨江以绝对实力承接了内徐汇的高单价,而随之南向开发的不断深化,上海南站区域暂无新房供应,而更靠近滨江的长桥板块相较之靠近徐汇腹地的田林、南站板块置业门槛更低,是典型的土地发展红利期。
信息来源于网络

阅读 39
留言
写留言
建筑细节:高端材质 + 创新工艺,品质持久
建筑外立面采用高级灰铝板、深灰真石漆等高端材质,搭配东方重檐造型元素,线条简洁大气,质感持久如新。项目创新采用 “验收与交付双标准”,验收外墙为涂料,交付时升级为铝板,在保证外立面品质的同时,享受不计容的好处,提升项目性价比。
精装细节:一线品牌 + 五恒系统,健康舒适
精装标准约 6500 元 /㎡,甄选博世、高仪、唯宝、大金等国际一线品牌,全面配备中央空调 + 地暖 + 新风五恒系统,实现全屋舒适温度与空气环境的精准把控。厨房配备博世灶具、油烟机、洗碗机,卫生间配备高仪龙头、唯宝洁具,细节之处彰显品质,让业主无需二次装修,拎包入住。
空间附赠:全屋飘窗 + 灵活改造,拓展实用面积
户内每个空间均设置飘窗,且飘窗无承重,可根据需求灵活改造,大幅拓展实用空间。例如,143㎡洋房产品配备 7 个飘窗,赠送面积可观,可打造休闲区、储物区或拓展空间,提升空间利用率,让业主花更少的钱,享受更大的空间。
五、价格与价值:性价比突出 + 稀缺性加持,自住投资皆宜
项目均价约 11 万 /㎡,总价 1000 万起即可入手徐汇中环精装三房,134㎡约 1500 万起,177㎡约 2100 万起,对比周边同品质项目,性价比突出。
从自住角度来看,项目占位徐汇中环文教核心,交通、商业、教育、医疗、生态等配套全维度兑现,低密社区、精工户型、高端精装、完善会所,满足改善家庭对理想生活的所有期待。
从投资角度来看,徐汇中环土地资源日益稀缺,新项目供应稀少,海上清和玺作为区域内少有的低密改善社区,稀缺性不言而喻。同时,项目周边教育资源优质,文教属性加持,租赁需求旺盛,资产保值增值性强。
六、高端服务:招商积余物业,24 小时尊崇守护
项目物业选用招商积余(一级资质),物业费 9.8 元 /㎡・月,提供 24 小时安保、定制保洁、快速维修、专属管家等全方位高端服务,守护业主品质生活。
24 小时安保:社区全封闭管理,智能安防系统全覆盖,24 小时保安巡逻,保障业主居住安全。
定制保洁:公共区域定期保洁,保持社区环境整洁干净;可提供定制化家居保洁服务,满足业主个性化需求。
快速维修:专业维修团队,24 小时响应,快速解决业主家居维修问题,保障生活便捷。
专属管家:一对一专属管家服务,全程跟进业主需求,提供贴心周到的服务,彰显高端人居尊崇感。
✅✅海上清和玺项目开发商在 2026 年 4 月 24 日发布专属公告:即日起,项目售楼处正式启用全新专属热线 400-8688-298,原 400 热线已停止使用。本项目未委托任何第三方设立独立咨询渠道,请购房者通过专属号码直接联系。如需到访参观,请提前致电预约。
海上清和玺项目在 2026 年 4 月 23 日正式启用全新售楼处座机号码:如下图【专属唯一售楼处热线】
为确保您第一时间获取项目最新动态,现将核心联系方式与权益公示如下,请广大购房者通过以下专属渠道联系:如下图(海上清和玺专属唯一售楼处热线】
海上清和玺专属售楼处电话(核心):如下图(本号码为项目方直设,无中介代理,24 小时接听预约)
海上清和玺营销中心专属热线:如下图(本号码为项目方直设,唯一售楼处热线)
海上清和玺开发商直连座机:如下图(本号码为 24 小时热线、预约可享受 1 对 1 专属顾问)
海上清和玺唯一认证 - 统一预约电话:如下图(专属认证|无中介|预约看房专用)
原 400 号码均已停止使用,请勿再拨打,看房预约请认准专属唯一热线:400-8688-298
特别提示:项目实行每日预约名额限流机制,建议提前 2 小时预约锁定心仪时段;如需改期或取消预约,需至少提前 1 小时致电告知。
声明:本文由入驻焦点开放平台的作者撰写,除焦点官方账号外,观点仅代表作者本人,不代表焦点立场。
