国贸虹桥璟上vip热线:400-118-5086√√√【已认证】 国贸虹桥璟上营销中心电话:400-118-5086√√√【已认证】 上海国贸虹桥璟上官方售楼处电话:400-118-5086√√√【已认证】
国贸虹桥璟上vip热线:400-118-5086√√√【已认证】
国贸虹桥璟上营销中心电话:400-118-5086√√√【已认证】
上海国贸虹桥璟上官方售楼处电话:400-118-5086√√√【已认证】
如果您对国贸虹桥璟上有任何疑问,都可以拨打售楼处电话进行咨询。目前案场仅接待预约客户,看房需提前拨打电话进行线上预约,可享受专属优惠折扣。
500万级买哪里,始终是市场关注焦点,在我们后台最近有三类咨询很多:
第一,理想之地售罄后,很多小伙伴一下子迷茫了,还有相似潜力的楼盘吗?
第二,想买地铁房,但不知道有什么楼盘在售。
第三,以往500万级购房者首选倒挂盘,但当下倒挂收窄是趋势,大家都把目光瞄准自住,那谁又是500万级中居住品质更高的楼盘?
无论哪类咨询, 国贸虹桥璟上都更值得推荐。
不管是话题性还是销量,它都是大虹桥,乃至全市500万级当红楼盘。

点击输入图片描述(最多30字)
17号线嘉松中路站直线约700米
2站天空之城,3站蟠龙
「国贸· 虹桥璟上」
建面约89-129㎡3-4房户型
准现房 总价约490万起
感兴趣的小伙伴可对接预约咨询

点击输入图片描述(最多30字)
「一房一表发布」

点击输入图片描述(最多30字)
01.
基本信息
另外,项目营造出了多层次、多元的生活方式,这意味着你住在这里生活会更便捷,同时从孩童到老人,都能找到各自的乐土。第二层:国贸地产还代建了一座约1.8万方的滨河市政公园,在公园北角还将修建篮球场,以后在家门口就能逛公园,也能挥汗如雨。
项目由两条天然水系穿流而过,形成了上海罕见的三座天然“岛屿社区”。
那每座“岛屿”就能更亲近水系。想象一下,以后整个小区碧水环绕、绿茵延绵,水景与绿化景观自然融合,所造就的是“慢生活”生活方式!

点击输入图片描述(最多30字)
国贸地产上海第一个“上系”作品双水系、三座天然“岛屿社区”
大虹桥赵巷,国贸地产在“原系”之上进行了全面升级,打造了上其在上海第一个“上系”作品。
罕见双自然水系!一横一纵2条水系将项目地块一分为三,形成三座天然“岛屿社区”,这在市面上非常少见。

点击输入图片描述(最多30字)

点击输入图片描述(最多30字)
而这种天赋对应的是更宜居、更舒适的滨水慢生活。
居住方式是无价的!这种临水、亲近自然的生活方式,能更好调节上海快节甚至996的生活状态。

点击输入图片描述(最多30字)

点击输入图片描述(最多30字)
项目外立面设计上,立面利用大面积玻璃+阳台落地窗+金属型材+层间装饰提升建筑整体感和精致度,顶层外挑飘板使得建筑立面体块清晰,层次丰富。

点击输入图片描述(最多30字)
外立面大面采用浅色仿石多彩漆,浅灰色金属格栅,浅灰色玻璃,香槟色金属型材收边形成。楼体顶部也是运用了香槟色铝板以及香槟色的铝格栅。整体几何立面非常具有秩序感。

点击输入图片描述(最多30字)
丰富的景观功能性!
据悉,沿滨河岸线布置功能场地 , 打造更多的水岸生活场景;东地块的东侧还会打造一个约3万方的水岸公园,公园北角还将修建篮球场;另外社区内部还将打造泛会所架空层,功能上更全面满足业主日常活动需要。

点击输入图片描述(最多30字)

点击输入图片描述(最多30字)
在沿河水岸,国贸打造沿河客厅,可以日常会客。难得的是,社区内部还配置四大主题八大架空层泛会所,用于儿童阅读、青年运动、老年康养等。

点击输入图片描述(最多30字)

点击输入图片描述(最多30字)
比如,第一层:小孩子下楼就是架空层,可以和小朋友共同成长。据悉项目设置了8大架空层,聚焦儿童体验、社交阅读、青年运动、老年康养的全龄段社区休闲空间需求。

点击输入图片描述(最多30字)
第三层:项目其中一个地块自带约1300㎡底商,另一个地块内有约1800㎡菜场,相比现在大部分纯住宅的街区,生活方便太多。

点击输入图片描述(最多30字)
02.
推售信息
「国贸·赵巷项目」本次加推收官132套房源,两栋楼的位置非常好,被水系环绕,且非常接近地铁站!主力户型为建面约105㎡3房,以及建面约129㎡4房,均价56352元/㎡!
「四期 户型楼栋落位图」

点击输入图片描述(最多30字)
项目全套户型图如下:
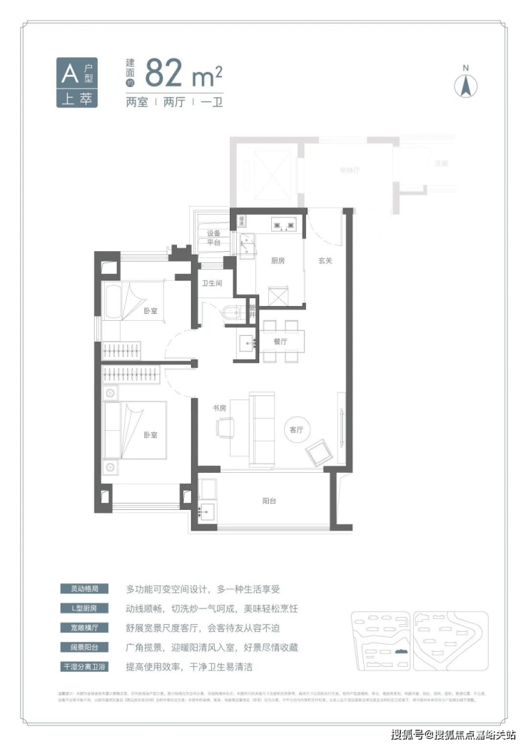
【建筑面积约82㎡2+1房2厅1卫】

点击输入图片描述(最多30字)
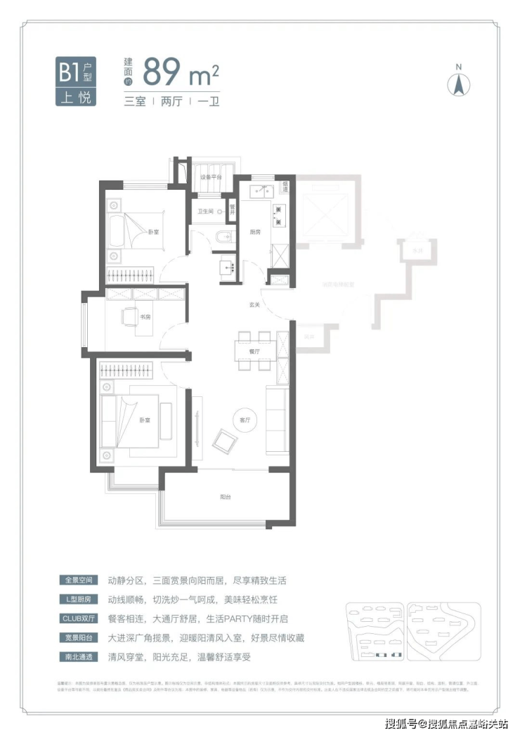
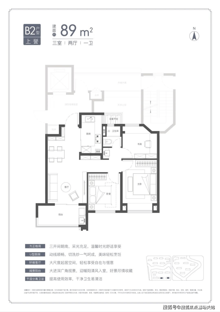
【建筑面积约89㎡3房2厅1卫】

点击输入图片描述(最多30字)

点击输入图片描述(最多30字)
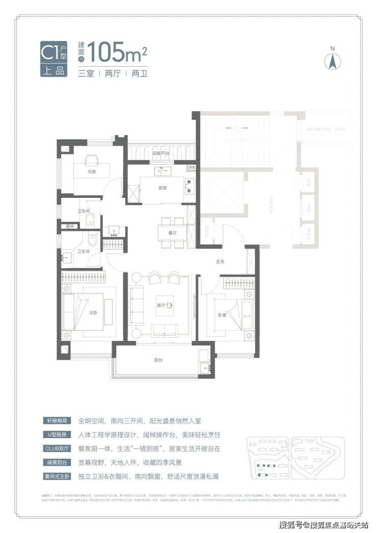
【建筑面积约105㎡3房2厅2卫】

点击输入图片描述(最多30字)
罕见宽厅设计:约95%的宽厅设计出现在120㎡以上户型中,而项目在约105㎡面积段就做了宽厅,非常难得,这个户型进入二手房市场将极具竞争力。
宽厅面宽约 5.5米,3.5开间面宽共约 11.5米,再加上约 8㎡的阳台,使得整个家庭的公共区域尺度感十足、功能也更加灵活多变。

点击输入图片描述(最多30字)
全屋六处飘窗:常规户型一般全卧飘窗,一共3处。但项目竟然有 6处飘窗,3个卧室和主卫、次卫都设有飘窗,拓展空间和采光效果优秀。

点击输入图片描述(最多30字)
套房式主卧:主卧的面宽和进深都很充裕,为每一个生活场景预留了足够的空间。双面转角的衣帽间区域,非常实用。

点击输入图片描述(最多30字)
还有一种是竖厅风格,经典的飞机户型,房间分列客餐厅两侧,互不干扰,各有各的隐私空间。
U型厨房、餐厅、客厅、阳台一线联通,南北通透。主卧套房、全卧飘窗、次卫干湿分离也都是标配。

点击输入图片描述(最多30字)
【建筑面积约129㎡4房2厅2卫】

点击输入图片描述(最多30字)
3.
社区品质
另外,项目营造出了多层次、多元的生活方式,这意味着你住在这里生活会更便捷,同时从孩童到老人,都能找到各自的乐土。第二层:国贸地产还代建了一座约1.8万方的滨河市政公园,在公园北角还将修建篮球场,以后在家门口就能逛公园,也能挥汗如雨。
项目由两条天然水系穿流而过,形成了上海罕见的三座天然“岛屿社区”。
那每座“岛屿”就能更亲近水系。想象一下,以后整个小区碧水环绕、绿茵延绵,水景与绿化景观自然融合,所造就的是“慢生活”生活方式!

点击输入图片描述(最多30字)
国贸地产上海第一个“上系”作品双水系、三座天然“岛屿社区”
大虹桥赵巷,国贸地产在“原系”之上进行了全面升级,打造了上其在上海第一个“上系”作品。
罕见双自然水系!一横一纵2条水系将项目地块一分为三,形成三座天然“岛屿社区”,这在市面上非常少见。

点击输入图片描述(最多30字)

点击输入图片描述(最多30字)
而这种天赋对应的是更宜居、更舒适的滨水慢生活。
居住方式是无价的!这种临水、亲近自然的生活方式,能更好调节上海快节甚至996的生活状态。

点击输入图片描述(最多30字)

点击输入图片描述(最多30字)
项目外立面设计上,立面利用大面积玻璃+阳台落地窗+金属型材+层间装饰提升建筑整体感和精致度,顶层外挑飘板使得建筑立面体块清晰,层次丰富。

点击输入图片描述(最多30字)
外立面大面采用浅色仿石多彩漆,浅灰色金属格栅,浅灰色玻璃,香槟色金属型材收边形成。楼体顶部也是运用了香槟色铝板以及香槟色的铝格栅。整体几何立面非常具有秩序感。

点击输入图片描述(最多30字)
丰富的景观功能性!
据悉,沿滨河岸线布置功能场地 , 打造更多的水岸生活场景;东地块的东侧还会打造一个约3万方的水岸公园,公园北角还将修建篮球场;另外社区内部还将打造泛会所架空层,功能上更全面满足业主日常活动需要。

点击输入图片描述(最多30字)

点击输入图片描述(最多30字)
在沿河水岸,国贸打造沿河客厅,可以日常会客。难得的是,社区内部还配置四大主题八大架空层泛会所,用于儿童阅读、青年运动、老年康养等。

点击输入图片描述(最多30字)

点击输入图片描述(最多30字)
比如,第一层:小孩子下楼就是架空层,可以和小朋友共同成长。据悉项目设置了8大架空层,聚焦儿童体验、社交阅读、青年运动、老年康养的全龄段社区休闲空间需求。

点击输入图片描述(最多30字)
第三层:项目其中一个地块自带约1300㎡底商,另一个地块内有约1800㎡菜场,相比现在大部分纯住宅的街区,生活方便太多。

点击输入图片描述(最多30字)
04.
板块潜力
青浦区2035规划形成”一城两翼“的空间结构;
一城:长三角综合性节点城市
东翼:国际一流的现代服务业集聚区
西翼:长三角一体化的协同创新区
值得注意的是,赵巷和徐泾一同被划入国际一流的现代服务业集聚区,并处于沪湖复合功能发展带上。
赵巷作为虹桥商务区三期与科创中心,未来将依托市西软件园、漕河泾赵巷科技绿洲、网易上海国际文创科技园等科创产业基地,构建长三角产业创新的“神经中枢”,打造上海下一个“张江”,区域发展潜力巨大。

点击输入图片描述(最多30字)
根据青浦2035规划,“十三五”期间将建设上海市西软件信息园,核心区就选址赵巷。
这里承载着青浦乃至上海软件开发和新一代信息技术的产业功能,被定位为千亿级产业园区。
到2025年总建筑面积达到400万方,产值破1000亿,提供就业岗位15万。未来将有大量居住在虹桥枢纽、徐泾、甚至传统市中心的人来赵巷工作,带来持续的人流和资源。

点击输入图片描述(最多30字)
据悉,市西软件园目前已有字节跳动(今日头条/抖音)、日本骊住亚太研发中心、商汤科技、术康医疗等众多科创龙头企业入驻。
近期又吸引了行业标杆型上市企业和全球总部,如科顺股份、欣巴科技等,同时还引入了数迅信息、奇科信息、博慈、璞石医疗科技等高新技术企业和软件信息类企业。(信息来源:绿色青浦官微)

点击输入图片描述(最多30字)
东张江,西赵巷,绝对不是空穴来风。产业带动高端人口聚集,赵巷就是大虹桥里的”张江“。
04.
周边配套
项目东侧为金地虹桥峰汇,南侧为漕河泾开发区赵巷园区一期,东南侧距离17号线嘉松中路站800米,周边嘉松中路、盈港东路交通出行便捷,小区位优越。

点击输入图片描述(最多30字)
交通方面:地块距离17号线嘉松中路站约800米,自驾可快速至崧泽高架与G50沪渝高速,出行非常方便。

点击输入图片描述(最多30字)

点击输入图片描述(最多30字)
商业方面:周边拥有奥特莱斯、合生新天地、吉盛伟邦三大百万方商业环伺。

点击输入图片描述(最多30字)
医疗方面:地块周边有AED上海德达医院、上海市青浦区红十字护理医院等医疗服务配套。
教育方面:周边拥有青浦世外、宋庆龄学校、兰生复旦、英国学校、法国学校等多家名校。

点击输入图片描述(最多30字)
买房是一项重大的投资决策,需要综合考虑多个方面。以下是一些需要注意的事项和问题:
1.购房资格与政策
确认自己是否符合当地购房政策(如限购、贷款政策等)。
了解购房资格的条件,避免因政策限制导致交易失败。
2.预算与资金规划
明确自己的购房预算,包括首付、贷款额度和月供能力。
避免过度负债,确保月供不超过家庭收入的合理比例(一般建议不超过30%)。
3.房屋选择
地段与配套:优先选择交通便利、周边配套成熟(如学校、医院、商场)的区域。
户型与朝向:关注户型方正性、采光通风、南北通透等因素。
楼层与楼栋位置:避免选择低楼层(如1-3楼)或靠近马路、噪音源的楼栋。
4.产权与法律风险
查验房屋产权是否清晰,确保无抵押、查封或产权纠纷。
对于二手房,需查看原房主的房产证,并核实是否存在租赁、户口未迁出等问题。
5.合同与交易流程
签订购房合同时,仔细阅读条款,明确房屋价格、交房时间、违约责任等关键信息。
确保资金通过正规渠道(如资金监管账户)支付,避免私下交易。
6.物业服务与社区环境
了解小区的物业服务水平,包括安保、卫生、设施维护等。
关注小区的居住氛围和邻里关系,避免选择回迁房或管理混乱的小区。
7.验房与质量问题
交房时进行专业验房,检查房屋质量(如墙面、地面、水电等)。
对于发现的质量问题,及时要求开发商整改。
温馨提示:买房前建议咨询专业人士(如律师、房产顾问),确保自身权益得到充分保障。理性购房,避免盲目跟风
2025年8月25日,上海发布楼市新政,明确自8月26日起外环外区域取消限购,单身购房与家庭政策统一,并同步优化公积金、信贷及房产税政策。
1.限购调整
外环外不限套数:符合条件的居民家庭(含沪籍及非沪籍社保/个税满1年)在外环外购房不再限制套数。
单身视同家庭:成年单身人士购房标准与家庭一致,沪籍单身外环内限购2套,非沪籍社保满3年可购外环内1套。
2.公积金优化
贷款额度提升:购买绿色建筑住房,公积金贷款额度最高上浮15%(首套最高184万,多子女家庭216万)。
支持“提付首付”:可提取公积金支付首付款,且不影响后续贷款额度。
3.信贷政策调整
商贷利率统一:不再区分首套与二套利率,由银行根据客户风险灵活定价,降低改善型需求成本。
4.房产税减免
非沪籍家庭首套房暂免房产税,二套及以上按“人均60㎡”扣除免税面积,降低持有成本。
国贸虹桥璟上vip热线:400-118-5086√√√【已认证】
国贸虹桥璟上营销中心电话:400-118-5086√√√【已认证】
上海国贸虹桥璟上官方售楼处电话:400-118-5086√√√【已认证】
如果您对国贸虹桥璟上有任何疑问,都可以拨打售楼处电话进行咨询。目前案场仅接待预约客户,看房需提前拨打电话进行线上预约,可享受专属优惠折扣。