佘山溦沨产品设计聚焦居住的实用性与舒适度。【佘山溦沨】打造多种户型,从刚需两居到改善三居、四居,满足不同家庭结构的需求。
佘山溦沨户型设计遵循 “南北通透、方正实用” 的原则,最大化利用每一寸空间,避免面积浪费。客厅宽敞明亮,连接观景阳台,采光通风俱佳;卧室布局合理,私密性强, 佘山溦沨售楼处电话:400-9975-759主卧配备独立卫浴与衣帽间,提升居住质感;厨房采用 U 型或 L 型设计,操作动线流畅, ✅✅ 佘山溦沨售楼处电话:400-9975-759✅✅ 让烹饪更高效;卫生间干湿分离,保持空间整洁干爽。如有问题欢迎来电咨询, ☑️☑️佘山溦沨售楼处电话:400-9975-759☑️☑️专业一对一热情服务, ☑️☑️佘山溦沨售楼处电话:400-9975-759☑️☑️让您用专业眼光去买房。建筑采用高品质建材与精湛工艺,隔音、保温效果优异,窗户选用双层中空玻璃,有效隔绝外界噪音,为业主营造安静舒适的室内环境。
楼盘项目全面介绍:包含楼盘详情,最新房价,户型图,容积率,小区配套环境,楼盘简介,售楼处位置,户型图,交通规划,备案价,项目配套,楼盘详情,售楼处电话,最新消息,最新详情, ✅✅ 佘山溦沨售楼处电话:400-9975-759✅✅ 最新进展等详情咨询。佘山溦沨社区环境与物业服务,是长期居住的重要保障。
佘山星辰·佘山溦沨
松江区 佘山贵芯 满分之选
【让佘山的一缕微风,吹吹生活的褶皱】

佘山溦沨由临港集团100%控股
【项目基础参数】
区 位:佘山国际别墅区
产品性质:商业(不限购不限贷)
总户数:151户
层高:约11米(不含地下室)
主力面积:92㎡(实际使用面积约200㎡,附赠南北花园)
价格:总价约450万起
车位:1 :1
商业配套:4.1万㎡佘山旭辉里
交付时间:现房

佘山溦沨 独立产权联排商䣌
五大心动理由 尊享自然繁华
1.天赋佘山,自然与健康的理想之地
佘山地区森林覆盖率高达86%,负氧离子含量约3000个/㎡,是上海全境PM2.5指数最低的板块之

2. 便捷交通,无缝连接城市核心,项目周边三横三纵三轨立体交通网络
三横:沪青平公路、G50(沪渝高速)、G60(沪昆高速),快速连通上海中心
三纵:G15(沈海高速)、嘉松中路、G1503(上海绕城高速),畅行长三角
三轨:地铁9&12号线佘山站/洞泾站,4站抵达闵行商圈,11站即达徐家汇商圈,快速直达淮海中路等上海繁华核芯商圈;松江有轨电车T1、T2区域内绿色通行,多重公交线路,与城芯无界互联

3.中心花园与星级设施,尽享自然与娱乐
本项目含500㎡中心花园,可举办亲子休闲、欢乐派对、私人酒会及露天BBQ等活动,享受自然美景的同时,也能享受丰富的娱乐活动。

4.前庭后院,秘密与融合并存
每户均带前庭后院,私密的专属空间,同时又能享受开放的户外活动区域,在繁忙的生活中找到一片宁静与放松的天地。

5.百变空间,奢享四层半高端度假屋,灵活满足多样需求
总价约450万起,仅为周边独栋别墅总价的五分之一,使用面积约200-320㎡,可自由分割、灵活组合,无论是企业总部、私人会所还是超级民宿,都能轻松打造,满足个性化设计。
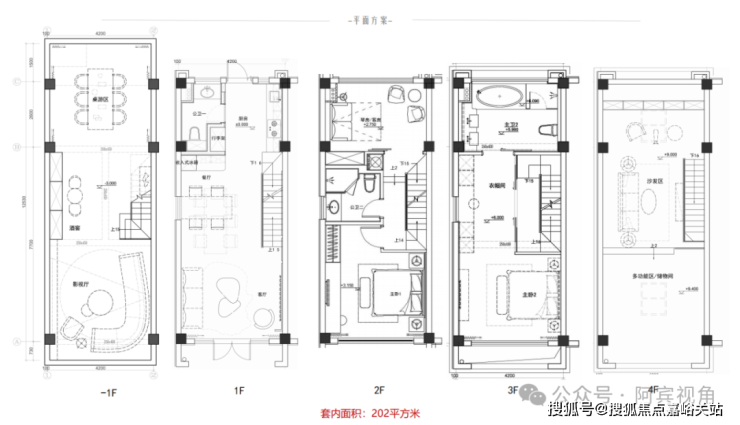
标准户型平面布局(建筑面积90㎡,使用面积202㎡)



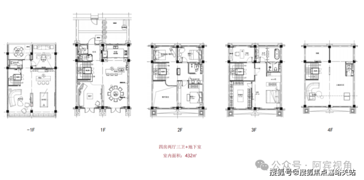
双拼户型平面布局(建筑面积180㎡,使用面积432㎡)

5km生活圈 繁华静谧两相宜
生态资源:佘山森林公园、辰山植物园、广富林遗址、月湖雕塑公园
休闲娱乐:欢乐谷、佘山高尔夫、赵巷体育公园、世贸深坑酒店
时尚消费:百联奥特莱斯、山姆会员店


* 月湖雕塑公园 ·
项目自带4万㎡配套商业,
已于2024年6月开业,引进了盒马NB、幸福蓝海影院、尚优选超市、淞沪名灶,肯德基、麦当劳、必胜客、来伊份、老盛兴,霸王茶姬、喜茶等知名品牌,集餐饮、购物、休闲、娱乐及文化为一体,在满足周边居民多元化、一站式购物需求同时,成为了佘山区域城市消费的新地标。

对接国际教育 纵享成功捷径
上海传统的富人区,拥有丰富的教育资源,高端教育如宋庆龄学校、协和双语学校、德法学校、阿德科特等10余所国际贵族私立学校,板块内临近的公办学校有佘山外国语实验学校,华实高中新校区,佘山第三幼儿园。

医疗资源丰富 为健康保驾护航
项医疗配套完善,距离项目约500米就有社区卫生服务中心,约4公里左右可达泗泾医院,约8.5公里可达三甲等医院上海第一人民医院南院,项目毗邻的三甲医院也在规划中。


【佘山溦沨】绿化率高达 35% 以上, ☑️☑️佘山溦沨售楼处电话:400-9975-759☑️☑️打造 “四季有景、步步皆绿” 的社区园林,种植多种绿植花卉,搭配景观小品、休闲步道与儿童游乐区, 佘山溦沨售楼处电话:400-9975-759既是业主放松身心的空间,也是孩子玩耍、老人休憩的乐园。 ☑️☑️佘山溦沨售楼处电话:400-9975-759☑️☑️社区实行全封闭管理,配备 24 小时安保巡逻、智能监控系统、人脸识别门禁等安防设施,保障业主居住安全。佘山溦沨售楼处电话:400-9975-759
上海佘山溦沨售楼处电话☎:400-9975-759(预约看房热线)
物业服务团队专业高效,提供日常保洁、设施维护、快递代收、社区活动组织等全方位服务,响应及时、态度贴心, 佘山溦沨售楼处电话:400-9975-759从细节处解决业主生活难题,让居住更安心、更舒心。
【佘山溦沨】以实用为核心,以品质为基石,从每一个生活需求出发,打造真正贴合家庭居住的理想社区。 ☑️☑️佘山溦沨售楼处电话:400-9975-759☑️☑️无论是首次置业的年轻人, 佘山溦沨售楼处电话:400-9975-759还是改善居住的家庭,都能在这里找到属于自己的舒适生活。目前售楼处预约通道已开启,预约热线 400-9975-759,诚邀您亲临品鉴,解锁未来美好生活新场景!