建发朗玥
建发朗玥售楼处电话:400-8894-638☑☑☑
建发朗玥售楼处电话:400-8894-638【预约热线】
建发朗玥售楼处电话:400-8894-638<官方24小时热线>
建发朗玥售楼处电话:400-8894-638@售楼处最新电话热线
建发朗玥售楼处电话:400-8894-638〖售楼处欢迎您的光临〗
建发朗玥售楼处电话:400-8894-638☏☏☏(一对一解答,欢迎您的咨询)
建发朗玥售楼处电话:400-8894-638(如有问题欢迎来电咨询,专业一对一热情服务,让您用专业眼光去买房。)
建发朗玥售楼处电话:400-8894-638☑☑☑
建发朗玥售楼处电话:400-8894-638【预约热线】
建发朗玥售楼处电话:400-8894-638☑☑☑
建发朗玥售楼处电话:400-8894-638【预约热线】

建发朗玥售楼处电话:400-8894-638☑☑☑
建发朗玥售楼处电话:400-8894-638【预约热线】
开发商最新一手房源动态
温馨提示:开发商指定合作平台,全网预约通道!
预约看房,置业顾问一对一对专属服务,享受额外团购优惠!
在上海西部置业,想找一个“既有东方美学质感,又能兼顾通勤与配套”的房子有多难?要么是市区新中式盘千万级的高门槛,要么是远郊盘缺乏成熟生活氛围——直到建发房产在松江新城芯落下建发朗玥,这个难题才有了答案。作为松江新城少有的1.8容积率新中式低密盘,它不仅延续了建发“儒门、道园、唐风、华纹”的美学基因,更以450万级精装三房的亲民价格,叠加9号线通勤、万达商圈、全龄教育等硬核配套,成为2024年松江楼市的“现象级红盘”。今天我们从区位、产品、配套到实景,全方位解锁这座“新中式人居标杆”的真实价值。
建发朗玥售楼处电话:400-8894-638☑☑☑
建发朗玥售楼处电话:400-8894-638【预约热线】
一、区位王牌:松江新城芯+9号线,30分钟直达徐家汇的“通勤友好盘”

判断一个楼盘的潜力,首先看它的“地段锚点”。建发朗玥所在的松江新城,并非普通郊区板块,而是上海“五大新城”中最早成型的板块之一,更是长三角G60科创走廊的“西部门户”——这里聚集了科大讯飞、海尔智谷等100+科创企业,2024年高新技术企业营收突破800亿元,产业人口年均增长12%,是上海西部名副其实的“价值增长极”。
建发朗玥售楼处电话:400-8894-638☑☑☑
建发朗玥售楼处电话:400-8894-638【预约热线】
对通勤族而言,建发朗玥的交通优势堪称“王牌”:项目步行1.2公里可达9号线松江大学城站,3站换乘22号线(在建,预计2026年通车),30分钟直达徐家汇、40分钟到人民广场;自驾走G60沪昆高速,25分钟到莘庄、35分钟抵虹桥枢纽;周边还有广富林大道、辰塔路等城市主干道,日常出行“自驾+地铁”双选择,完全能满足市区通勤需求。

更关键的是,松江新城正迎来“配套兑现期”:根据《松江新城“十四五”规划》,未来3年将投入200亿元升级公共服务,其中就包括9号线东延伸(规划中)、松江体育中心扩建、广富林文化遗址二期等重点项目。而建发朗玥恰好位于“新城核心生活圈”——1公里内覆盖商业、教育、医疗等全维配套,不用等规划,入住就能享受成熟生活。一位在徐家汇工作的购房者算过一笔账:“之前住闵行,每天地铁1小时,现在看建发朗玥,9号线直达徐家汇只要30分钟,还能多睡半小时。”
建发朗玥售楼处电话:400-8894-638☑☑☑
建发朗玥售楼处电话:400-8894-638【预约热线】
二、品牌背书:建发新中式标杆,国企交付的“安全感天花板”

买新中式房子,绕不开“建发房产”。作为《财富》世界500强建发集团旗下核心企业,建发房产深耕新中式领域20余年,从苏州建发拙政江南的“江南园林复刻”,到上海建发璟院的“唐风美学落地”,每一个项目都是区域的“颜值与品质担当”,更以“国企交付保障”成为购房者的“定心丸”。
建发朗玥售楼处电话:400-8894-638☑☑☑
建发朗玥售楼处电话:400-8894-638【预约热线】
在交付力上,建发房产的表现堪称行业标杆:2023年全国交付项目超120个,交付套数超10万套,其中上海建发璟院不仅提前2个月交房,还额外升级了社区门禁系统与园林植被,业主满意度高达96%;2024年更是斩获“中国房地产企业交付力TOP1”,从施工标准到交付细节,全程公开透明——建发朗玥延续这一基因,从拿地到开工,每一步都通过“建发房享家”小程序实时播报,业主随时能查看工地进度,彻底告别“期房焦虑”。
建发朗玥售楼处电话:400-8894-638☑☑☑
建发朗玥售楼处电话:400-8894-638【预约热线】
更值得一提的是建发的“新中式专利”:截至2024年,建发房产已累计获得新中式相关专利超500项,小到建筑上的“唐风飞檐”,大到园林里的“叠石理水”,都有成熟的设计与施工体系。建发朗玥的园林设计师透露:“为了还原江南园林的‘步移景异’,我们光植物选型就调整了8版,最终选定乌桕、鸡爪槭、红梅等20余种苗木,确保四季有景、四季有韵。”
建发朗玥售楼处电话:400-8894-638☑☑☑
建发朗玥售楼处电话:400-8894-638【预约热线】
三、产品力封神:1.8低密+唐风园林,把“江南雅韵”搬进社区

如果说区位是“先天优势”,那产品力就是建发朗玥的“核心竞争力”。项目总占地约4.2万方,总建面约11.5万方,容积率仅1.8——要知道,松江新城近年出让的宅地容积率多在2.2以上,1.8的低密规划意味着更宽的楼间距(最宽达48米)、更低的居住密度(仅规划8栋14-18层小高层),以及更充足的园林空间。
建发朗玥售楼处电话:400-8894-638☑☑☑
建发朗玥售楼处电话:400-8894-638【预约热线】
建发朗玥的园林,是建发“道园”理念的经典落地,以“一轴三进四园”为骨架,复刻江南园林的雅致意境:
建发朗玥售楼处电话:400-8894-638☑☑☑
建发朗玥售楼处电话:400-8894-638【预约热线】
• 一进·礼序:主入口是高达9米的唐风门楼,飞檐翘角搭配汉白玉栏杆,门楣上雕刻“朗玥”二字,两侧摆放定制石狮,刚入门就有“归家如归园”的仪式感;
建发朗玥售楼处电话:400-8894-638☑☑☑
建发朗玥售楼处电话:400-8894-638【预约热线】
• 二进·镜湖:穿过门楼,是约300㎡的中轴镜面水景,水面倒映着岸边的鸡爪槭与石灯笼,微风拂过波光粼粼,傍晚时分灯光亮起,宛如“江南夜宴”的画卷;
建发朗玥售楼处电话:400-8894-638☑☑☑
建发朗玥售楼处电话:400-8894-638【预约热线】
• 三进·松风:水景尽头是“松风庭”庭院,内置仿古石桌、木椅,周围种植3棵从浙江移植的15年树龄黑松,业主可在此下棋、品茶,感受“林下闲坐”的惬意;
建发朗玥售楼处电话:400-8894-638☑☑☑
建发朗玥售楼处电话:400-8894-638【预约热线】
• 四园·趣境:社区东西两侧分布“樱语园”“竹影园”“桂香园”“梅香园”四大主题庭院,分别对应春樱、夏竹、秋桂、冬梅,四季景观各有特色,同时嵌入全龄活动区——樱语园里有0-3岁学步区,地面用EPDM环保地垫;竹影园设置长者休憩廊架,配备充电插座与驱蚊灯;桂香园有400米夜光跑道,每隔50米设一盏地灯,晚上跑步安全又舒适。
建发朗玥售楼处电话:400-8894-638☑☑☑
建发朗玥售楼处电话:400-8894-638【预约热线】
建筑外立面同样“颜值与实力并存”:采用“香槟金铝板+深灰色真石漆+浅灰色窗套”的组合,顶部加入唐风飞檐设计,线条流畅大气;铝板的成本比普通涂料高3倍,但耐候性更强,即便经历上海的梅雨季与台风天,也不会出现褪色、脱落;窗户选用断桥铝合金+双层中空Low-E玻璃,我们在样板间实测,开窗时室外噪音63分贝,关窗后瞬间降到34分贝,堪比图书馆的安静程度。
建发朗玥售楼处电话:400-8894-638☑☑☑
建发朗玥售楼处电话:400-8894-638【预约热线】
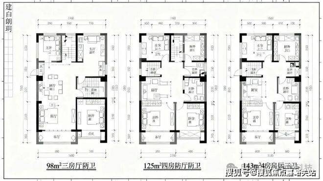
四、户型魔法:98-143㎡精装三/四房,得房率78%-83%的空间革命

户型设计直接决定居住舒适度,建发朗玥的主力户型——98㎡三房两厅两卫、125㎡四房两厅两卫、143㎡四房两厅两卫,精准击中刚需与改善群体的痛点,更以78%-83%的得房率(远超松江新城75%的平均水平),让“小面积也有大空间”成为现实。
建发朗玥售楼处电话:400-8894-638☑☑☑
建发朗玥售楼处电话:400-8894-638【预约热线】
1. 98㎡三房两厅两卫(总价450万起):刚需“一步到位”首选
建发朗玥售楼处电话:400-8894-638☑☑☑
建发朗玥售楼处电话:400-8894-638【预约热线】
作为项目的“明星户型”,98㎡做到了“三开间朝南+双卫+全明”,堪称松江刚需的“理想模板”。进门处有独立玄关,预留了鞋柜与换鞋凳的位置,避免“开门见厅”的尴尬;客厅连接3.6米宽的南向阳台,阳台预留洗衣机与烘干机上下水,还做了家政柜,收纳空间拉满;主卧是套房设计,带独立卫浴与270°转角飘窗,飘窗面积全赠送,放个小书桌就能当“阳光书房”;北向两个次卧,一个可做儿童房(放1.5米床+衣柜),一个可做老人房或储物间,即便一家三口住,也不会觉得拥挤。
建发朗玥售楼处电话:400-8894-638☑☑☑
建发朗玥售楼处电话:400-8894-638【预约热线】
一位正在看房的年轻夫妻说:“我们之前看了很多90㎡左右的户型,要么是单卫,要么北向房间太小,建发朗玥这个户型,双卫+每个房间都能放床,连衣柜都有地方,真的太实用了。”
建发朗玥售楼处电话:400-8894-638☑☑☑
建发朗玥售楼处电话:400-8894-638【预约热线】
2. 125㎡四房两厅两卫(总价580万起):改善家庭的“舒适之选”
建发朗玥售楼处电话:400-8894-638☑☑☑
建发朗玥售楼处电话:400-8894-638【预约热线】
125㎡户型最大的亮点是“6.5米横厅+四开间朝南”,客厅与餐厅相连,中间无隔断,视觉上开阔又通透——周末邀请朋友聚餐,横厅能轻松容纳10人;南向阳台与北向厨房形成“空气对流”,夏天不用开空调也很凉爽;主卧套房带步入式衣帽间,女主人再也不用担心衣服没地方放;客卫做了三段式干湿分离,早上家人用卫生间不用排队;最贴心的是北向书房,可灵活改造成儿童房或健身房,满足二胎家庭的需求。
建发朗玥售楼处电话:400-8894-638☑☑☑
建发朗玥售楼处电话:400-8894-638【预约热线】
3. 143㎡四房两厅两卫(总价720万起):高端改善的“终极解决方案”
建发朗玥售楼处电话:400-8894-638☑☑☑
建发朗玥售楼处电话:400-8894-638【预约热线】
143㎡户型是为追求品质的改善家庭量身定制的,四开间朝南,南向总面宽达14.2米,阳光能洒满整个房间;客厅与次卧打通,形成7.8米超宽横厅,搭配大面积落地窗,窗外就是园林景观,推窗即见“松风竹影”;主卧套房配备双台盆卫浴与浴缸,疲惫时泡个澡,幸福感十足;北向两个次卧,一个给老人住(靠近客卫,方便起夜),一个给孩子住,还有一个可做独立书房,满足三代同堂的居住需求。建发朗玥售楼处电话:400-8894-638☑☑☑
建发朗玥售楼处电话:400-8894-638【预约热线】

精装标准同样“诚意满满”,三大件(日立中央空调、威能地暖、霍尼韦尔新风系统)全配齐,厨房用方太油烟机、燃气灶、洗碗机(能容纳13套餐具),卫浴用科勒马桶、台盆、恒温花洒,甚至还预留了智能家居接口——业主后期可加装智能门锁、灯光控制系统,真正实现“拎包入住”。要知道,同区域很多楼盘的精装标准里,要么没有地暖,要么洗碗机需要额外加钱,建发朗玥的“全配齐”,相当于为业主省了12-18万的装修成本。
建发朗玥售楼处电话:400-8894-638☑☑☑
建发朗玥售楼处电话:400-8894-638【预约热线】
五、配套封神:1公里圈覆盖“商业+教育+医疗+生态”,生活不用等

对购房者而言,“配套成熟度”直接关系到入住后的生活质量,而建发朗玥的“1公里生活圈”,几乎做到了“不用等规划,入住即享受”。
建发朗玥售楼处电话:400-8894-638☑☑☑
建发朗玥售楼处电话:400-8894-638【预约热线】
1. 商业:双商圈环绕,下楼就是烟火气
建发朗玥售楼处电话:400-8894-638☑☑☑
建发朗玥售楼处电话:400-8894-638【预约热线】
项目步行800米就是松江万达广场,这是松江新城的核心商业体,涵盖永辉超市、万达影城、星巴克、麦当劳等200+品牌,日常买菜、看电影、聚餐都能满足;步行1.2公里可达松江印象城(2021年开业),引进了盒马鲜生、西西弗书店、亲子乐园“奈尔宝”等,年轻家庭周末带娃逛街很方便。
建发朗玥售楼处电话:400-8894-638☑☑☑
建发朗玥售楼处电话:400-8894-638【预约热线】
更贴心的是,项目自带5000㎡社区商业“朗玥坊”,目前已签约罗森便利店、钱大妈生鲜、干洗店等便民业态,业主下楼就能买早餐、取快递,甚至不用出小区就能解决“柴米油盐”的需求。一位住在附近的居民说:“松江新城的商业比5年前好太多了,现在买东西不用跑市区,家门口就能搞定,晚上万达那边还很热闹。”

2. 教育:12年全龄教育链,家长不用愁
建发朗玥售楼处电话:400-8894-638☑☑☑
建发朗玥售楼处电话:400-8894-638【预约热线】
建发朗玥1公里内覆盖“幼-小-初”全龄教育资源:步行500米是松江实验幼儿园(区一级幼儿园),师资稳定,口碑很好;步行800米是松江实验小学(松江区重点小学),2023年升学率在全区排名前8,学校还开设了书法、国画等特色课程,契合建发的新中式气质;3公里内有松江一中(市示范性高中),近三年本科率均超96%,孩子从幼儿园到高中,都不用跨区上学。
建发朗玥售楼处电话:400-8894-638☑☑☑
建发朗玥售楼处电话:400-8894-638【预约热线】
更值得期待的是,项目北侧规划了一所36班九年一贯制学校,目前已与上海师范大学附属中学签订合作协议,预计2026年开学——这意味着,未来业主的孩子在家门口就能享受到优质的公办教育资源,教育配套再升级。
建发朗玥售楼处电话:400-8894-638☑☑☑
建发朗玥售楼处电话:400-8894-638【预约热线】
3. 医疗:三甲医院+社区卫生服务中心,健康有保障
建发朗玥售楼处电话:400-8894-638☑☑☑
建发朗玥售楼处电话:400-8894-638【预约热线】
医疗方面,项目2公里内有松江区中心医院(二级甲等),开设了内科、外科、儿科等科室,日常体检、感冒发烧等常见病诊疗很方便;开车25分钟可达上海市第一人民医院南院(三甲医院),能提供肿瘤治疗、心脏手术等高端医疗服务,为业主健康筑起“双重防线”。
建发朗玥售楼处电话:400-8894-638☑☑☑
建发朗玥售楼处电话:400-8894-638【预约热线】
社区内部还规划了200㎡健康服务站,每周有医生坐诊,提供血压测量、慢病管理等服务,老人不用跑医院就能做基础检查;甚至在小区入口处,还设置了“应急救护箱”,配备了除颤仪、急救药品等,细节里藏着对业主的关怀。
建发朗玥售楼处电话:400-8894-638☑☑☑
建发朗玥售楼处电话:400-8894-638【预约热线】
4. 生态:两大公园环绕,日常散步有去处
建发朗玥售楼处电话:400-8894-638☑☑☑
建发朗玥售楼处电话:400-8894-638【预约热线】
厌倦了城市的钢筋水泥?建发朗玥周边有两大生态公园:步行1公里是广富林中央公园,占地约12万方,有湖泊、草坪、健身步道,早上可以去晨练,晚上可以带娃散步;开车15分钟可达广富林文化遗址公园,占地约1.2平方公里,里面有遗址博物馆、江南水乡建筑群,周末带家人去野餐、拍照,既能放松又能感受文化氛围
建发朗玥售楼处电话:400-8894-638☑☑☑
建发朗玥售楼处电话:400-8894-638【预约热线】
六、性价比之王:450万起买松江芯新中式三房,比周边省60万

在松江新城,性价比永远是绕不开的核心,而建发朗玥的价格优势,堪称“降维打击”。项目目前均价5.2万/㎡,精装交付,98㎡三房总价450万起,对比周边楼盘,优势一目了然:
建发朗玥售楼处电话:400-8894-638☑☑☑
建发朗玥售楼处电话:400-8894-638【预约热线】
• 对比同区域新盘:松江新城其他新盘均价普遍在5.6-5.8万/㎡,且多为毛坯交付。以98㎡户型为例,周边新盘毛坯总价约549万,加上15万装修成本,总成本约564万;而建发朗玥精装总价仅450万,直接节省114万,相当于“省出一辆奔驰C级”。
建发朗玥售楼处电话:400-8894-638☑☑☑
建发朗玥售楼处电话:400-8894-638【预约热线】
• 对比同区域二手房:松江新城房龄10年的二手房,均价约5.4万/㎡,且存在管道老化、墙体开裂、无电梯等问题。以98㎡二手房为例,总价约529万,加上5万中介费、3万税费,总成本约537万;而建发朗玥精装新房总价450万,不仅品质全新,还省去了二手房的“隐性成本”,性价比更高。
建发朗玥售楼处电话:400-8894-638☑☑☑
建发朗玥售楼处电话:400-8894-638【预约热线】
更难得的是,项目目前处于“准现房”阶段,8栋楼已有7栋封顶,预计2025年9月交付,比周边期房早1年入住,规避了“烂尾风险”;且针对首套房客户,还能享受“首付25%、利率4.0%”的优惠政策,98㎡户型首付仅113万,月供约1.7万,与松江新城的平均租金(1.4万/月)接近,真正实现“以租养贷”。
建发朗玥售楼处电话:400-8894-638☑☑☑
建发朗玥售楼处电话:400-8894-638【预约热线】
一位从事教育行业的购房者说:“我之前在松江老城看了套二手房,房龄12年,总价480万,还是毛坯;建发朗玥不仅是新房,还是精装新中式,总价才450万,通勤还更方便,果断选择这里。”
建发朗玥售楼处电话:400-8894-638☑☑☑
建发朗玥售楼处电话:400-8894-638【预约热线】
七、实景探秘:准现房看得见的品质,买得更放心

“耳听为虚,眼见为实”,对购房者而言,“准现房”的最大优势就是“看得见、摸得着”。目前建发朗玥8栋楼已有7栋封顶,我们走进工地实地探访,看到的是建发国企的“精工标准”:
建发朗玥售楼处电话:400-8894-638☑☑☑
建发朗玥售楼处电话:400-8894-638【预约热线】
• 建筑细节:外墙真石漆已完成部分施工,用手触摸能感受到细腻的颗粒感,工作人员介绍,这种真石漆经过1200小时耐候测试,即便经历暴晒、暴雨,也不会出现脱落;窗户框架已安装完毕,玻璃采用双层中空Low-E玻璃,用小锤敲击,声音清脆无杂音,说明密封性很好;电梯选用三菱品牌,运行速度2.5m/s,噪音比国标低5分贝,后期居住更安静。
建发朗玥售楼处电话:400-8894-638☑☑☑
建发朗玥售楼处电话:400-8894-638【预约热线】
• 样板间实景:精装样板间已对外开放,细节里全是“惊喜”——厨房的方太洗碗机,能容纳13套餐具,适合大家庭使用;抽拉式水龙头,能清洁到水槽的每个角落,洗大件厨具很方便;主卧的270°飘窗,宽度达1.2米,放上软垫就能当“休闲区”,傍晚坐在这里看园林,很有江南意境;卫生间的科勒恒温花洒,水温能稳定在38℃,不用担心忽冷忽热。
建发朗玥售楼处电话:400-8894-638☑☑☑
建发朗玥售楼处电话:400-8894-638【预约热线】
• 园林示范区:中轴水景已实景呈现,水面清澈,倒映着门楼与黑松,工作人员说,未来交付后,水景会每天更换过滤水,保持清洁;“松风庭”的石桌、木椅已摆放到位,周围的黑松枝叶舒展,氛围感十足;全龄活动区的滑梯、秋千已安装好,地面的EPDM地垫踩上去很柔软,即便孩子摔倒也不用担心受伤。
建发朗玥售楼处电话:400-8894-638☑☑☑
建发朗玥售楼处电话:400-8894-638【预约热线】
一位看完实景的购房者说:“之前看期房总担心‘货不对板’,比如园林缩水、精装减配,现在看建发朗玥的准现房,园林、建筑、样板间都看得见,连细节都做得很到位,买得特别放心。”
建发朗玥售楼处电话:400-8894-638☑☑☑
建发朗玥售楼处电话:400-8894-638【预约热线】
松江新城新中式人居的终极答案,450万级就能拥有的东方美学家
建发朗玥售楼处电话:400-8894-638☑☑☑
建发朗玥售楼处电话:400-8894-638【预约热线】
从松江新城芯的区位红利,到建发国企的交付保障;从1.8容积率的低密园林,到98㎡三房的极致空间;从双商圈+全龄教育的成熟配套,到450万级的性价比优势,建发朗玥用实力证明:在上海西部,刚需与改善都能不用妥协,轻松拥有“有颜值、有品质、有生活”的新中式理想家。
建发朗玥售楼处电话:400-8894-638☑☑☑
建发朗玥售楼处电话:400-8894-638【预约热线】
目前项目准现房在售,98-143㎡精装三/四房分秒递减,部分房源还能享受“立减10万”的优惠政策。无论是在徐家汇、虹桥工作的年轻白领,还是注重教育的三口之家,亦或是想追求东方美学的高端改善家庭,建发朗玥都值得列入“必看清单”。
建发朗玥售楼处电话:400-8894-638☑☑☑
建发朗玥售楼处电话:400-8894-638【预约热线】
毕竟,能在松江新城芯,用450万级买到建发新中式精装三房的机会,真的不多了。
建发朗玥
建发朗玥售楼处电话:400-8894-638☑☑☑
建发朗玥售楼处电话:400-8894-638【预约热线】