象屿天宸雅颂(售楼处电话)象屿天宸雅颂首页网站-象屿天宸雅颂销售中心-小区环境-户型-价格-地址-象屿天宸雅颂楼盘详情-周边配套-售楼处电话
扫描到手机,新闻随时看
扫一扫,用手机看文章
更加方便分享给朋友
闵行·新浦江中心 6站前滩
象屿前滩南TOD公园墅区
上海「象屿·天宸雅颂」售楼处电话☎:400-833-6309【已认证】
在售户型图丨项目介绍丨最新房源丨周边配套丨详细解答〢
◆开发商营销中心诚挚邀请,一键预约,尊享内部独家折扣!匠心独运的精品项目,恭候您的品鉴与选择。
开发商电话☎:400-833-6309【已认证】
售楼处电话☎:400-833-6309【已认证】
营销中心电话☎:400-833-6309【已认证】
✅ 本项目暂不接受临时到访,过来参观样板房请记得提前来电预约!
✅ 为您安排楼盘现场销售全程接待并讲解,给您更贴心的看房体验!
欢迎来电咨询楼盘、线上预约看房可享专属活动哦~~
➤➤➤➤VIP贵宾置业〢欢迎来电咨询〢品鉴!!
少量建面约107-140㎡3-4房!
约2500㎡会所+约 3000㎡架空层
均价60970元/㎡!总价600级
售楼处线上火热预约中!
象屿·天宸雅颂售楼处电话☎:400-833-6309【已认证】
在600万级别新房中,买房盯着积分上是基本操作。
从2020年至今,浦锦板块一直逢开必爆,2020年入市的保利锦上在没有积分制的年代创下千人摇的神迹;之后的缦玥、大华星越都次次触发积分!
数据源自网络统计,示意图仅供参考
象屿·天宸雅颂售楼处电话☎:400-833-6309【已认证】
看遍上海600万级别新房,「象屿天宸雅颂」这个项目必看!
一、在同级别新房中,配套全面达到天花板,自住宜居性拉满
二、一江一河+浦江新中心顶层规划支持,与城市共成长
三、神级户型首现上海外环,惊喜超越想象
「象屿天宸雅颂」东侧直线距离约200米就是8号线地铁站,南侧和西侧是国家4A级浦江郊野公园。绝佳的选址给项目带来的非常好的宜居属性。
「象屿天宸雅颂」的自然配套属性满级,西侧和南侧与上海首个成为国家4A级旅游景区的郊野公园——浦江郊野公园无缝耦合。(在浦江郊野公园的地图中,象屿·天宸雅颂算在了公园范围内)
图源网络,示意图仅供参考
浦江郊野公园规划总面积15.29平方公里,相当于11个世纪公园。这里有“活力森林”、“奇迹花园”、“柳鹭田园”、“森林游憩”、“滨江漫步”五大主题区,是XHS上火热的遛娃公园圣地。
图源网络,示意图仅供参考
作为新浦江中心首发项目,象屿前滩南TOD项目将主动融入到新浦江中心的规划与建设中,打造灵感与森态共栖、快链与漫步一体、烟火与精致并蓄、艺术与人文浸润的PARKTOD样板。
天空之镜:精致铝板装饰+通透大窗的美学立面设计,打造弧面窄框艺术之境;
流线韵律:弧线同频超流体美学,让建筑流淌出黄浦江的奔腾韵律全景视角;
全局视角:创新270°的弧面转角建筑美学,营造多感官的沉浸式全景视野;
宋式美学:取古韵予现形,转译东方三段式建筑形态,打造“宋式极简”风格。
林岛漫步围绕中央景观,以现代艺术手法,打造森林岛屿景观循水归岸呼应外部天然水系,内部设置特色水景,串联不同节点闲庭雅致以树木、水系与局部连廊体系融合,共同组建起社区与居所之间的联通介质。
象屿·天宸雅颂售楼处电话☎:400-833-6309【已认证】
听说装标会很高,户型合规下应送尽送,飘窗多,转角飘窗、收纳体系做的很全,地板房间鱼骨拼,客厅90×180的大面尺寸,智能交付,厨卫品牌更好,背景墙从进门收纳一直做到客厅,包含岩板+一部分造型;
另外配置下沉式庭院、约2500㎡地下会所以及约3000㎡主题架空层;其中地下会所包含泳池、健身房、瑜伽室、水吧区、私宴厅等!
象屿·天宸雅颂售楼处电话☎:400-833-6309【已认证】
象屿·天宸雅颂售楼处电话☎:400-833-6309【已认证】
象屿·天宸雅颂售楼处电话☎:400-833-6309【已认证】
4月29日,上海楼市目光聚焦南上海,「象屿·天宸雅颂」在万众期待中迎来盛大首开。房源一经推出,便引发抢购热潮,捷报频传,首开即实现热罄,以现象级热度成为上海高端住宅市场当之无愧的焦点,重新定义了高端人居的价值标准。所有的潜心营造,只为今天盛启。
象屿·天宸雅颂售楼处电话☎:400-833-6309【已认证】
首开当日现场人潮涌动,人声鼎沸等候区座无虚席,火热的场面印证着高品质住宅的强大号召力。据了解,首开去化率91.9%,总销售金额达10.2亿。这场开盘盛典,不仅彰显了项目的强大吸引力,更让「象屿·天宸雅颂」成为南上海楼市焦点,开启品质人居新篇。
象屿·天宸雅颂售楼处电话☎:400-833-6309【已认证】
象屿·天宸雅颂售楼处电话☎:400-833-6309【已认证】
象屿·天宸雅颂售楼处电话☎:400-833-6309【已认证】
象屿·天宸雅颂售楼处电话☎:400-833-6309【已认证】
象屿·天宸雅颂售楼处电话☎:400-833-6309【已认证】
最新消息!象屿·天宸雅颂以千万级配置重塑南上海人居天花板!在售建面约107-140㎡3-4房!均价60970元/㎡;600万级预算越级享受千万级豪宅品质;约2500㎡会所+约 3000㎡架空层;售楼处线上火热预约中!
象屿·天宸雅颂售楼处电话☎:400-833-6309【已认证】专业销售一对一咨询
耐心等待官方VIP客户经理回电
专业销售一对一咨询
耐心等待官方VIP客户经理回电
一房一价表如下:
专业销售一对一咨询
象屿·天宸雅颂售楼处电话☎:400-833-6309【已认证】
耐心等待官方VIP客户经理回电
高层户型图如下:
象屿·天宸雅颂售楼处电话☎:400-833-6309【已认证】
象屿·天宸雅颂售楼处电话☎:400-833-6309【已认证】
专业销售一对一咨询
耐心等待官方VIP客户经理回电

闵行·新浦江中心 6站前滩
象屿前滩南TOD公园墅区
上海「象屿·天宸雅颂」售楼处电话☎:400-833-6309【已认证】
在售户型图丨项目介绍丨最新房源丨周边配套丨详细解答〢
◆开发商营销中心诚挚邀请,一键预约,尊享内部独家折扣!匠心独运的精品项目,恭候您的品鉴与选择。
开发商电话☎:400-833-6309【已认证】
售楼处电话☎:400-833-6309【已认证】
营销中心电话☎:400-833-6309【已认证】
✅ 本项目暂不接受临时到访,过来参观样板房请记得提前来电预约!
✅ 为您安排楼盘现场销售全程接待并讲解,给您更贴心的看房体验!
欢迎来电咨询楼盘、线上预约看房可享专属活动哦~~
➤➤➤➤VIP贵宾置业〢欢迎来电咨询〢品鉴!!
少量建面约107-140㎡3-4房!
约2500㎡会所+约 3000㎡架空层
均价60970元/㎡!总价600级
售楼处线上火热预约中!

建面128㎡样板间展示如下象屿·天宸雅颂售楼处电话☎:400-833-6309【已认证】
象屿·天宸雅颂售楼处电话☎:400-833-6309【已认证】
象屿·天宸雅颂售楼处电话☎:400-833-6309【已认证】
象屿·天宸雅颂售楼处电话☎:400-833-6309【已认证】
象屿·天宸雅颂售楼处电话☎:400-833-6309【已认证】
象屿·天宸雅颂售楼处电话☎:400-833-6309【已认证】
象屿·天宸雅颂售楼处电话☎:400-833-6309【已认证】
象屿·天宸雅颂售楼处电话☎:400-833-6309【已认证】
象屿·天宸雅颂售楼处电话☎:400-833-6309【已认证】专业销售一对一咨询
耐心等待官方VIP客户经理回电
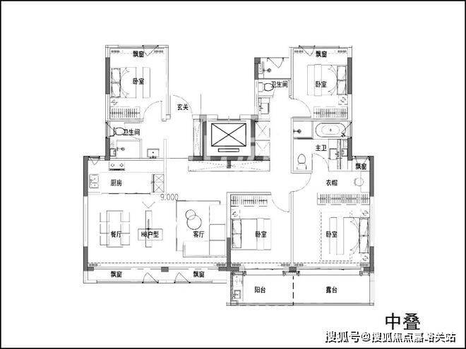
叠墅户型图如下:(过程稿,以开发商发布为准)
象屿·天宸雅颂售楼处电话☎:400-833-6309【已认证】
象屿·天宸雅颂售楼处电话☎:400-833-6309【已认证】
美学建筑立面:从立面、材质、景观、会所等产品配置来看,象屿·天宸雅颂的标准和当下市区千万豪宅几无区别。超高窗墙比、超大比例弧形铝板线条搭配上弧面窄框,大量弧形玻璃,灵动通透,缔造浦江美学地标。
示意图,仅供参考象屿·天宸雅颂售楼处电话☎:400-833-6309【已认证】
别墅设计巧妙融合宋代美学精髓,用极简线条勾勒东方意境。
示意图,仅供参考
丰盛会所空间:约2500㎡莫奈花园会所,包含泳池、健身房、瑜伽室、水吧台、私宴厅等“多元生活集”,满足全龄段业主的精致生活需求。
示意图,仅供参考
另外,约三分之二的楼栋都配有架空层,将打造为共计约3000㎡泛会所空间,最高层高达4.5米,营造全龄共享的丰盛聚场。
示意图,仅供参考
总体约5500m²的会所+泛会所的规模,在上海豪宅产品中也排得上号。
归家风雨连廊:采用当下豪宅新盘才运用的风雨连廊,打造风雨无阻的归家体验的同时,也连接着社区核心景观节点和功能空间,大大增加小区景观的空间体验。
示意图,仅供参考
在景观打造上,在日常所及之处用自然绿意点缀创造出都市中的“浮岛美学园林”,层层递进的秩序之美,传递生活与归心的仪式感。
示意图,仅供参考
浦江镇作为闵行区的重要片区,近年来的发展可谓是日新月异,市场潜力和空间巨大。根据浦江镇2025规划,象屿浦江镇项目地块旁的沈杜公路地铁站未来将作为核心,打造“浦江新中心”——创新社区总面积为 3.52 平方公里。通过闵东工业园区的转型升级,植入区域级的公共服务设施,集聚高端服务、创新功能, 发展成为大浦江地区的公共服务和公共活动中心。
象屿浦江镇项目坐落于闵行浦江镇,距离黄浦江约5.6公里。东侧是规划商业用地,未来可能会打造TOD商业综合体,潜力无限。
象屿·天宸雅颂售楼处电话☎:400-833-6309【已认证】交通方面,项目距离8号线沈杜公路站步行约350-600米左右,可快速直达前滩、陆家嘴等核心区域,也算是项目一大卖点;通过浦星公路可直接上南北高架,自驾出行也十分便捷!
象屿·天宸雅颂售楼处电话☎:400-833-6309【已认证】
商业方面,项目高层东侧规划约15万方的商业,另外距离项目约3.3公里有浦江城市生活广场、绿地乐和城,约3.9公里有万达广场,约4.4公里有浦江欢乐颂等商业!象屿·天宸雅颂售楼处电话☎:400-833-6309【已认证】
教育方面,项目周边规划有一幅幼儿园用地,现有教育资源有浦江镇第二小学、第二中学;象屿·天宸雅颂售楼处电话☎:400-833-6309【已认证】
象屿·天宸雅颂售楼处电话☎:400-833-6309【已认证】
另外在项目北侧规划有一所民办学校,该校舍建成后,将迁入上海市民办协和尚音学校(九年一贯制)、上海闵行协和海富幼儿园,由协和教育中心承办!
医疗方面,距离项目约4公里有仁济医院南院以及复旦大学附属眼耳鼻喉科医院!
象屿·天宸雅颂售楼处电话☎:400-833-6309【已认证】
生态方面,项目周边被浦江郊野公园环绕,低密宜居!
闵行浦江「象屿·天宸雅颂」加推建面约107-140㎡3-4房!均价6.1万/m²!
闵行·新浦江中心 6站前滩
象屿前滩南TOD公园墅区
上海「象屿·天宸雅颂」售楼处电话☎:400-833-6309【已认证】
在售户型图丨项目介绍丨最新房源丨周边配套丨详细解答〢
◆开发商营销中心诚挚邀请,一键预约,尊享内部独家折扣!匠心独运的精品项目,恭候您的品鉴与选择。
开发商电话☎:400-833-6309【已认证】
售楼处电话☎:400-833-6309【已认证】
营销中心电话☎:400-833-6309【已认证】
✅ 本项目暂不接受临时到访,过来参观样板房请记得提前来电预约!
✅ 为您安排楼盘现场销售全程接待并讲解,给您更贴心的看房体验!
欢迎来电咨询楼盘、线上预约看房可享专属活动哦~~
➤➤➤➤VIP贵宾置业〢欢迎来电咨询〢品鉴!!
少量建面约107-140㎡3-4房!
约2500㎡会所+约 3000㎡架空层
均价60970元/㎡!总价600级
售楼处线上火热预约中!
声明:本文由入驻焦点开放平台的作者撰写,除焦点官方账号外,观点仅代表作者本人,不代表焦点立场。
