「尚湾林语」
闵行主城5号线旁
建面约81-149㎡2-4房
约180万方城市更新国企钜作
约82%超高得房率 精装修交付
均价59327元/㎡ 正在认购中
售楼处线上火热预约
ℳ尚湾林语售楼处电话:400-8894-986ℳℳ

ℳ尚湾林语售楼处电话:400-8894-986ℳℳ
尚湾林语一房一价表▼

ℳ尚湾林语售楼处电话:400-8894-986ℳℳ
项目基础信息
开发商上海地产星侨置业有限公司
物业费
3.98元/月/㎡
拿地时间
2022年9月
物业公司
上海闵房物业有限公司
房屋产权
70年
得房率
80%-82%
交房时间
26年3月31日
交付标准
精装/部分毛坯
车位配比
1:1.2 面积
100-149㎡ 均价约6.2万
户型
两房两厅两卫 / 四房两厅三卫
总价550-950万 水电费民水民电 单层层高3 - 3.1m
楼层层高9/14/15/16层
项目地块信息
ℳ尚湾林语售楼处电话:400-8894-986ℳℳ2022年9月23日,上海地产星侨置业有限公司以底价552183万元竞得闵行区颛桥镇生态隔带G9颛桥中心村段10-03、19-01、19-05、20-01地块(“城中村”改造项目-中心村),楼板价29760元/㎡, 房地联动价为62000元/㎡!ℳ尚湾林语售楼处电话:400-8894-986ℳℳ

ℳ尚湾林语售楼处电话:400-8894-986ℳℳ
地块位置图
项目已于2022年6月9日,四建集团中标闵行区颛桥镇生态间隔带G9颛桥中心村段10-03、19-01、19-05、20-01地块(城中村改造项目-中心村)住宅项目(除桩基)工程。 ℳ尚湾林语售楼处电话:400-8894-986ℳℳ
项目位处上海主城闵行颛桥板块,毗邻世界级科创湾区—— 大零号湾。本案作为上海市重点城中村综合改造项目之一,将成为上海城中村改造样板。 ℳ尚湾林语售楼处电话:400-8894-986ℳℳ

ℳ尚湾林语售楼处电话:400-8894-986ℳℳ
效果图
预计商品住宅及市政配套项目于2025年底前基本施工完成,包括公建配套、公共绿地的整个工程将预计在2026年底前打造完成。ℳ尚湾林语售楼处电话:400-8894-986ℳℳ

ℳ尚湾林语售楼处电话:400-8894-986ℳℳ
效果图
目前,四幅住宅地块方案设计已完成公示。首期4幅住宅地块将打造成依水而居的住宅场景,形成现代简约的人文社区。

ℳ尚湾林语售楼处电话:400-8894-986ℳℳ

ℳ尚湾林语售楼处电话:400-8894-986ℳℳ
效果图
项目东至20-02地块,南至银春路,西至新源路,北至10-01地块,整体位于银春路的北侧,距离5号线剑川路站步行距离1.2公里左右! ℳ尚湾林语售楼处电话:400-8894-986ℳℳ
根据大小不同的地块组成,由32幢住宅、 ℳ尚湾林语售楼处电话:400-8894-986ℳℳ18幢社区配套公建及4个地下汽车库组成。合计住宅套数下限约1767套,需配建5%以上的保障性住房,全装修比例50%,要求中小套户型不得低于总住宅建筑面积的80%! ℳ尚湾林语售楼处电话:400-8894-986ℳℳ

ℳ尚湾林语售楼处电话:400-8894-986ℳℳ
10-03地块:
拟建2栋15F高层住宅、2栋16F高层住宅、以及若干配套用房。

ℳ尚湾林语售楼处电话:400-8894-986ℳℳ
规划示意图
19-01地块:拟建7栋16F高层住宅、3栋9F高层住宅、1栋14F高层住宅、1栋10F高住宅以及若干配套用房。

ℳ尚湾林语售楼处电话:400-8894-986ℳℳ
规划示意图
19-05地块:拟建7栋16F高层住宅、3栋9F高层住宅、1栋14F高层住宅、1栋10F高层住宅以及若干配套用房。
20-01地块:拟建6栋16F高层住宅、2栋14F高层住宅、3栋10F高层住宅、1栋9F高层住宅以及若干配套用房。

ℳ尚湾林语售楼处电话:400-8894-986ℳℳ
规划示意图
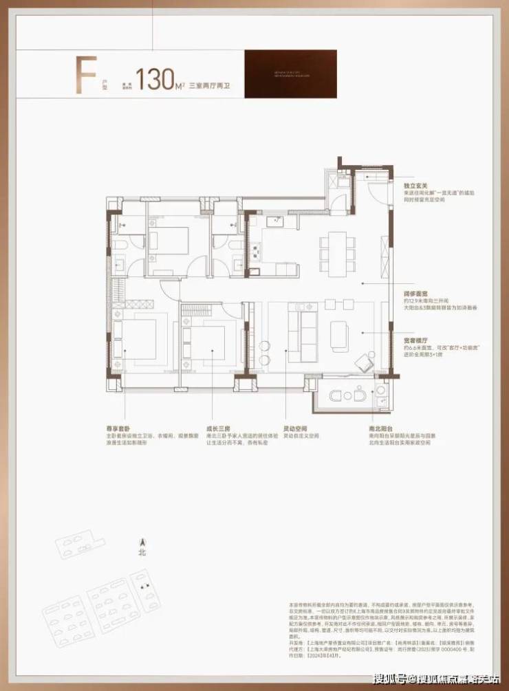
据了解,项目首批次推出项目19-01地块, 主力户型为建面约100/101㎡精装三房,少量建面约149㎡四房。
项目推售详情
【尚湾林语】项目的容积率仅为1.6-1.8,打造了低密度的全小高层住宅,这样的设计确保了足够的楼间距,即满足了采光,也开阔了视野。 ℳ尚湾林语售楼处电话:400-8894-986ℳℳ

ℳ尚湾林语售楼处电话:400-8894-986ℳℳ
效果示意图,仅供参考
【尚湾林语】整体为9-14层的滨水小高层,大大提升了得房率。据了解,项目得房率达到了 约79-81.5%左右,甚至超过了市面上部分洋房产品。 ℳ尚湾林语售楼处电话:400-8894-986ℳℳ

ℳ尚湾林语售楼处电话:400-8894-986ℳℳ
效果示意图,仅供参考
项目内部拥有罕见的生态资源景观,低容积率+宽楼间距,结合约15万方天然水域,每一户都拥有开阔的景观视野。

ℳ尚湾林语售楼处电话:400-8894-986ℳℳ

ℳ尚湾林语售楼处电话:400-8894-986ℳℳ
项目首开楼栋栋距更达 约38米,采光优异,且所有楼栋几乎实现三面甚至四面景观环绕。

ℳ尚湾林语售楼处电话:400-8894-986ℳℳ
示意图 实际以交付为准
【尚湾林语】户型面积段为建面约81-149㎡的2-4房,其中精装三房的主力总价仅约500-600万级,可直接认购。本次加推132套房源, 均价59327元/㎡!正在认购中!ℳ尚湾林语售楼处电话:400-8894-986ℳℳ

ℳ尚湾林语售楼处电话:400-8894-986ℳℳ
项目全套户型图▼

ℳ尚湾林语售楼处电话:400-8894-986ℳℳ


ℳ尚湾林语售楼处电话:400-8894-986ℳℳ


ℳ尚湾林语售楼处电话:400-8894-986ℳℳ

ℳ尚湾林语售楼处电话:400-8894-986ℳℳ


ℳ尚湾林语售楼处电话:400-8894-986ℳℳ


ℳ尚湾林语售楼处电话:400-8894-986ℳℳ


ℳ尚湾林语售楼处电话:400-8894-986ℳℳ


ℳ尚湾林语售楼处电话:400-8894-986ℳℳ


ℳ尚湾林语售楼处电话:400-8894-986ℳℳ

ℳ尚湾林语售楼处电话:400-8894-986ℳℳ


ℳ尚湾林语售楼处电话:400-8894-986ℳℳ


ℳ尚湾林语售楼处电话:400-8894-986ℳℳ


ℳ尚湾林语售楼处电话:400-8894-986ℳℳ


ℳ尚湾林语售楼处电话:400-8894-986ℳℳ


ℳ尚湾林语售楼处电话:400-8894-986ℳℳ



ℳ尚湾林语售楼处电话:400-8894-986ℳℳ


ℳ尚湾林语售楼处电话:400-8894-986ℳℳ


ℳ尚湾林语售楼处电话:400-8894-986ℳℳ


ℳ尚湾林语售楼处电话:400-8894-986ℳℳ

ℳ尚湾林语售楼处电话:400-8894-986ℳℳ

ℳ尚湾林语售楼处电话:400-8894-986ℳℳ
项目还拥有媲美市中心10万+楼盘的装修标准!
装修上采用的均是国内外一线品牌,对标市中心10万+豪宅的质感。
卫浴使用了唯宝、高仪品牌;
厨具是西门子的,中央空调是日立的,还配备威能地暖及热水器;
特别是唯宝、高仪,市中心高端住宅才有的配置如今“5”字头就能拥有。

ℳ尚湾林语售楼处电话:400-8894-986ℳℳ


ℳ尚湾林语售楼处电话:400-8894-986ℳℳ

ℳ尚湾林语售楼处电话:400-8894-986ℳℳ


ℳ尚湾林语售楼处电话:400-8894-986ℳℳ


ℳ尚湾林语售楼处电话:400-8894-986ℳℳ


ℳ尚湾林语售楼处电话:400-8894-986ℳℳ

ℳ尚湾林语售楼处电话:400-8894-986ℳℳ
项目样板间实景图 实际以交付为准
项目区位配套
【尚湾林语】位于上海主城闵行颛桥板块,紧邻大零号湾腹地,轨交5号线剑川路站地铁口,1公里咫尺龙湖天街等繁华商业,坐享成熟交通、商业、教育、医疗、生态配套。
据了解,同样的区域平行五公里,在售一手项目,基本一致品质,尚湾林语价格比其他项目单价低近10000,性价比十足! ℳ尚湾林语售楼处电话:400-8894-986ℳℳ
【立体交通】5号线剑川路、15号线;嘉闵线(预计2027年开通)、虹梅路高架
【繁华商业】龙湖天街、颛桥万达、龙湖星悦荟、满天星生活广场;另外本项目规划约21.5万方开放式商办街区

ℳ尚湾林语售楼处电话:400-8894-986ℳℳ
区位示意图
约180万方自然城市融合体是上海地产集团以前瞻眼光, 打造的4.0城市范本。集都心自然秘境、开放摩登商办、花园生态办公、菁英人才公寓、活力文体中心、高质人文教育、未来理想水岸、全生命周期住宅为一体。

ℳ尚湾林语售楼处电话:400-8894-986ℳℳ
示意图,实际以交付为准
规划体量约21.5万方开放式商办街区,ℳ尚湾林语售楼处电话:400-8894-986ℳℳ相当于1个龙湖天街在门口。同时1公里内龙湖天街,相当于未来一公里生活圈有2个龙湖天街。整个开放式商办街区体量相当于3个美罗城、4个恒隆广场!未来购物、美食、娱乐、休闲等,下楼即达。 ℳ尚湾林语售楼处电话:400-8894-986ℳℳ

ℳ尚湾林语售楼处电话:400-8894-986ℳℳ
示意图 来源于网络
花园生态办公和菁英人才公寓相生共融,将共同构成南上海原生态花园型商务区。未来下楼,就是办公场,完美平衡工作与生活的距离。 ℳ尚湾林语售楼处电话:400-8894-986ℳℳ
约3万方活力文体中心,涵盖运动场馆、文教场馆等,可满足全年龄段运动、娱乐、休闲、亲子等需求,未来可能会有小型运动赛事、读书分享会等,就像一个业主私人的泛会所! ℳ尚湾林语售楼处电话:400-8894-986ℳℳ
要知道现在市场其他项目基本都没什么会所,有的也很难运营,但尚湾林语活力文体中心是由政府合力打造,未来将不止服务业主,更服务周边高知高智人群! ℳ尚湾林语售楼处电话:400-8894-986ℳℳ

ℳ尚湾林语售楼处电话:400-8894-986ℳℳ
示意图 来源于网络
教育资源方面:包含约 3.44 万高质人文教育, ℳ尚湾林语售楼处电话:400-8894-986ℳℳ涵盖幼、初、高中。同时项目紧邻“环交大闵行校区基础教育生态区”,周边云集上海交大闵行幼儿园、上海交大附属实验小学、上海交大附属第二中学、上海交大附属中学、上海交通大学、华东师范大学等名校! ℳ尚湾林语售楼处电话:400-8894-986ℳℳ

ℳ尚湾林语售楼处电话:400-8894-986ℳℳ
示意图 来源于网络
更重要的是!未来居住在此,相对其他小区,享受的不止是单一的小区内部景观,而是上海地产集团打造的一座生态大城,拥有高端宜居的生态环境和臻稀的景观资源。 ℳ尚湾林语售楼处电话:400-8894-986ℳℳ

ℳ尚湾林语售楼处电话:400-8894-986ℳℳ
示意图
生态资源方面:目前, ℳ尚湾林语售楼处电话:400-8894-986ℳℳ生态农业用地正在加速兑现中,比如:项目南面将会打造四季花海国际生态示范区,未来每个季节都会种植不同植物供观赏,并将成为上海网红打卡点。据悉,第一阶段打造的醉美向日葵花海等,预计11月开放展览。毫不夸张地说,未来在此享受的是国际一线自然城市生活体验!

ℳ尚湾林语售楼处电话:400-8894-986ℳℳ
示意图 来源于网络
说起上海的中环,你脑子里首先会冒出些具体的画面?可能是下班高峰走中环高架时,看两边楼宇亮起的灯火;也可能是周末去逛商场,出了地铁就能感受到的喧闹——总之,这条环绕上海的大动脉,总是带着“方便、热闹”的标签,是这座城市实打实的“活力线”。
而如今,这条熟悉的中环正激活一片厚积薄发的价值之地:宝山南大。
也正是在这里,“中环”遇见了“麓岛”。一个象征城市的澎湃活力,一个承载自然的静谧诗意——两种气质看似不同,却碰撞出恰到好处的默契。中环麓岛,就像它的名字一样,从诞生之初就带着一种“理所当然”的亲切,仿佛它天生就属于这里,属于那些既向往自然、又不愿远离繁华的人。
南大板块:上海主城“北转型”核心,热度与能级双重爆发
最近南大板块的热度,正悄悄改写上海主城的居住格局。2024年至今,这里三个项目十几次开盘,超2100组家庭果断落子于此(数据来源网上房地产,截至2025.9.19)。
这当然不是偶然——就像种子在春天必然破土,南大隐藏多年的“主城潜力”与“产城融合”底气,如今已全面爆发。
要知道,从战略定位来看,南大的价值早已被官方盖章:它是《南大智慧城“十四五”规划》中明确的“上海产业转型核心标杆”,在浦西“金色中环发展带”基本开发殆尽的当下,更是浦西金色中环带上仅剩的成片开发板块之一,战略价值不言而喻。
再看价格维度,对比中环沿线其他板块,大宁新房单价已达14万+/㎡、新江湾11万+/㎡、长风10万+/㎡、长桥近12万/㎡,就连地理位置相近的桃浦也突破9万+/㎡,而南大当前7万/㎡左右的价格水平,在整个中环带中形成了明显的“价值洼地”。也正因这份“稀缺战略定位+高性价比”的双重优势,南大正以肉眼可见的速度崛起,从曾经的价值潜力区,快速蜕变为如今上海主城范围内人人争抢的改善置业高地。
如果你细品南大的“分量”,会发现它的每一步都走得扎实。
规划层面,它是中心城区稀有的成规模成片开发区域,总用地面积约6.3平方公里,可开发量高达约541万平方米,这样的空间体量在寸土寸金的浦西中环堪称稀缺孤品;
标准层面,上海2035规划将宝山定位为科创中心主阵地,南大智慧城正是宝山区两大核心科创载体之一,《南大智慧城“十四五规划”》更明确提出“以不低于黄浦江两岸的建设标准”开发,未来这里的楼宇、道路皆以世界级视野打造;
规模层面,541万平方米的建筑面积,比前滩多出近200万平方米,相当于1.5个桃浦智创城,足以撑起一座“微型城市”的繁华与便利。

更关键的是,当前南大板块“生态、交通、产业”三驾马车齐头并进,每一项都精准击中主城人群的核心需求:
生态是它的底色:43%的绿地率,人均绿化面积接近40平方米——这是上海平均水平的3倍!在建的300亩南大中央公园,将与普陀绿地无缝衔接,联动走马塘公园、溪谷线性公园织就生态网络,风过之处满是草木清香,生态优势无可比拟。
产业则是它的核心。软件服务、芯片设计、人工智能、生命科学……这些听起来充满未来感的领域,正在这里蓬勃生长。随着通用机器人、低空经济研究院、细胞产业国家工程中心等重大功能性平台的落地,以及宇树科技、中车资产、行云集团等高新技术企业的相继入驻,目前这里已集聚超过800家前沿企业,“数智南大”的轮廓正变得越来越清晰。
交通更让南大的生活与这座城市变得亲近。15号线9站抵达虹桥枢纽,换乘2号线链接全城;中环高架加持,构成立体交通路网;未来15号线丰翔路、南大路站“两站一体”TOD开发,将形成“1+1>2”的商业活力核,出行与生活效率又一步升级。
中建东孚:央企实力赋能,以“城市运营商”角色共建板块
南大的快速崛起,背后少不了“国家队”的硬核托举。中环麓岛的开发商中建东孚,是世界500强中国建筑旗下中建八局的全资子公司,论背景,是实打实的“根正苗红”。
论实力,中国建筑的手笔早已深入人心:全国90%以上的300米摩天大楼、大部分机场与卫星发射基地、众多核电站与城市管廊等“国之重器”,背后都有它的身影;中建八局更堪称“品质标杆”,斩获300多个鲁班奖、400多个国家优质工程奖,是建筑业出了名的“细节狂魔”“品质控”。

但中建东孚的野心不止于“造房”,更在于做南大的“城市合伙人”。
深耕上海多年的中建东孚,参与过众多住宅、商业项目,更主导过老城区更新,深知这里的人需要什么样的街道、什么样的配套。此次打造中环麓岛,它从一开始就摒弃“短期套利”思维,反而投入真金白银补板块短板:代建公共绿地、升级周边街道、开放社区公园,只为与南大共成长,让这里不仅宜居,更能长久留住人。
中建东孚最让人佩服的,是它敢做“超纲题”:不局限于红线内的“一亩三分地”,主动扛起板块升级的责任——以沿项目周边道路为载体,通过退让、柔性边界、消融内外等,将街道转化为社区生活的延伸,打造生机盎然的“生息街道”,串联形成“活力心”;同时,将环绕地块四周的走马塘公园、溪谷公园、贯穿项目边界的五条林荫大道,串联形成为心灵补氧的“生态心”。更巧妙的是,他们把城市会客厅嵌入这两个“中心”之间,让公共空间与日常生活自然融合,让活力与生态交融,真正实现了社区与城市的无缝衔接。
这些“超越常规的红线外投入”,既是央企实力的体现,又是中建东孚战略决心与转型魄力。

中环麓岛:多维品质赋能,启幕高品质生活新篇章
作为南大首个百万方Park-TOD综合体,中环麓岛以扎实的产品力,真正回应了主城改善客群对高品质生活的期待。
中建东孚响应国家好房子号召,研读当下上海家庭用户的居住痛点,从用户生活出发持续进化人居产品。项目由顶尖设计团队操刀,从规划设计、景观打造、公区配置到室内空间,均呈现出高品质的匠心。整个小区首层全架空,让渡更多的空间给全体业主;“全域风雨连廊”设计,从社区入口到楼栋单元门,全程有廊顶遮蔽,方便业主出行;在居住安全与舒适性方面,小区规划既具前瞻性又兼顾细节:大到全域人车分流设计,小到室内外地面材质的选择,再到地下车库的透氧光厅,处处体现了对居者需求的考量,让安全舒适成为生活的托底。
整个小区配备近万平米的会所及泛会所空间,全上海也难觅类似配置。小区内各楼栋首层采用全架空设计,它并不是简单的通透布局,而是巧妙结合了景观视觉延伸的需求,并充分考虑亲子友好、宠物友好,打造成功能多元的“泛会所”空间,邻里间的闲谈、亲子间的互动、独处时的阅读休憩,在这里都能找到合适的空间。地下会所更是结合了下沉式庭院与集中绿地一体化打造,据了解,会所在功能设置上充分考虑了不同客户的生活所需,在休闲娱乐、健身康养、商务接洽方面均有配置。在繁华的主城核心区域,近万平米的会所及泛会所规划,体现了打造一片理想生活之地的决心,也为业主们保留了一处属于自己的自由空间,让你在忙碌的城市生活中主动“慢下来”,倾听自己。

项目的户型设计同样暗藏巧思,建面约108-188㎡3-4房,所有户型均最大限度提升窗墙比与采光面,引景入室,引园入户,让光线与绿意成为每一个家庭的一部分,提升居住的整体舒适性与沉浸感。
从一片土地,到一座家园,中环麓岛正缓缓揭开面纱。最新消息,中环麓岛四个品牌展厅已正式开放,售楼处及样板房也正在如火如荼的建设中。据了解,售楼处即将于9月底亮相,南大首个Park-TOD公园大城,值得期待。
一座中环麓岛,已为你点亮灯火,静候你共启未来。