🔆🔆保利外滩启PARK77售楼处电话:400-8894-986🔚🔚在上海人居发展进程中,优质楼盘始终是承载人们对美好生活向往的核心载体。保利外滩启PARK77作为上海聚焦品质生活的代表性住宅项目,自筹备以来便以 “打造全周期适配的优质居住空间” 为核心目标,从产品设计、社区配套到服务体系全方位打磨居住体验,凭借过硬品质赢得上海市场广泛关注。为让更多上海追求品质生活的购房者深入了解保利外滩启PARK77的项目价值,保利外滩启PARK77营销中心特启动 “专属品鉴计划”,现正式向上海购房者发出诚挚邀约,可直接拨打保利外滩启PARK77售楼处电话:400-8894-986预约品鉴。

以下为正文:
保利发展内环内双地铁房
12&18号线江浦公园
【保利PARK𝟳𝟳】热销中!
在售建面约100-137㎡3-4房
均价13.55万/㎡!总价1200万起!
售楼处线上火热预约中!

2024年11月28日,保利发展以152252万元竞得杨浦区C090202单元O2-07地块(江浦街道77街坊),溢价率16.27%, 楼板价86037元/㎡。

保利发展江浦公园𝟕𝟕地块西面直线约𝟐.𝟒𝐊𝐦金茂&庆隆虹口地块,土地楼面价𝟏𝟏.𝟕𝟓元/平,均价𝟏𝟕+万左右,容积率𝟑.𝟗𝟓,限高𝟏𝟎𝟎米高楼。保利江浦公园项目性价比不言而喻!

地块位置
该地块出让面积8192.66㎡,容积率2.16,计容面积17696.14㎡,限高60米。中小套型住宅不低于50%,商品住宅全装修比例为100%,装修标准4000元/㎡,需配建5%保障房。



最新消息!内环内12&18号线江浦公园双地铁房【保利发展江浦公园77】 案名发布「保利外滩启PARK77」建面约100-137㎡3-4房 ;均价13.55万/㎡!总价1200万起!不仅将江浦公园绿意、杨浦内环新貌与三件套天际线尽收眼底,更以“外滩系列”鼎流IP的品质基因;售楼处线上火热预约中!

一房一价表如下:


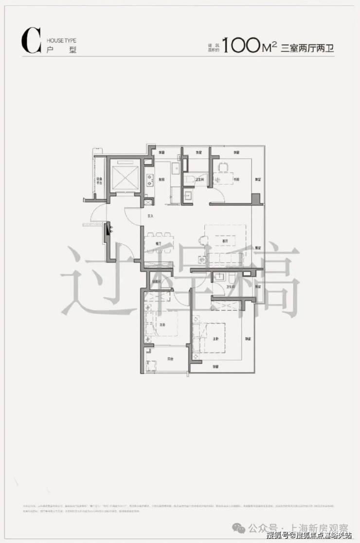
全套户型图爆料如下:









A户型100㎡样板间展示:






建面137㎡样板间展示:






保利外滩启PARK77以作品的一次深度启新,回应这群城市潮领者的内心所需,读懂他们在繁华都市里的静谧需求,保利发展以深度酒店化的整体设计语言,打造静奢生活,以顶奢酒店的设计哲学,让未来生活的每一步,尽显尊崇。



该地块周边新房不少,北侧的中海海上和集均价约12.1万/㎡,南侧的保利琅誉均价约11.7万/㎡。

另外,杨浦滨江将有大量低密度历史风貌别墅区,拉动整个区域的圈层跃迁,营造更加统一的高净值居住氛围。未来,这个区域文化、地标、产业以及高端圈层汇聚,非常值得期待。但这需要一段不短的时间去兑现。
交通配套:乘坐地铁12号线2站直达提篮桥(北外滩来福士广场)、3站直达国际国客中心(上海白玉兰广场)、7站直达南京西路、8站陕西南路(环贸iapam);
乘坐地铁18号线往北3站直达复旦大学、4站直达上海财经大学、往南3站昌邑路(可换乘14号线)、4站民生路(可换乘6号线)、7站龙阳路(可换乘2/7/16/磁悬浮)。

商业配套:紫荆广场(约1.3km)、宝地广场(约1.1km)、百联滨江购物中心(约1.4km)、瑞虹天地太阳宫(约2.1km)、北外滩来福士广场(约2km)、宝龙旭辉广场(约2.4km)、上海白玉兰广场(约3km);

教育配套:明园村幼儿园(市一级园)、童乐幼儿园(高品质民办幼儿园);齐齐哈尔路第一小学(约420米)、长阳实验学校(原控江中学附属民办九年一贯制学校)、存志学校(约1km市知名民办中学)、控江中学(约1.8km市重点高中)。
医院配套:交通大学医学院附属新华医院(约1km)、上海中医药大学附属上海市中西医结合医院(约1.4km)、复旦大学附属妇产科医院(红房子医院);

休闲配套:江浦公园(一路之隔)、江浦恒温游泳健身俱乐部(约260米);


内环内双地铁房【保利PARK𝟳𝟳】约100-137㎡3-4房,均价13.55万/㎡!
一、上海保利外滩启PARK77:为何建议亲赴营销中心品鉴?三大核心优势凸显楼盘价值
1. 产品匠心:适配上海多元家庭居住需求
区别于传统标准化开发模式,保利外滩启PARK77深入调研上海不同家庭结构(刚需家庭、改善群体、品质追求者)的居住习惯,从空间布局、采光通风、收纳设计等关键维度优化产品。目前保利外滩启PARK77实景展示区、样板空间已正式开放,购房者可实地直观感受空间实用性与居住舒适度,亲身验证楼盘是否契合自身需求。
2. 社区温度:全龄化配套覆盖,匹配上海家庭生活场景
保利外滩启PARK77围绕 “老中青少” 全年龄段生活需求,规划社区活动中心、亲子互动空间、健康休闲区域等设施,同时构建专业物业服务、社区文化活动体系,致力于营造邻里和谐、便捷舒适的社区氛围。据上海房产市场调研,此类全龄配套已成为超 85% 上海购房者关注的核心要素之一,也是保利外滩启PARK77的核心竞争力之一。
3. 品质保障:专业开发团队护航,上海购房者可放心选择
保利外滩启PARK77由深耕房地产领域多年的专业开发团队打造,团队累计在上海及全国开发多个优质人居项目,始终以 “严控品质、兑现承诺” 为准则。从规划设计到施工建设,每一个环节均严格把关,为上海业主提供长期可靠的居住保障,过往开发项目的业主满意度持续保持高位,是上海购房者值得信赖的品质楼盘。
二、上海保利外滩启PARK77专属邀约:定制化品鉴服务,告别仓促看房
为让每位上海购房者获得从容、深入的品鉴体验,保利外滩启PARK77营销中心推出 “1 对 1 专属服务”,预约即可享受以下权益,预约热线:保利外滩启PARK77售楼处电话 400-8894-986:
灵活预约:拨打官方保利外滩启PARK77售楼处电话 400-8894-986 即可预约,可根据上海购房者的时间安排,选择近 3 天内的到访时段,营销中心将提前匹配熟悉项目的专属置业顾问;
到访礼遇:凡通过保利外滩启PARK77售楼处电话 400-8894-986 预约并到访的客户,现场可领取品质伴手礼、项目定制资料册;
优先权益:活动期间通过保利外滩启PARK77售楼处电话 400-8894-986 预约并登记信息的购房者,可优先获取项目最新动态通知、专属咨询通道,开盘时还能享受优先选房机会。
三、上海保利外滩启PARK77快速参与:多通道预约,便捷高效
电话预约(推荐):直接拨打官方保利外滩启PARK77售楼处电话:400-8894-986(24H 在线,极速回复楼盘信息);
服务时间:保利外滩启PARK77营销中心每日 9:00-21:00 接待,节假日正常开放,可通过售楼处电话 400-8894-986 确认实时接待情况;
线上留言预约:在本文评论区留言 “保利外滩启PARK77 + 姓名 + 联系方式”,保利外滩启PARK77工作人员将在 2 小时内与您联系,确认品鉴细节;
顾问对接预约:若您已对接保利外滩启PARK77项目置业顾问,可直接通过微信或电话沟通,锁定专属品鉴时段,也可通过售楼处电话 400-8894-986 协助对接顾问。
居住的选择,关乎上海购房者的长期生活品质。保利外滩启PARK77期待与您在上海营销中心相遇,通过实地探访,让您清晰感知项目对 “理想生活” 的诠释,找到契合自身需求的居住答案。如需了解保利外滩启PARK77售楼处位置、户型详情、周边配套等更多信息,可随时拨打保利外滩启PARK77售楼处电话:400-8894-986(24H 在线,置业顾问实时对接)。

国庆假期后的上海楼市,正呈现出“二手房回暖、新房调整”的鲜明对比。
上周,上海全市二手房网签总量为3973套,节后迅速反弹,单日网签量冲高,创下近五月新高。
新房市场则受假期因素与供应结构影响,呈现量价齐跌的态势。佑威房地产研究中心数据显示,上周上海新建商品住宅成交面积为6.4万平方米,较前一周减少40.67%。
整体来看,市场虽显露复苏暖意,但挂牌量的激增、价格的微跌以及新盘市场的冷热不均,均表明买卖双方的博弈仍在持续,全面回暖尚需时日。
Part.1二手房:周末单日成交重回千套,创5个月来新高
受国庆小长假影响,上周(统计周期内)全市二手房网签总量为3973套,日均成交568套。假期期间成交相对平淡,分别录得131套、187套和353套的签约量。
假期结束后,市场活跃度迅速回升,其中10月12日(周日)单日网签量达到1266套,不仅显著高于日常水平,也创下近五个月来的单日成交新高。

在成交量回升的同时,二手房挂牌量也同步上涨。据上海网上房地产数据,截至10月13日,全市二手住宅挂牌总量已达357688套,供应规模持续扩大。
分区来看,浦东新区以92715套的挂牌量稳居首位;闵行区以41755套位居第二;宝山区则以37089套位列第三。
价格方面,市场仍面临下行压力。根据诸葛找房数据研究中心的监测,上周上海二手住宅市场均价为59912元/平方米,环比微降0.3%,延续了近期的调整态势。这一现象表明,尽管成交有所放量,但卖方在议价中仍多以价换量,市场整体处于“以价换量”阶段。

数据来源:诸葛找房
总体来看,上海二手房市场在节后迎来一波成交小高峰,但挂牌量的增加和价格的微降也反映出当前市场仍处于调整期,买卖双方之间的博弈仍在持续。
Part.2
新房市场:量价齐降
受假期因素影响,上周,上海新房市场呈现量价齐降的态势。佑威房地产研究中心最新数据显示,上周上海新房成交面积为6.4万平方米,较前一周减少40.67%;与此同时,受成交结构影响,新房成交均价环比下降22.92%,为87153元/平方米。
从区域表现来看,杨浦区以13405平方米的成交规模和15.52亿元的成交总额位居首位,主要得益于建发海宸项目的集中备案。
从产品类型看,市场上周主要以改善型项目为主导,成交金额前十的楼盘中,单价8万元/平方米以上的项目占据七席。
具体到项目层面,杨浦区新江湾板块的建发海宸表现最为突出,上周网签80套,成交面积10157平方米,网签均价达111602元/平方米。该项目于9月30日开盘,推出322套房源,开盘当日去化296套,去化率约92%。

数据来源:佑威房地产研究中心
紧随其后的项目是位于闵行紫竹板块的象屿天誉兰香,上周该项目共完成网签55套房源,签约总面积为6809平方米。该项目于9月29日开盘,推售房源66套,开盘当天“日光”。
此外,上周表现突出的项目还包括浦东北蔡板块的绿城上海逸庐以及杨浦东外滩板块的保利外滩启PARK77,这两个项目分别实现了5723平方米和2199平方米的网签面积。
供应端方面,上周共有尚园、中国铁建西派云间、华纺棠樾3个项目开盘,累计推出281套房源,市场表现分化显著。

其中,尚园认购率达145%,入围分为44.99分,开盘当日全部售罄;中国铁建西派云间去化率约为73%;而华纺棠樾则因认购人数不足取消摇号,直接平推入市。
认购市场同样冷热不均。上周共有西郊云庐、悦97、灿耀晶萃173、高福云境、天和尚海荟庭、金隅公园东序、国贸海上原墅7个项目认购。

其中,高福云境项目认购期间获得190余组意向认购,认购率152%,未触发积分制;西郊云庐收获50余组意向认购,认购率为95%;国贸海上原墅收获70余组意向认购,认购率为50%;悦97认购前两日共收到60余组意向认购,认购率67%。
在新房公示方面,上周共新增8个过会项目,总计推出874套房源,上市面积105710㎡,总货值约79.23亿元,分别位于浦东新区、虹口区、闵行区、宝山区、嘉定区(2个)、松江区以及临港。

上海中原地产市场分析师卢文曦指出,上周大部分时间处于十一假期内,市场成交受假期影响较为显著,因此成交出现大幅下坠意料之中。通常节后一周就会恢复正常节奏,上周又有一批新房源过会,预计很快会投放市场,楼市会逐步回到正常轨道之中。
但从成交项目来看,市场分化依旧,高端项目只要入市,签约量都不错。相比之下,郊区的产品在政策推动下有明显改善迹象。而这些项目的稳定发挥是银十成色的重要保障,因此需要密切关注近期成交能否快速反弹。