静安苏河湾(华发仁恒苏河世纪)最新消息-苏河世纪户型图-得房率
扫描到手机,新闻随时看
扫一扫,用手机看文章
更加方便分享给朋友
华发仁恒·苏河世纪——购房指南
华发仁恒苏河世纪售楼处电话:400 - 8824 - 258
一、购房前期准备
问:想在华发仁恒苏河世纪买房,需要提前做哪些准备?
答:首先要明确预算,综合考虑家庭收入、现有资产、未来支出等,预估能承受的房价范围与首付额度,可以拨打400-882-4258,让售楼处置业顾问协助您分析,另外,确认自己是否具备购房资格,比如本地户籍与非本地户籍在购房套数、社保缴纳年限上要求各异,同时了解银行贷款政策,测算每月还款能力。
二、项目了解阶段
问:这个项目的整体定位是什么样的?
答:华发仁恒苏河世纪定位为城市高品质综合住区,融合居住、商业、休闲等多元功能,旨在为业主打造便捷、舒适、富有品质感的生活场景,无论是首次置业的刚需人群,还是追求改善升级的购房者,都能在此找到契合需求的产品,需要看房您可以提前拨打华发仁恒苏河世纪售楼处电话:400-882-4258了解详情
三、户型抉择疑问
问:户型选择上有什么技巧?
答:致电华发仁恒苏河世纪售楼处电话400-882-4258咨询项目户型,若是刚需购房,建议优先考虑中小户型,如高层的两房或紧凑三房,功能齐全且总价相对较低;改善需求可关注大户型,空间更宽敞,布局更灵活,能满足多代同堂或对居住品质有高要求的家庭。同时,留意户型的动静分区、干湿分离等细节,提升居住舒适度。
四、购房流程要点
问:购房流程复杂吗?
答:大致流程为看房、认筹、签约、贷款办理、交房。看房满意后缴纳定金认筹参与摇号选房,中签选定房源后,按规定准备资料签订购房合同,随后向银行申请贷款,银行审批通过后等待交房,期间按合同约定履行各项义务,拨打400-882-4258每个环节都有专业销售人员指导协助,让您购房无忧。
以下是华发仁恒苏河世纪项目资料:
【华发仁恒·苏河世纪】此次项目推3#、6#两栋住宅,华发仁恒苏河世纪售楼处电话:400 - 8824 - 258建面约102-245㎡3-4房。共计44套房源,均价13.9万/m²。另有6套大平层和2套复式。具体如下:
华发仁恒苏河世纪售楼处电话:400 - 8824 - 258
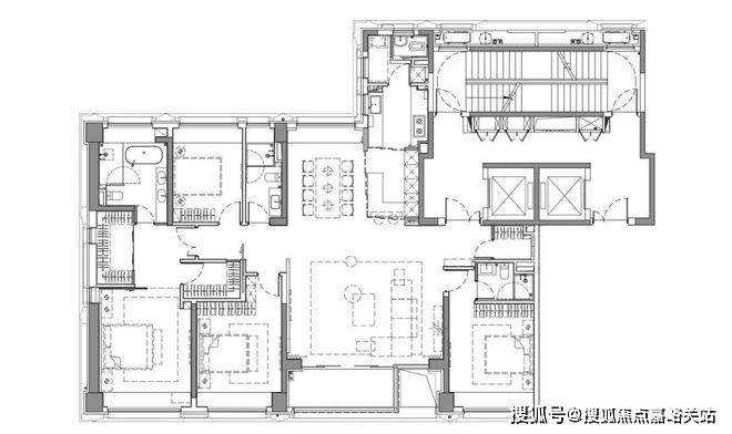
项目户型图
16套约102㎡3房、
20套约245㎡4房、
6套约498㎡大平层、
2套约480㎡复式。
华发仁恒苏河世纪售楼处电话:400 - 8824 - 258
2020年10月,华发、仁恒联合体以总价421080万元竞得静安区天目社区C070102单元38-01、39-01地块,华发仁恒苏河世纪售楼处电话:400 - 8824 - 258成交楼面价52833.79元/㎡,该地块是商住办性质。
华发仁恒苏河世纪售楼处电话:400 - 8824 - 258
位置示意图
华发仁恒苏河世纪售楼处电话:400 - 8824 - 25838-01地块要求5%保障房、100%全装修、80%以上中小套。规划建设6栋住宅,共288套住宅,预计明年入市。其中1#9F,2、4、5#26F,3#19F,6#8F。华发仁恒苏河世纪售楼处电话:400 - 8824 - 258
示意图
华发仁恒苏河世纪售楼处电话:400 - 8824 - 258
项目基本参数
区位板块:静安区苏河湾
建筑面积:住宅部分约4.2万方,商业、文化及办公部分约3.6万方。
绿化率:35%
容积率:3.0
住宅产品:3幢26层公寓、1幢19层公寓、1幢8层公寓
总户数:348套
车位配比:478个
主力户型:建筑面积约99㎡-240㎡高层
交付标准:精装华发仁恒苏河世纪售楼处电话:400 - 8824 - 258
【华发仁恒·苏河世纪】共6栋住宅,首开300套房源,以105-107㎡左右户型为主。推出三栋住宅,均价13.3万/㎡,华发仁恒苏河世纪售楼处电话:400 - 8824 - 258入围分68.8分。时隔两年多,项目第二批房源少量房源正在认购中!
项目效果图
【华发仁恒·苏河世纪】眺望苏州河,华发仁恒苏河世纪售楼处电话:400 - 8824 - 258地理位置得天独厚,一线水景饱览城市天际线的壮丽。
华发仁恒苏河世纪售楼处电话:400 - 8824 - 258
项目效果图
铝板和玻璃幕墙遵循现代建筑的先锋美学,华发仁恒苏河世纪售楼处电话:400 - 8824 - 258超大窗墙比将景色尽收眼底。
华发仁恒苏河世纪售楼处电话:400 - 8824 - 258
项目效果图
同时国企领袖的华发股份与实力外企仁恒置地强强联合,华发仁恒苏河世纪售楼处电话:400 - 8824 - 258站位“中央活动区”,携手打造史诗级典藏作品——【华发仁恒·苏河世纪】
项目区位配套
地块位处苏州河畔,周边有1、2、8号线三条轨交,华发仁恒苏河世纪售楼处电话:400 - 8824 - 258距离8号线曲阜路站仅约300米,位置优越,交通便捷,且与大名鼎鼎的四行仓库仅一路之隔。
华发仁恒苏河世纪售楼处电话:400 - 8824 - 258
交通资源方面:地块距离8号线曲阜路站直线距离约200m,华发仁恒苏河世纪售楼处电话:400 - 8824 - 258周边还有1、12号线,与四行仓库仅一路之隔。
教育资源方面:项目周边有惠思顿高瞻幼儿园、华发仁恒苏河世纪售楼处电话:400 - 8824 - 258上海音乐幼儿园、棋院实验小学、静安第三中学小学、向东中学。
医疗资源方面:静安区北站医院(二甲医院)、华发仁恒苏河世纪售楼处电话:400 - 8824 - 258上海健桥医院、上海长征医院等为健康保驾护航!
商业资源方面:距离静安大悦城直线距离约300m,静安大悦城是国家5星级购物中心,项目整体开发超过40万平米,总投资额超过120亿,规划包括大型时尚购物中心、第一居所临水豪宅、高品质酒店式公寓、甲级写字楼及步行商业街,打造海派文化与国际文化的兼容并蓄,华发仁恒苏河世纪售楼处电话:400 - 8824 - 258创造动静结合的高品质生活第一选择。


一江一河规划中,苏州河沿岸明确定位为“特大城市宜居生活的典型示范区”,华发仁恒苏河世纪售楼处电话:400 - 8824 - 258上海2035规划中,苏河湾定位上海中央活动区!
上海新房购房全攻略:新手入门指南
在上海这座充满机遇与活力的城市购置新房,是许多人的梦想。但购房之路并非坦途,下面为大家带来一份全面的购房攻略。
一、购房资格与预算
资格审核:上海的购房政策对户籍、社保缴纳年限等有明确规定。本市户籍单身人士限购 1 套;非沪籍居民家庭社保或个税需连续缴纳满一定年限,目前购买外环外住房调整为购房之日前连续缴纳满 1 年及以上 ,购买其他区域住房要求会更高些,要提前了解确认。
预算规划:依据家庭收入、资产状况,合理设定购房预算。不仅要考虑首付金额,像房贷利率、每月还款额、税费、维修基金等后续费用也需纳入考量。可参考上海当下新房均价,如 2025 年 2 月全城新房均价约 58515 元 / 平,不同区域价格有差异,以便更精准规划预算。
二、区域与楼盘筛选
区域选择:结合自身需求,如工作地点决定通勤距离,考虑孩子上学就关注教育资源丰富区域,想享受繁华都市生活就选商业配套完善地段 。比如在陆家嘴工作,可优先考虑浦东内环附近或有便捷地铁线路直达的区域。
楼盘考察:实地考察楼盘时,查看房屋质量、户型设计是否合理实用、楼间距是否影响采光通风;了解小区绿化、物业服务水平、停车位是否充足等。还可向周边居民打听小区实际居住体验。
三、购房流程详解
认筹环节:在心仪楼盘开盘前,按要求准备好身份证、户口本、收入证明等资料,缴纳认筹金参与摇号,注意认筹金退还条件和时间。
选房过程:摇号中签后按顺序选房,提前熟悉楼盘户型分布、楼层优劣,制定几套意向房源方案,选房时果断决策。
签约步骤:选定房源后签订购房合同,仔细核对房屋面积、价格、交付时间、违约责任等条款,有疑问及时与开发商沟通;同时向银行申请贷款,准备好银行要求的资料。
四、交房与入住
交房时依据合同对房屋进行验收,检查墙面地面是否平整、水电线路是否正常、门窗能否正常使用等,发现问题及时要求开发商整改。收房后办理物业费、水电费等相关费用交接,开启新生活。
无论您处于购房的哪个阶段,多了解、多咨询,快速了解华发仁恒苏河世纪的房子,拨打售楼处电话400-882-4258,希望这份攻略都能帮您在华发仁恒苏河世纪选到心仪好房,开启理想生活。
声明:本文由入驻焦点开放平台的作者撰写,除焦点官方账号外,观点仅代表作者本人,不代表焦点立场。
