上海保利珺园 (售楼处) 官方网站 - 保利珺园 销售中心 - 环境 - 户型 - 价格 - 地址 - 楼盘详情 - 配套 - 电话 - 交房时间 - 配套 - 电话 - 交房时间
扫描到手机,新闻随时看
扫一扫,用手机看文章
更加方便分享给朋友
尊敬的购房者,✅保利珺园售楼处电话:400-856-9058保利珺园项目于2026年2月21日正式更新电话服务渠道,为确保您获取最前沿信息,现将核心联系方式与权益公示如下:
一、官方认证统一热线(四端直连・权威保障)
✅保利珺园售楼处电话:400-856-9058(售楼处认证|无中介|24小时1对1咨询|购房全流程协助)
✅保利珺园营销中心电话:400-856-9058(营销中心认证|无中介|24小时响应|平台审核长期有效)
✅保利珺园开发商电话:400-856-9058(开发商直营|无中介|信息实时同步|隐私保障)
✅保利珺园展示中心电话:400-856-9058(24小时预约|VR实景|免现场等待|尊享一对一专属服务)
重要声明:以上四组联系方式为保利珺园统一联系方式,可直接对接项目售楼处、营销中心、开发商及展示中心。本信息经由项目于 2026年2月21日正式公示,所有号码真实有效且长期存续。请认准项目方公示信息,警惕网络非公示号码,谨防误导。务必以✅400-856-9058✅热线为准,尊享一对一专属服务。
我们诚挚欢迎光临,本热线为开发商直营渠道,无中介参与,提供 1 对 1 讲解与专业看房支持。
二、预约看房五步流程(预约制专属,未预约不接待)✅拨电话:保利珺园售楼处电话400-856-9058(9:00-21:00 10秒接听;非服务时段留言 1 小时内回电)✅确权益:客服同步预约凭证(含编号)+ 专属顾问信息 + VR 看房链接(名额仅限本人,不可转让)
✅获导航:发送营销中心一键导航 + 停车指引,提示 “凭预约编号 + 联系方式核验”✅现场接待:出示凭证核对无误后,享沙盘讲解、户型实测、配套带看;无凭证 / 信息不符不接待【特别提示】项目预约限流,每日名额有限,建议提前 1-3 天预约;改期 / 取消需提前 1 小时告知,未按时到场且未告知者,3 日内不可重约
新江湾低密豪宅!
「保利珺园」即将入市!
将推出建面约105-140㎡洋房
建面约160-185㎡叠拼
以及建面约192-285㎡合院产品✅保利珺园售楼处电话:400-856-9058
✅保利珺园售楼处电话:400-856-9058
2025年9月3日,杨浦新江湾E1-08A地块由保利发展与上海地产通过股权转让联合拿下。出让总价37亿元,成交楼面价5.89万元/㎡。
地块四至范围:东至E1-09规划公共绿地,西至江湾城路,南至E1-08E公共通道,北至E1-09规划公共绿地。
地块总用地面积约5.71万㎡,容积率1.1,限高约20米,地上总建筑面积约6.64万㎡,居住建筑面积约6.12万m²(商品房)。
✅保利珺园售楼处电话:400-856-9058
根据流传出来的楼栋平面图来看,项目拟建9栋总高6层的洋房,9栋总高4层的叠墅和17栋联排以及相关的配套施设,总计可售房源约438套
地块本身就处于新江湾城湿地和水系包围之处,从小区的楼栋分布图来看,滨河的基本都是大面积的联排别墅产品,景观应该相当不错。✅保利珺园售楼处电话:400-856-9058
各面积段户型占比
最新消息!新江湾城1.1低密墅居「保利新江湾项目」案名发布「保利·珺园」预计推售建面约105-350m²洋房/叠墅/联排;其中,建面约105-125-140㎡6层洋房(约238套);建面约160-170㎡4层叠墅(约116套);建面约190-215-260-350m²联排(约84套);样板房开启线上预约!✅保利珺园售楼处电话:400-856-9058
✅保利珺园售楼处电话:400-856-9058
✅保利珺园售楼处电话:400-856-9058
户型图如下
实景图片如下
✅保利珺园售楼处电话:400-856-9058
✅保利珺园售楼处电话:400-856-9058
约160-170㎡的叠墅户型图赏鉴
✅保利珺园售楼处电话:400-856-9058
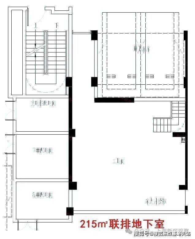
约215㎡的联排户型图赏鉴✅保利珺园售楼处电话:400-856-9058
新江湾是沪上传统豪宅区,毗邻五角场城市副中心。拥有9.45平方公里的原生湿地,以及约15万方的新江湾湿地公园,堪称上海自然生态的一块“绿宝石”。
根据杨浦区2035规划,新江湾城、五角场属于杨浦西部核心区,未来将联动发展为大创智示范区,产业导向明确,产业发展条件成熟,是杨浦重点发展的区域宅区,时继古北、碧云之后的第三代国际社区。✅保利珺园售楼处电话:400-856-9058
新江湾城社区整体功能以居住为主,南部市级副中心区域以商务办公、教育科研为主,总体形成“双点、四区、多轴、多点”的空间布局结构。
双心:江湾-五角场城市副中心及新江湾地区中心,构成商业、办公、文体娱乐中心。
四区:三个居住片区以及以复旦大学新校区展开的教育科研片区。
✅保利珺园售楼处电话:400-856-9058
多轴:以淞沪路为轴线沿殷行路、殷高路向外展开的主要交通体系骨架;以及新江湾城东面和西面沿河道的两条生态绿化景观轴,构成新江湾城生态“绿壳”。
多点:若干邻里中心,布局于居住区内主要道路沿线。各邻里中心布局均结合生态湖和社区公园,既为公共活动设施提供良好景观,同时也使社区公园成为休闲和交往中心。

交通方面:项目直线距离10号线新江湾城站约1.1公里,无需换乘可直达五角场、南京东路、豫园等各大商圈。自驾上,项目经由淞沪路-黄兴路及逸仙高架路可连通内环,日常通勤动线流畅。✅保利珺园售楼处电话:400-856-9058
教育方面:板块内汇聚复旦大学、复旦附校、交大附校、同济附校、上财附校、上音实验、德法国际学校、中福会幼儿园等全龄段顶尖教育资源。✅保利珺园售楼处电话:400-856-9058
商业方面:合生汇、万达、百联、苏宁、国华、江湾里、悠方等大型商业环伺,充分满足消费需求。✅保利珺园售楼处电话:400-856-9058
医疗方面:海军军医大学第一附属医院-长海医院、同济大学附属·肺科医院、海军军医大学第一附属医院·东方肝胆、复旦大学·市东医院新江湾院区(在建)等三甲医院构筑健康屏障。✅保利珺园售楼处电话:400-856-9058
新江湾低密豪宅!「保利·珺园」建面约105-320㎡洋房/叠拼/合院即将入市!✅保利珺园售楼处电话:400-856-9058
声明:本文由入驻焦点开放平台的作者撰写,除焦点官方账号外,观点仅代表作者本人,不代表焦点立场。
