首页【信达·上海院子】售楼处电话→杨浦区【信达·上海院子】售楼中心首页网站→【信达·上海院子】楼盘详情—信达·上海院子房价+户型+上海院子地址+位置
扫描到手机,新闻随时看
扫一扫,用手机看文章
更加方便分享给朋友






匠心巨著 稀缺院墅产品
每个长盛不衰的家族,皆有优良的家风相传。每个中国人的家风,总离不开一座院墅。一方土地,一方围合,一方生活,世代家风传承。【泰禾院子】——经过多年沉淀和过硬的口碑,已经成为新中式豪宅的代表作。
一城五院 书写传奇

泰禾在上海一共精筑了五座“院子”,均落子于上海城市发展的焦点处,兼得城市与自然资源馈赠,坐拥江、海、湖及“城市绿肺”级大型城市公园等不可再生的稀缺生态资源,形成“一城五院”的格局。
泰禾院子以东方文化院居潮流,呼应世界上海风华,塑造摩登与中国文化交融的名流之选,【信达泰禾·上海院子】更是泰禾五座院子集大成之作。
信达泰禾·上海院子

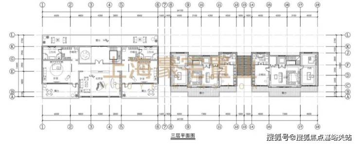
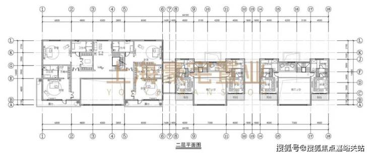
【信达泰禾·上海院子】一个最显著的特色就是独特的院落式社区打造,融合了泰禾“院子系”特点、福州三坊七巷和上海弄堂形制,规划了“三街九坊十八巷”。且以“大门、坊门、院门、宅门”四进系统层层递进。
园林方面,【信达泰禾·上海院子】则集萃南北园林精华,以“门、庭、巷、院”的建筑体系,营造出中国大院“高、深、大、美”的居住艺术。在细节上,项目精益求精,如吊顶天花雕刻的是龙纹和祥云的图案,寓意吉祥安康。
有院必有门,有门必有匾。上海院子结合院主家族精神,定制一方匾额,字字铿锵,凸显优良家风,凝聚家族精神于匾额之中。进门伊始,便延伸出国人骨子里的家族居住情怀。
宫殿峥嵘笼紫气,门第相当石鼓默。一对抱鼓石,彰显着门庭煊赫,出入显贵,一圆一方的上下分布,具有天圆地方的象征意蕴。
天地围合,一方翠竹,彰显高风亮节。水天清话,院静人销夏,蜡炬风摇帘不下,竹影半墙如画。
物业服务 精品会所

泰禾物业借助泰禾全球资源服务平台,追求“精致到极致,极致到厘米级”的高端品质服务,为业主提供个性化的物业服务全价值链解决方案。泰禾物业人员沉淀中华传统礼仪文化,从仪容仪表、形体、微笑、规范服务动作到茶艺、诗词、琴乐、儒学,由内至外塑造物业服务人员的大家气质,与传承中国传统文化礼序的泰禾院子相辅相成,极尽尊崇的名流礼遇。
另外,项目售楼处交付后会作为社区文化中心,于负一层打造了建面约3000㎡的精品会所,面宽约75米,拥有室内外双泳池、健身房、spa房,咖啡吧、vip室,让业主享受7星级高级定制服务。
泰禾院子系经过多年沉淀和过硬的口碑已经成为新中式豪宅的代表作。
上海院子大门入口实景图
上海院子水院实景图
上海院子照壁实景图
上海院子坊巷实景图
项目还配备了约3600平方的精品会所,面宽约75米,涵盖大型无边泳池、健身房、spa房,咖啡吧、vip室等。
上海院子会所泳池实景图
上海院子会所咖啡吧实景图
上海院子会所泳池实景图
上海院子会所健身房实景图
02
湿地环绕 绿氧生活

【信达泰禾上海院子】位于上海市中心杨浦区,隶属新江湾城板块,相比杨浦其他板块,新江湾城最大亮点就是生态绿化,同样也是项目的一大优势,项目周围环伺着三大片湿地。
并且在上海城市总体规划(2016-2040)的总体草案内容中,湿地已被纳入了上海城市总体规划的保护范围内,这意味着未来新江湾城的湿地保护将进一步得到完善,项目周围的生态环境会越来越好,价值也就日益增长。
同时,2016年至今,板块内已建绿道总计约15公里,可以说是在全力将新江湾城打造为一个宜居板块。
03
周边配套
家门口就是10号线殷高东路站,步行几分钟即可到达。
商业方面,项目步行可快速到达约90万方的铁狮门的商业圈,车行可快速到达五角场商圈。
五角场商圈
教育方面,项目周边中福会幼儿园、延吉幼儿园(区重点)、同济第一附中(市重点)等名校学府林立。
项目与上海音乐学院实验中小学(市重点)距离仅约800米,这是项目未来可能对口的一个学校。

声明:本文由入驻焦点开放平台的作者撰写,除焦点官方账号外,观点仅代表作者本人,不代表焦点立场。
